
Eladó családi ház Seregélyes, Központ
Vh-004501 Seregélyes központjában 101m2 hasznos alapterületű, nappali +3
hálószobás, önálló, teljes körűen felújított és újra gondolt családi ház
1020m2-es telekterülettel eladó!A település rendezett, folyamatosan fejlődik és
bővül. Székesfehérvártól, illetve a Velencei-tó partjától mindössze 15 perc
autóútra található. A településen számos buszmegálló és vasútállomás is
található. Az ingatlan környezetében szinte minden elérhető, ami a kényelmes
életvitelhez elengedhetetlen (gyógyszertár, orvosi rendelő, általános és
középiskola, posta, bank, boltok, sportpályák...).Az ingatlan 1976-ban épült
vegyesfalazattal (vályog, tégla). Az elmúlt évek során teljeskörű felújításon
esett át, mely magába foglalja a víz,- és villanyvezeték, nyílászárók,
hideg-meleg burkolatok cseréjét, a villanyhálózat 32 A-ra bővült (nappali és
éjszakai áram). A teljes fűtésrendszer korszerűsítve lett. A homlokzati falak
5cm vastag szigetelést kaptak, a vályog részre légáteresztő vakolat is került. A
tetőszerkezet felújított, új fedést kapott. A födém fából készült, 30cm vastag
kőzetgyapottal szigetelve, a padlástér járhatóvá lett téve. A padló is új
szigeteléssel lett ellátva. Lábazata terméskő, az ingatlan nem vizesedik,
műszakilag kiváló állapotú. A ház melegét egy teljesen új Ariston kazán
biztosítja radiátoros hőleadással. Elosztását tekintve 101m2 hasznos
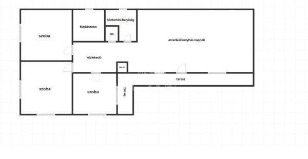
alapterületű.Amerikai konyhás nappali, közlekedő, 3 tágas hálószoba, fürdőszoba,
vendég WC, háztartási helyiség került kialakításra. A telek 1020m2-es teljesen
körbekerített, található rajta 2 ásott kút és számos gyümölcsfa is. A bejutás
elektromos kapun keresztül biztosított. A helyi építési szabályzat lehetőséget
kínál további melléképületek, garázs kialakítására. Utcafrontja: 20mAz ingatlan
per,-és tehermentes, azonnal költözhető.Eladási irányár: 69,9 M FtA terület
mérete számos lehetőséget kínál a kikapcsolódásra, legyen szó kertművelésről
vagy medence kialakításáról.Ideális választás mindenki számára, legyen szó
gyermekkel költöző családoknak, vagy pihenni vágyóknak, illetve az
elhelyezkedése miatt befektetésre is tökéletes választás. A ház a kényelmes
otthont biztosít a lakók számára, mind a belső lakrészben, mind a kert, udvar,
illetve a terasz területén. Nyugalmat sugároz, a mindennapos rohanások után.Ha
felkeltette érdeklődését, hívjon bizalommal, éljen ingyenes, személyre szabott
hitelügyintézés szolgáltatásunkkal. Segítünk továbbá adásvételhez szükséges
ügyvédi közreműködésben, energetikai tanúsítvány, valamint értékbecslés
elkészítésében.For English details please send us a message or an e-mail, thank
you. ...TOVÁBBI, TÖBBEZRES INGATLAN KÍNÁLAT: www.gdn-ingatlan.hu - GDN
azonosító: 384544
hálószobás, önálló, teljes körűen felújított és újra gondolt családi ház
1020m2-es telekterülettel eladó!A település rendezett, folyamatosan fejlődik és
bővül. Székesfehérvártól, illetve a Velencei-tó partjától mindössze 15 perc
autóútra található. A településen számos buszmegálló és vasútállomás is
található. Az ingatlan környezetében szinte minden elérhető, ami a kényelmes
életvitelhez elengedhetetlen (gyógyszertár, orvosi rendelő, általános és
középiskola, posta, bank, boltok, sportpályák...).Az ingatlan 1976-ban épült
vegyesfalazattal (vályog, tégla). Az elmúlt évek során teljeskörű felújításon
esett át, mely magába foglalja a víz,- és villanyvezeték, nyílászárók,
hideg-meleg burkolatok cseréjét, a villanyhálózat 32 A-ra bővült (nappali és
éjszakai áram). A teljes fűtésrendszer korszerűsítve lett. A homlokzati falak
5cm vastag szigetelést kaptak, a vályog részre légáteresztő vakolat is került. A
tetőszerkezet felújított, új fedést kapott. A födém fából készült, 30cm vastag
kőzetgyapottal szigetelve, a padlástér járhatóvá lett téve. A padló is új
szigeteléssel lett ellátva. Lábazata terméskő, az ingatlan nem vizesedik,
műszakilag kiváló állapotú. A ház melegét egy teljesen új Ariston kazán
biztosítja radiátoros hőleadással. Elosztását tekintve 101m2 hasznos
alapterületű.Amerikai konyhás nappali, közlekedő, 3 tágas hálószoba, fürdőszoba,
vendég WC, háztartási helyiség került kialakításra. A telek 1020m2-es teljesen
körbekerített, található rajta 2 ásott kút és számos gyümölcsfa is. A bejutás
elektromos kapun keresztül biztosított. A helyi építési szabályzat lehetőséget
kínál további melléképületek, garázs kialakítására. Utcafrontja: 20mAz ingatlan
per,-és tehermentes, azonnal költözhető.Eladási irányár: 69,9 M FtA terület
mérete számos lehetőséget kínál a kikapcsolódásra, legyen szó kertművelésről
vagy medence kialakításáról.Ideális választás mindenki számára, legyen szó
gyermekkel költöző családoknak, vagy pihenni vágyóknak, illetve az
elhelyezkedése miatt befektetésre is tökéletes választás. A ház a kényelmes
otthont biztosít a lakók számára, mind a belső lakrészben, mind a kert, udvar,
illetve a terasz területén. Nyugalmat sugároz, a mindennapos rohanások után.Ha
felkeltette érdeklődését, hívjon bizalommal, éljen ingyenes, személyre szabott
hitelügyintézés szolgáltatásunkkal. Segítünk továbbá adásvételhez szükséges
ügyvédi közreműködésben, energetikai tanúsítvány, valamint értékbecslés
elkészítésében.For English details please send us a message or an e-mail, thank
you. ...TOVÁBBI, TÖBBEZRES INGATLAN KÍNÁLAT: www.gdn-ingatlan.hu - GDN
azonosító: 384544
Részletek...
Adatlap
| Ár: | 69.900.000 Ft |
| Település: | Seregélyes |
| A hirdető: | Ingatlaniroda ajánlatából |
| Értékesítés típusa: | Eladó |
| Használtság: | Használt |
| Utca: | Központ |
| Telek nagysága (m2) : | 1020 |
| Épület hasznos területe (m2) : | 101 |
| Szobák száma: | 4 |
| Fűtés: | Cirkó fűtéses |
| Ingatlan állapota: | Felújított |
| Anyaga: | Egyéb anyagból készült épület |
| A hirdető kérése: | Ingatlanközvetítő vagyok - keresse fel Irodánkat! |
| Feladás dátuma: | 2025.11.09 |
| Eddig megtekintették 24 alkalommal | |
A hirdető adatai
Kapcsolat a hirdetővel...
Családi házak rovaton belül a(z) "Eladó családi ház Seregélyes, Központ" című hirdetést látja. (fent)




























