
Eladó családi ház Vác, Modern nyugalom, új családi házban!
Modern nyugalom és örök panoráma Vác legszebb részén Eladásra kínálunk Vác egyik
legexkluzívabb, csendes, mégis frekventált kertvárosi övezetében egy egyedi
tervezésű, energiatakarékos, új családi házat, amely egy 1720 nm-es, örök
panorámás telken helyezkedik el.Az ingatlan egy igazi életminőségbeli
szintlépés: ahol a természet, a tágas terek, a luxus és a fenntarthatóság
találkoznak.Főbb jellemzők röviden:? Lakóterület: 280 nm, szinteltolásos
kialakítással két szinten? Telek mérete: 1720 nm ? parkosított, körbejárható,
játszótérrel? Panoráma: minden szintről örök kilátás Vácra és a
Dunára? Kivitelezés állapota: 90%-os készültség, teljes anyagkészlet és
tervek rendelkezésre állnakMűszaki tartalom:? 20 cm-es falazótégla, 25 cm
grafitos hőszigeteléssel (passzívház értékek)? Hőszivattyús
padlófűtés? Fan-coil hűtési rendszer? Légtechnika előkészítve? Riasztórendszer
előkészítve? 3 rétegű hőszigetelt, nagyméretű nyílászárók alumínium és
műanyag profillal? Mozgatható, kinyitható üvegfelületek ? a belső és külső tér
szinte eggyé tud válni? Prémium burkolatok, beltéri ajtók és
szaniterek? Magas minőségű, beépített konyhabútor minőségi gépekkel? Prémium
sötétítési megoldások a teljes fénykontrollal a magánszféráértBelső
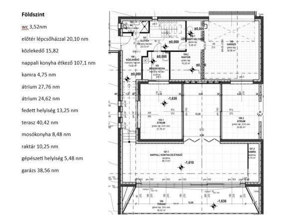
elrendezés:Földszint:? 2 beállásos garázs (38,5 nm)? Előtér lépcsőházzal (19
nm), közlekedő (17 nm), gépészeti helyiség 5,7 nm), tároló (10,3 nm),
mosókonyha (8,5 nm) (összesen: 60,5 nm)? Mosdó + WC (3 nm)? Hatalmas
nappali?étkező?konyha egy légtérben (85,7 nm,) ezzel összenyitható
helyiségek: teraszok (28,7nm és 25,7 nm), valamint egy közösségi tér
(25 nm) (összesen: 79.4 nm)? Kamra (4,3 nm)? Több terasz: 40 nm-es fedett + 2
kisebb nyitott, oldalról zárt ?egy közösségi térré egybenyithatók a
nappalivalEmelet:? Tágas szülői lakosztály (33,5 nm) privát fürdőkáddal,
gardróbbal? 3 félszoba (11?11?11 nm)? Külön WC és fürdőszoba (káddal,
zuhanyzóval) (5,6 nm és 2,4 nm)? közlekedő és lépcsőház (11,4
nm)? Hatalmas, teljes szélességű erkély minden szobából elérhető, örök
panorámával (22,5 nm) Külső tér ? nyugalom, kilátás, szabadság:? Körbejárható
ház, füvesített kert? Játszótér, kialakított pihenőrészek? Közvetlen kapcsolat a
természethez ? tágas, levegős terek, örök kilátássalKözlekedés,
elhelyezkedés:? A város egyik legértékesebb része: a váci Rózsadombon,
örök panorámás környezetben? Budapest elérhető közelségben: M2-es autóút pár
perc, autóval 20-25 perc? Kiváló infrastruktúra: iskolák, boltok,
szolgáltatások a közelbenMiért különleges ez az ingatlan?? Saját részre, gondos
tervezéssel készült? Egyedi, stílusos, mégis funkcionális
térkialakítás? Energiatudatos és jövőálló technológiákAjánljuk mindazoknak, akik
nem érik be az átlagossal. Akiknek fontos a tér, a kilátás, az
energiahatékonyság, és hogy egy valódi, értékálló otthont teremtsenek
családjuknak.Ne maradjon le erről a kivételes lehetőségről ? keressen bizalommal
további információért vagy időpont egyeztetésért! ...TOVÁBBI, TÖBBEZRES INGATLAN
KÍNÁLAT: www.gdn-ingatlan.hu - GDN azonosító: 384555
legexkluzívabb, csendes, mégis frekventált kertvárosi övezetében egy egyedi
tervezésű, energiatakarékos, új családi házat, amely egy 1720 nm-es, örök
panorámás telken helyezkedik el.Az ingatlan egy igazi életminőségbeli
szintlépés: ahol a természet, a tágas terek, a luxus és a fenntarthatóság
találkoznak.Főbb jellemzők röviden:? Lakóterület: 280 nm, szinteltolásos
kialakítással két szinten? Telek mérete: 1720 nm ? parkosított, körbejárható,
játszótérrel? Panoráma: minden szintről örök kilátás Vácra és a
Dunára? Kivitelezés állapota: 90%-os készültség, teljes anyagkészlet és
tervek rendelkezésre állnakMűszaki tartalom:? 20 cm-es falazótégla, 25 cm
grafitos hőszigeteléssel (passzívház értékek)? Hőszivattyús
padlófűtés? Fan-coil hűtési rendszer? Légtechnika előkészítve? Riasztórendszer
előkészítve? 3 rétegű hőszigetelt, nagyméretű nyílászárók alumínium és
műanyag profillal? Mozgatható, kinyitható üvegfelületek ? a belső és külső tér
szinte eggyé tud válni? Prémium burkolatok, beltéri ajtók és
szaniterek? Magas minőségű, beépített konyhabútor minőségi gépekkel? Prémium
sötétítési megoldások a teljes fénykontrollal a magánszféráértBelső
elrendezés:Földszint:? 2 beállásos garázs (38,5 nm)? Előtér lépcsőházzal (19
nm), közlekedő (17 nm), gépészeti helyiség 5,7 nm), tároló (10,3 nm),
mosókonyha (8,5 nm) (összesen: 60,5 nm)? Mosdó + WC (3 nm)? Hatalmas
nappali?étkező?konyha egy légtérben (85,7 nm,) ezzel összenyitható
helyiségek: teraszok (28,7nm és 25,7 nm), valamint egy közösségi tér
(25 nm) (összesen: 79.4 nm)? Kamra (4,3 nm)? Több terasz: 40 nm-es fedett + 2
kisebb nyitott, oldalról zárt ?egy közösségi térré egybenyithatók a
nappalivalEmelet:? Tágas szülői lakosztály (33,5 nm) privát fürdőkáddal,
gardróbbal? 3 félszoba (11?11?11 nm)? Külön WC és fürdőszoba (káddal,
zuhanyzóval) (5,6 nm és 2,4 nm)? közlekedő és lépcsőház (11,4
nm)? Hatalmas, teljes szélességű erkély minden szobából elérhető, örök
panorámával (22,5 nm) Külső tér ? nyugalom, kilátás, szabadság:? Körbejárható
ház, füvesített kert? Játszótér, kialakított pihenőrészek? Közvetlen kapcsolat a
természethez ? tágas, levegős terek, örök kilátássalKözlekedés,
elhelyezkedés:? A város egyik legértékesebb része: a váci Rózsadombon,
örök panorámás környezetben? Budapest elérhető közelségben: M2-es autóút pár
perc, autóval 20-25 perc? Kiváló infrastruktúra: iskolák, boltok,
szolgáltatások a közelbenMiért különleges ez az ingatlan?? Saját részre, gondos
tervezéssel készült? Egyedi, stílusos, mégis funkcionális
térkialakítás? Energiatudatos és jövőálló technológiákAjánljuk mindazoknak, akik
nem érik be az átlagossal. Akiknek fontos a tér, a kilátás, az
energiahatékonyság, és hogy egy valódi, értékálló otthont teremtsenek
családjuknak.Ne maradjon le erről a kivételes lehetőségről ? keressen bizalommal
további információért vagy időpont egyeztetésért! ...TOVÁBBI, TÖBBEZRES INGATLAN
KÍNÁLAT: www.gdn-ingatlan.hu - GDN azonosító: 384555
Részletek...
Adatlap
| Ár: | 259.900.000 Ft |
| Település: | Vác |
| A hirdető: | Ingatlaniroda ajánlatából |
| Értékesítés típusa: | Eladó |
| Használtság: | Új építésű |
| Utca: | Modern nyugalom, új családi házban! |
| Telek nagysága (m2) : | 1720 |
| Épület hasznos területe (m2) : | 280 |
| Szobák száma: | 6 |
| Anyaga: | Tégla |
| A hirdető kérése: | Ingatlanközvetítő vagyok - keresse fel Irodánkat! |
| Feladás dátuma: | 2026.01.08 |
| Eddig megtekintették 39 alkalommal | |
A hirdető adatai
Kapcsolat a hirdetővel...
Családi házak rovaton belül a(z) "Eladó családi ház Vác, Modern nyugalom, új családi házban!" című hirdetést látja. (fent)




























