
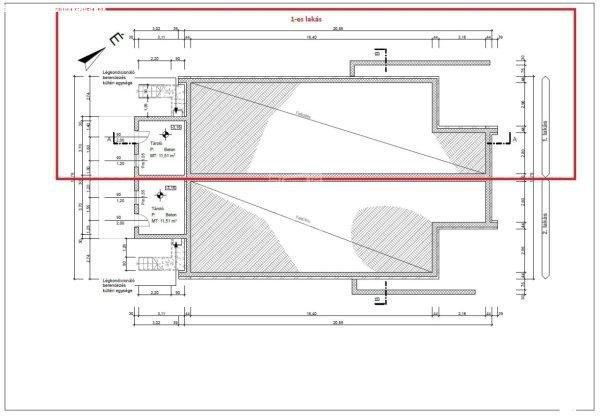
Eladó ikerház Pécel, Pécel, ikerfél -1 lakás
CSAK NÁLUNK!Pécel, kedvelt Levendulás lakóparkjában, eladó egy nettó 101,46 m˛,
bruttó 110,56 m˛ alapterületű, 2 lakásos lakóépület 1-es lakása. Jogilag
lakásnak számít. A lakásokat, főként aszfaltos úton lehet megközelíteni.A 101,46
m˛-es lakótérben 3 szoba + nappali szoba biztosít kényelmes életteret a jövőbeli
lakóknak. A házhoz tartozik egy ~508 m˛-es saját kert, ami tökéletes helyszín
családi és baráti összejövetelekhez. A 11,28 m˛-es teraszról ( alatta 9,1 m˛-es
tároló) gyönyörű kilátás nyílik a környező tájra.A lakások szimmetrikus belső
elrendezéssel kerültek megtervezésre, földszintes kialakítással, illetve
részleges szuterén beépítéssel. A lakások az oldalkerti homlokzatok közepén lévő
bejáratokon közelíthetők meg.Rövid műszaki tartalom:- Az épület földszinti és
emeleti külső határoló falai 30 cm vastag Porotherm 30 X-Therm falazó blokkból,
úgynevezett klíma téglából készülnek.- A külső körítő falak külső oldalai 15 cm
grafitos EPS (H 80) hab hőszigetelő vakolatot kapnak.- A tetőtér hőszigetelése,
fújt hőszigetelő hab, kb. 45 cm vastag kőzetgyapotnak fele meg.- A válaszfalak
10 N+F Porotherm válaszfal lapokból falazott 10 cm vastag falszerkezetek.- A
külső nyílászárók, fehér színben gyártott műanyag 3 rétegű, hőszigetelő
üvegezéssel ellátottak (U= 0,9 W/m2K) ablakok lesznek.- A meleg víz ellátást és
a fűtést gáz kondenzációs kazán biztosítja majd, padlófűtés hűleadással.Az
alternatív fűtésről és hűtésről, KLÍMA fog gondoskodni.A tervezet áram kapacitás
1 x 32A lesz.Most még, kb. májusig Felár ellenében H-tarifás óra
kérhető!Helységlista:- Földszint:- 4,48 m˛ belépő ,- 7,59 m˛ közlekedő,- 12,12
m˛ szoba I.,- 11,68 m˛ szoba II. ,- 12,25 m˛ szoba III.,- 4,80 m˛ fürdő,- 1,44
m˛ WC,- 3,68 m˛ gardrób,- 3,27 m˛ háztartási helység,- 31,03 m˛ nappali,- 9,12
m˛ konyha étkező- -----------------101,46 m˛Nyitott terasz 11,28 m˛A terasz
alatt szuterén tároló 9,10 m˛ lesz.A kert durva tereprendezéssel lesz
átadva.Műszaki tartalom:-Hideg burkolat 6.000 Ft/m˛-Meleg burkolat 5.000
Ft/m˛-Szaniterek 200.000 Ft-ig-Beltéri ajtók 60.000 Ft, kilinccsel együtt
/dbMagasabb árú építőanyag választás esetén a különbözetet a Vevő
finanszírozza.Az ár tartalmazza még:- H-tarifa óra előkészítését, az órát és a
dobozt nem.- Kapumozgató elektronika előkészítését,- Riasztó előkészítését.A
berendezések kiépítése opcionálisan, plusz pénzért megrendelhetők.A belső
VÁLASZFALAK, MÉG MÓDOSÍTHATÓK!A Kivitelező a műszaki tartalom változtatás jogát
fenntartja, az előírt energetikai előírások figyelembe vételével.Kezdő befizetés
10% foglaló. A tervezett kezdés 2026 nyara ( a villanyóra függvényében!A
tervezett átadás 1 év (2027 ősze. villanyóra függvényében!A Cég számos
referenciával rendelkezik. Komoly érdeklődés esetén szívesen mutatunk
referenciát!Ne hagyja ki ezt a lehetőséget, legyen Ön az új ikerház tulajdonosa
Pécelen!JÖJJÖN el, NÉZZE meg, SZERESSEN bele!A GV HitelCentrum, KÖTELEZETTSÉG
MENTESEN és DÍJMENTESEN, versenyezteti Önért a bankok hitelajánlatait. Ismerje
meg a vissza nem térítendő állami támogatásokat!* Egyedi, bankfiókban nem
elérhető kamat- és díjkedvezmények.* Ingyenes Hitelképesség vizsgálat.* Idő,
energia és pénz megtakarítás.* Teljes hivatali ügyintézés.* Babaváró.* CSOK+*
Hitel.* Megtakarítás,* és EGYÉB BANKI tranzakcióban segítségére lehetünk!? Igény
esetén, ÜGYVÉDI segítséget nyújtunk, MEGFIZETHETŐ áron!Ha az ingatlannal
kapcsolatban bővebb felvilágosításra lenne szüksége, hívjon bizalommal, állok
rendelkezésére!F.M. ...TOVÁBBI, TÖBBEZRES INGATLAN KÍNÁLAT: www.gdn-ingatlan.hu
- GDN azonosító: 385226
bruttó 110,56 m˛ alapterületű, 2 lakásos lakóépület 1-es lakása. Jogilag
lakásnak számít. A lakásokat, főként aszfaltos úton lehet megközelíteni.A 101,46
m˛-es lakótérben 3 szoba + nappali szoba biztosít kényelmes életteret a jövőbeli
lakóknak. A házhoz tartozik egy ~508 m˛-es saját kert, ami tökéletes helyszín
családi és baráti összejövetelekhez. A 11,28 m˛-es teraszról ( alatta 9,1 m˛-es
tároló) gyönyörű kilátás nyílik a környező tájra.A lakások szimmetrikus belső
elrendezéssel kerültek megtervezésre, földszintes kialakítással, illetve
részleges szuterén beépítéssel. A lakások az oldalkerti homlokzatok közepén lévő
bejáratokon közelíthetők meg.Rövid műszaki tartalom:- Az épület földszinti és
emeleti külső határoló falai 30 cm vastag Porotherm 30 X-Therm falazó blokkból,
úgynevezett klíma téglából készülnek.- A külső körítő falak külső oldalai 15 cm
grafitos EPS (H 80) hab hőszigetelő vakolatot kapnak.- A tetőtér hőszigetelése,
fújt hőszigetelő hab, kb. 45 cm vastag kőzetgyapotnak fele meg.- A válaszfalak
10 N+F Porotherm válaszfal lapokból falazott 10 cm vastag falszerkezetek.- A
külső nyílászárók, fehér színben gyártott műanyag 3 rétegű, hőszigetelő
üvegezéssel ellátottak (U= 0,9 W/m2K) ablakok lesznek.- A meleg víz ellátást és
a fűtést gáz kondenzációs kazán biztosítja majd, padlófűtés hűleadással.Az
alternatív fűtésről és hűtésről, KLÍMA fog gondoskodni.A tervezet áram kapacitás
1 x 32A lesz.Most még, kb. májusig Felár ellenében H-tarifás óra
kérhető!Helységlista:- Földszint:- 4,48 m˛ belépő ,- 7,59 m˛ közlekedő,- 12,12
m˛ szoba I.,- 11,68 m˛ szoba II. ,- 12,25 m˛ szoba III.,- 4,80 m˛ fürdő,- 1,44
m˛ WC,- 3,68 m˛ gardrób,- 3,27 m˛ háztartási helység,- 31,03 m˛ nappali,- 9,12
m˛ konyha étkező- -----------------101,46 m˛Nyitott terasz 11,28 m˛A terasz
alatt szuterén tároló 9,10 m˛ lesz.A kert durva tereprendezéssel lesz
átadva.Műszaki tartalom:-Hideg burkolat 6.000 Ft/m˛-Meleg burkolat 5.000
Ft/m˛-Szaniterek 200.000 Ft-ig-Beltéri ajtók 60.000 Ft, kilinccsel együtt
/dbMagasabb árú építőanyag választás esetén a különbözetet a Vevő
finanszírozza.Az ár tartalmazza még:- H-tarifa óra előkészítését, az órát és a
dobozt nem.- Kapumozgató elektronika előkészítését,- Riasztó előkészítését.A
berendezések kiépítése opcionálisan, plusz pénzért megrendelhetők.A belső
VÁLASZFALAK, MÉG MÓDOSÍTHATÓK!A Kivitelező a műszaki tartalom változtatás jogát
fenntartja, az előírt energetikai előírások figyelembe vételével.Kezdő befizetés
10% foglaló. A tervezett kezdés 2026 nyara ( a villanyóra függvényében!A
tervezett átadás 1 év (2027 ősze. villanyóra függvényében!A Cég számos
referenciával rendelkezik. Komoly érdeklődés esetén szívesen mutatunk
referenciát!Ne hagyja ki ezt a lehetőséget, legyen Ön az új ikerház tulajdonosa
Pécelen!JÖJJÖN el, NÉZZE meg, SZERESSEN bele!A GV HitelCentrum, KÖTELEZETTSÉG
MENTESEN és DÍJMENTESEN, versenyezteti Önért a bankok hitelajánlatait. Ismerje
meg a vissza nem térítendő állami támogatásokat!* Egyedi, bankfiókban nem
elérhető kamat- és díjkedvezmények.* Ingyenes Hitelképesség vizsgálat.* Idő,
energia és pénz megtakarítás.* Teljes hivatali ügyintézés.* Babaváró.* CSOK+*
Hitel.* Megtakarítás,* és EGYÉB BANKI tranzakcióban segítségére lehetünk!? Igény
esetén, ÜGYVÉDI segítséget nyújtunk, MEGFIZETHETŐ áron!Ha az ingatlannal
kapcsolatban bővebb felvilágosításra lenne szüksége, hívjon bizalommal, állok
rendelkezésére!F.M. ...TOVÁBBI, TÖBBEZRES INGATLAN KÍNÁLAT: www.gdn-ingatlan.hu
- GDN azonosító: 385226
Részletek...
Adatlap
| Ár: | 110.000.000 Ft |
| Település: | Pécel |
| A hirdető: | Ingatlaniroda ajánlatából |
| Értékesítés típusa: | Eladó |
| Használtság: | Új építésű |
| Utca: | Pécel, ikerfél -1 lakás |
| Telek nagysága (m2) : | 508 |
| Épület hasznos területe (m2) : | 110 |
| Szobák száma: | 3 |
| Félszobák száma: | 1 |
| Fűtés: | Cirkó fűtéses |
| Anyaga: | Tégla |
| A hirdető kérése: | Ingatlanközvetítő vagyok - keresse fel Irodánkat! |
| Feladás dátuma: | 2026.05.08 |
| Eddig megtekintették 98 alkalommal | |
A hirdető adatai
Kapcsolat a hirdetővel...
Családi házak rovaton belül a(z) "Eladó ikerház Pécel, Pécel, ikerfél -1 lakás" című hirdetést látja. (fent)




























