
Eladó családi ház Érd, ÉRD - DOMBOSVÁROS
-- ÉRD DOMBOSVÁROSBAN, REMEK HELYEN, ÚJÉPITÉSŰ HÁZAK KÖZT, ÖNÁLLÓ CSALÁDI HÁZ,
HŐSZÍVATTYÚ FŰTÉSSEL---! ! ! CSOK PLUSZ, ILLETÉK KEDVEZMÉNY, OTTHON START HITEL
IGÉNYBE VEHETŐ! ! !A HÁZ MÉRETE ÉS ELRENDEZÉSE CSALÁDOKRA LETT SZABVA.A ház
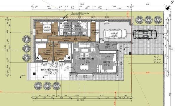
nettó 125 nm, plusz a 24 nm terasz. Mindez 708 nm telken.Fekvése délkeleti, így
egész nap világos lehet az otthona, élvezheti a napfényt.A KÖRNYÉK csendes,
igényes lakóközösség lakja. A szomszédos házak rendezettek, újszerűek, szépen
karbantartott kertekkel. Az a környék, ahova jó haza menni.AZ ÉPÜLET beton
sávalapra épül. Főfalak 30 cm porotherm téglából készülnek +15 cm dryvit
szigeteléssel. Válaszfalak 10 cm téglából. A külső nyílászárók műanyag
szerkezetűek, 3 rétegű üvegezéssel ellátva, rejtett redőnytok előkészítéssel. A
födém fa szerkezetű, közetgyapot szigeteléssel. A tető cserép fedéssel készül.A
KERT hatalmas, jut hely gyerek játszótérnek, felnőttek pihenésének.A kert sík, a
telek hátsó része intim. Az utca csendes mellékutca, átmenő forgalomtól
mentes.KÖZLEKEDÉSE jó. Autóval pár perc az M7 és M0 autópálya.Pár perc sétával
elérhető a tömegközlekedés is, mely Bem térig ill. Bp. Kelenföldi pályaudvarig
közlekedik.A LAKÁS HELYISÉGEI:- amerikai konyhás nappali (40nm)- 3 db hálószoba
- 1 db félszoba (gardrób vagy dolgozó)- 2 db fürdőszoba - előszoba- közlekedő-
garázsMOST KEZDŐDIK AZ ÉPÍTKEZÉS, ÍGY MÉG SOK MINDEN EGYEDI ELKÉPZELÉSEK ALAPJÁN
MÓDOSÍTHATÓ. A kivitelező ebben nagyon rugalmas. Több referencia ingatlant
tudunk mutatni. Az előző projekt a befejezéshez közeledik. A fotók közt erről
láthatnák néhány fotót. MŰSZAKI TARTALOMENERGETIKAI BESOROLÁSA: A- hőszivattyús
fűtés rendszer- padlófűtés- elektromos kapu- nyílászárók 3 rétegű, 5 légkamrás,
- a garázshoz vezető út és a gyalogos bejáró térkövezet,- kert 10 cm
termőréteggel, füvesítés nélkül kerül átadásraA HÁZ BELSŐ KIALAKÍTÁSA A VEVŐKKEL
EGYEZTETVE, EGYEDI IGÉNYEKALAPJÁN KÉSZÜL EL. ÖN VÁLASZTHATJA KI A BURKOLATOKAT,
SZANITEREKET, BELTÉRI AJTÓKAT, STB.ÁTADÁS: 2026. nyár végeEZ A HÁZ ALKALMI
VÉTEL. NE HAGYJA KI!HÍVJON ÉS MONDOM A RÉSZLETEKET!AMENNYIBEN NEM RENDELKEZIK A
TELJES VÉTELÁRRAL, segítünk Önnek megtalálni a legjobb megoldást!BANKFÜGGETLEN
hitelcentrumunk minden elérhető bank és hitelintézet ajánlatát versenyezteti az
Ön kedvéért, ráadásul díjmentesen. Önnek nincs más dolga, mint elbeszélgetni
munkatársunkkal, aki a hallott információk alapján versenyre hívja a bankokat,
hogy Ön hosszú távon is a legjobb konstrukciót kaphassa. A legjobb ajánlatokból
végül Ön választhatja ki a nyertest. Munkatársaink sokéves szakmai
tapasztalattal várják Önt, előre egyeztetve akár a normál munkaidő után is.
...TOVÁBBI, TÖBBEZRES INGATLAN KÍNÁLAT: www.gdn-ingatlan.hu - GDN azonosító:
385273
HŐSZÍVATTYÚ FŰTÉSSEL---! ! ! CSOK PLUSZ, ILLETÉK KEDVEZMÉNY, OTTHON START HITEL
IGÉNYBE VEHETŐ! ! !A HÁZ MÉRETE ÉS ELRENDEZÉSE CSALÁDOKRA LETT SZABVA.A ház
nettó 125 nm, plusz a 24 nm terasz. Mindez 708 nm telken.Fekvése délkeleti, így
egész nap világos lehet az otthona, élvezheti a napfényt.A KÖRNYÉK csendes,
igényes lakóközösség lakja. A szomszédos házak rendezettek, újszerűek, szépen
karbantartott kertekkel. Az a környék, ahova jó haza menni.AZ ÉPÜLET beton
sávalapra épül. Főfalak 30 cm porotherm téglából készülnek +15 cm dryvit
szigeteléssel. Válaszfalak 10 cm téglából. A külső nyílászárók műanyag
szerkezetűek, 3 rétegű üvegezéssel ellátva, rejtett redőnytok előkészítéssel. A
födém fa szerkezetű, közetgyapot szigeteléssel. A tető cserép fedéssel készül.A
KERT hatalmas, jut hely gyerek játszótérnek, felnőttek pihenésének.A kert sík, a
telek hátsó része intim. Az utca csendes mellékutca, átmenő forgalomtól
mentes.KÖZLEKEDÉSE jó. Autóval pár perc az M7 és M0 autópálya.Pár perc sétával
elérhető a tömegközlekedés is, mely Bem térig ill. Bp. Kelenföldi pályaudvarig
közlekedik.A LAKÁS HELYISÉGEI:- amerikai konyhás nappali (40nm)- 3 db hálószoba
- 1 db félszoba (gardrób vagy dolgozó)- 2 db fürdőszoba - előszoba- közlekedő-
garázsMOST KEZDŐDIK AZ ÉPÍTKEZÉS, ÍGY MÉG SOK MINDEN EGYEDI ELKÉPZELÉSEK ALAPJÁN
MÓDOSÍTHATÓ. A kivitelező ebben nagyon rugalmas. Több referencia ingatlant
tudunk mutatni. Az előző projekt a befejezéshez közeledik. A fotók közt erről
láthatnák néhány fotót. MŰSZAKI TARTALOMENERGETIKAI BESOROLÁSA: A- hőszivattyús
fűtés rendszer- padlófűtés- elektromos kapu- nyílászárók 3 rétegű, 5 légkamrás,
- a garázshoz vezető út és a gyalogos bejáró térkövezet,- kert 10 cm
termőréteggel, füvesítés nélkül kerül átadásraA HÁZ BELSŐ KIALAKÍTÁSA A VEVŐKKEL
EGYEZTETVE, EGYEDI IGÉNYEKALAPJÁN KÉSZÜL EL. ÖN VÁLASZTHATJA KI A BURKOLATOKAT,
SZANITEREKET, BELTÉRI AJTÓKAT, STB.ÁTADÁS: 2026. nyár végeEZ A HÁZ ALKALMI
VÉTEL. NE HAGYJA KI!HÍVJON ÉS MONDOM A RÉSZLETEKET!AMENNYIBEN NEM RENDELKEZIK A
TELJES VÉTELÁRRAL, segítünk Önnek megtalálni a legjobb megoldást!BANKFÜGGETLEN
hitelcentrumunk minden elérhető bank és hitelintézet ajánlatát versenyezteti az
Ön kedvéért, ráadásul díjmentesen. Önnek nincs más dolga, mint elbeszélgetni
munkatársunkkal, aki a hallott információk alapján versenyre hívja a bankokat,
hogy Ön hosszú távon is a legjobb konstrukciót kaphassa. A legjobb ajánlatokból
végül Ön választhatja ki a nyertest. Munkatársaink sokéves szakmai
tapasztalattal várják Önt, előre egyeztetve akár a normál munkaidő után is.
...TOVÁBBI, TÖBBEZRES INGATLAN KÍNÁLAT: www.gdn-ingatlan.hu - GDN azonosító:
385273
Részletek...
Adatlap
| Ár: | 129.900.000 Ft |
| Település: | Érd |
| A hirdető: | Ingatlaniroda ajánlatából |
| Értékesítés típusa: | Eladó |
| Utca: | ÉRD - DOMBOSVÁROS |
| Telek nagysága (m2) : | 708 |
| Épület hasznos területe (m2) : | 175 |
| Szobák száma: | 4 |
| Félszobák száma: | 1 |
| Anyaga: | Tégla |
| A hirdető kérése: | Ingatlanközvetítő vagyok - keresse fel Irodánkat! |
| Feladás dátuma: | 2026.05.08 |
| Eddig megtekintették 66 alkalommal | |
A hirdető adatai
Kapcsolat a hirdetővel...
Családi házak rovaton belül a(z) "Eladó családi ház Érd, ÉRD - DOMBOSVÁROS" című hirdetést látja. (fent)




























