
Eladó ikerház Kóka, Felsővásár Tér
Eladó új építésű, energiahatékony ikerházfelek Kókán!Kóka, Felsővásártér 61/A
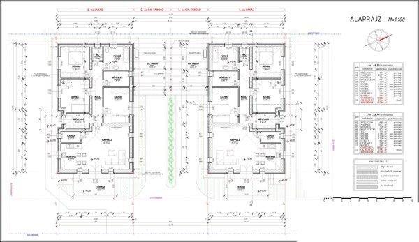
szám alatt, egy 1306 m˛-es telken kínálunk eladásra két, nettó 102,24 m˛-es
családi házat, amerikai konyhás nappalival és három külön nyíló szobával.A két
ingatlan kizárólag a fedett autóbeállón keresztül érintkezik egymással.Az első
házhoz 470 m˛-es, míg a hátsó házhoz egy 560 m˛-es, kizárólagos használatú,
lekerített telekrész tartozik.Műszaki tartalom:-Porotherm P30N+F téglából épült
teherhordó falak-Betonkoszorú, fa födémes tetőszerkezet-10 cm-es lépésálló
polisztirol lábazati szigetelés-10 cm-es Austrotherm Grafitos homlokzati
hőszigetelés-25 cm ásványgyapot szigetelés a vízszintes födémen-3 rétegű, 6
légkamrás műanyag thermo nyílászárókFűtés és energetika:A ház fűtését modern,
levegő-víz hőszivattyús rendszer biztosítja, mely a kiváló szigetelésnek
köszönhetően rendkívül alacsony energiafelhasználást garantál.Burkolatok,
szaniterek, ajtók ? választhatóak az alábbi keretösszegekig:-Hidegburkolat:
3.000 Ft/m˛-Melegburkolat: 3.000 Ft/m˛-Beltéri ajtók: 30.000 Ft/db-Fürdőkád:
40.000 Ft-Csaptelep: 15.000 Ft/dbMagasabb árkategóriájú termékek választása
esetén a különbözet önállóan finanszírozható.Finanszírozás:CSOK Plusz és Otthon
Start támogatás elérhető!Ingyenes hiteltanácsadás és CSOK Plusz
ügyintézésBankfüggetlen hitelcentrumunk versenyezteti a bankokat az Ön
érdekébenEgyedi, csak rajtunk keresztül elérhető kamat- és díjkedvezményekTeljes
körű ügyintézés ? időt, pénzt és energiát spórolunk Önnek!Tervezett átadás: 2026
második negyedéveTervdokumentációt és részletes műszaki leírást érdeklődő
ügyfeleink számára készséggel biztosítunk. Ha felkeltette érdeklődését az
ajánlat, hívjon bizalommal! ...TOVÁBBI, TÖBBEZRES INGATLAN KÍNÁLAT:
www.gdn-ingatlan.hu - GDN azonosító: 385764
szám alatt, egy 1306 m˛-es telken kínálunk eladásra két, nettó 102,24 m˛-es
családi házat, amerikai konyhás nappalival és három külön nyíló szobával.A két
ingatlan kizárólag a fedett autóbeállón keresztül érintkezik egymással.Az első
házhoz 470 m˛-es, míg a hátsó házhoz egy 560 m˛-es, kizárólagos használatú,
lekerített telekrész tartozik.Műszaki tartalom:-Porotherm P30N+F téglából épült
teherhordó falak-Betonkoszorú, fa födémes tetőszerkezet-10 cm-es lépésálló
polisztirol lábazati szigetelés-10 cm-es Austrotherm Grafitos homlokzati
hőszigetelés-25 cm ásványgyapot szigetelés a vízszintes födémen-3 rétegű, 6
légkamrás műanyag thermo nyílászárókFűtés és energetika:A ház fűtését modern,
levegő-víz hőszivattyús rendszer biztosítja, mely a kiváló szigetelésnek
köszönhetően rendkívül alacsony energiafelhasználást garantál.Burkolatok,
szaniterek, ajtók ? választhatóak az alábbi keretösszegekig:-Hidegburkolat:
3.000 Ft/m˛-Melegburkolat: 3.000 Ft/m˛-Beltéri ajtók: 30.000 Ft/db-Fürdőkád:
40.000 Ft-Csaptelep: 15.000 Ft/dbMagasabb árkategóriájú termékek választása
esetén a különbözet önállóan finanszírozható.Finanszírozás:CSOK Plusz és Otthon
Start támogatás elérhető!Ingyenes hiteltanácsadás és CSOK Plusz
ügyintézésBankfüggetlen hitelcentrumunk versenyezteti a bankokat az Ön
érdekébenEgyedi, csak rajtunk keresztül elérhető kamat- és díjkedvezményekTeljes
körű ügyintézés ? időt, pénzt és energiát spórolunk Önnek!Tervezett átadás: 2026
második negyedéveTervdokumentációt és részletes műszaki leírást érdeklődő
ügyfeleink számára készséggel biztosítunk. Ha felkeltette érdeklődését az
ajánlat, hívjon bizalommal! ...TOVÁBBI, TÖBBEZRES INGATLAN KÍNÁLAT:
www.gdn-ingatlan.hu - GDN azonosító: 385764
Részletek...
Adatlap
| Ár: | 63.900.000 Ft |
| Település: | Kóka |
| A hirdető: | Ingatlaniroda ajánlatából |
| Értékesítés típusa: | Eladó |
| Használtság: | Új építésű |
| Utca: | Felsővásár Tér |
| Telek nagysága (m2) : | 560 |
| Épület hasznos területe (m2) : | 102 |
| Szobák száma: | 4 |
| Anyaga: | Tégla |
| A hirdető kérése: | Ingatlanközvetítő vagyok - keresse fel Irodánkat! |
| Feladás dátuma: | 2026.03.09 |
| Eddig megtekintették 54 alkalommal | |
A hirdető adatai
Kapcsolat a hirdetővel...
Családi házak rovaton belül a(z) "Eladó ikerház Kóka, Felsővásár Tér" című hirdetést látja. (fent)




























