
Eladó családi ház Budapest, XIV. kerület, Több lakásos társ
A FEJLŐDŐ BOSNYÁK TÉR SZOMSZÉDSÁGÁBAN!!!TÁRSASHÁZ!!! EGÉSZSÉGÜGYI INTÉZMÉNY!!!
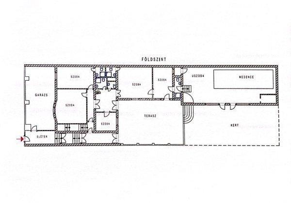
IRODAHÁZ!!! WELNESS KÖZPONT!!!XIV. kerületben, ALSÓRÁKOSON, eladó egy bruttó 449
m2-es telken fekvő bruttó 600 m2-es családi ház. (nettó 420 m2) 10 szoba + 9
félszoba. A házban 8-9 lakás kialakítása lehetséges.A ház az 1980-as években
épült. A welness részleg az 1990-es években lett hozzáépítve.A ház további
jellemzői:- PER- és TEHERMENTES- RÖVID HATÁRIDŐVEL BIRTOKBA VEHETŐ- CSENDES
kertvárosi környezet- terasz (kb. 70 m2)- minden közmű egyedileg mérhető- garázs
(3 db.)- kert - klíma (2 db.)Fűtése: cirkó és gázkazán. (3 DB.)Közlekedés:
kiváló (5, 69, 32-es busz, 3, 62, 62A villamos, 74, 74A, 82-es trolibusz, M1
MEXIKÓI ÚT metróállomás pár percen belül elérhető, 973 éjszakai járat).Az M3
bevezető szakasza autóval 5 percen belül elérhető.A hirdetésben feltüntetett
adatok és információk csak tájékoztató jellegűek, jogi kötelezettséggel nem bíró
jognyilatkozatnak minősülnek, mely nem tekinthető ajánlat tételnek és nem járnak
az eladóra nézve kötelező ajánlati kötöttséggel.Ügyfeleink részére BANKFÜGGETLEN
hitelügyintéző kollégáink szívesen nyújtanak segítséget.Amennyiben felkeltettem
az érdeklődését vagy bármely további kérdése lenne, keressen bizalommal.Akár
hétvégén is!CSA ...TOVÁBBI, TÖBBEZRES INGATLAN KÍNÁLAT: www.gdn-ingatlan.hu -
GDN azonosító: 376343
IRODAHÁZ!!! WELNESS KÖZPONT!!!XIV. kerületben, ALSÓRÁKOSON, eladó egy bruttó 449
m2-es telken fekvő bruttó 600 m2-es családi ház. (nettó 420 m2) 10 szoba + 9
félszoba. A házban 8-9 lakás kialakítása lehetséges.A ház az 1980-as években
épült. A welness részleg az 1990-es években lett hozzáépítve.A ház további
jellemzői:- PER- és TEHERMENTES- RÖVID HATÁRIDŐVEL BIRTOKBA VEHETŐ- CSENDES
kertvárosi környezet- terasz (kb. 70 m2)- minden közmű egyedileg mérhető- garázs
(3 db.)- kert - klíma (2 db.)Fűtése: cirkó és gázkazán. (3 DB.)Közlekedés:
kiváló (5, 69, 32-es busz, 3, 62, 62A villamos, 74, 74A, 82-es trolibusz, M1
MEXIKÓI ÚT metróállomás pár percen belül elérhető, 973 éjszakai járat).Az M3
bevezető szakasza autóval 5 percen belül elérhető.A hirdetésben feltüntetett
adatok és információk csak tájékoztató jellegűek, jogi kötelezettséggel nem bíró
jognyilatkozatnak minősülnek, mely nem tekinthető ajánlat tételnek és nem járnak
az eladóra nézve kötelező ajánlati kötöttséggel.Ügyfeleink részére BANKFÜGGETLEN
hitelügyintéző kollégáink szívesen nyújtanak segítséget.Amennyiben felkeltettem
az érdeklődését vagy bármely további kérdése lenne, keressen bizalommal.Akár
hétvégén is!CSA ...TOVÁBBI, TÖBBEZRES INGATLAN KÍNÁLAT: www.gdn-ingatlan.hu -
GDN azonosító: 376343
Részletek...
Adatlap
| Ár: | 369.000.000 Ft |
| Település: | XIV. kerület |
| A hirdető: | Ingatlaniroda ajánlatából |
| Értékesítés típusa: | Eladó |
| Használtság: | Használt |
| Utca: | Több lakásos társasház? |
| Telek nagysága (m2) : | 449 |
| Épület hasznos területe (m2) : | 600 |
| Szobák száma: | 10 |
| Félszobák száma: | 9 |
| Fűtés: | Cirkó fűtéses |
| Ingatlan állapota: | Felújítandó |
| Anyaga: | Tégla |
| A hirdető kérése: | Ingatlanközvetítő vagyok - keresse fel Irodánkat! |
| Feladás dátuma: | 2026.05.08 |
| Eddig megtekintették 65 alkalommal | |
A hirdető adatai
Kapcsolat a hirdetővel...
Családi házak rovaton belül a(z) "Eladó családi ház Budapest, XIV. kerület, Több lakásos társ" című hirdetést látja. (fent)




























