
Eladó családi ház Érd, Sasváros
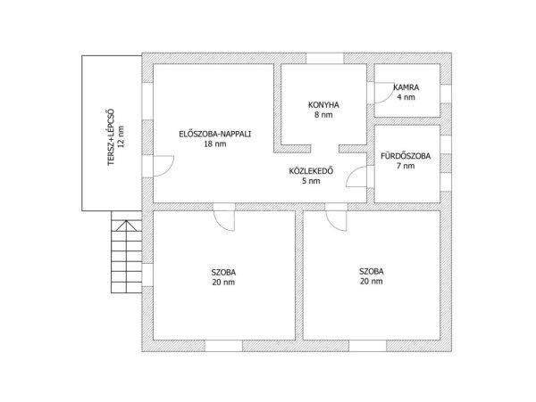
Érd, 685 nm-es telken felújított, napelemes, három szobás, földszint +
szuterénes, alacsony fenntartási költségű családi ház eladó.Masszív építésű un.
?Kádár-kocka? épület, 10 x 10 -es alapterülettel. Az épület szinte teljes
egészében felújításra került az elmúlt 10-12 évben az energiahatékonysági
szempontok figyelembe vételével.Elvégzett korszerűsítés, felújítások:Teljes
elektromos hálózat cseréje, 3 fázis, 3 x 25 A, 380 V;Napelem rendszer 4,5 kW-os,
öt évig még szaldóelszámolás alá esik. Költséghatékony, akár "0" Ft is lehet a
villanyszámla. A napelemrendszer bővítve lett.Fűtés: 2 db hűtő-fűtő klíma;
fűtőpanel és vegyes tüzelésű kazán.Teljes tetőfelújítás,20 cm-es
födémszigeteléssel, zsindely fedéssel.Külső hőszigetelés 10 cm + gördülőszemcsés
nemesvakolat. SÚj hő és hangszigetelt műa. ablakok redőnnyel és
szúnyoghálóval.Új hideg (nappali, konyha, fürdőszoba és közlekedő) és
melegburkolat (két hálószoba).A 48 nm-es szuterén mennyezete és utcafrontja
szintén szigetelve lett.Az ingatlan utcafrontja új betonkerítést kapott.A terasz
burkolása még hátra van, de a burkolólapok megvannak hozzá.Parkolás:
kocsibeálló. elektromos autó töltővel. Garázs elbontásra került, de
visszaépíthető.A kert 685 nm-es gyümölcs és díszfákkal beültetett.Az ingatlan
buszmegálló közelében található, városközpont (3,5 km) közvetlen buszjárattal
elérhető.Amennyiben ENERGIAHATÉKONY, ALACSONY FENNTARTÁSI KÖLTSÉGGEL üzemelő
ingatlant keres, akkor várom megtisztelő érdeklődését. Amennyiben a vásárláshoz
hitelt is igénybe szeretne venni, akkor BANKFÜGGETLEN hitelcentrumunk minden
elérhető bank és hitelintézet ajánlatát versenyezteti az Ön kedvéért, ráadásul
díjmentesen. ...TOVÁBBI, TÖBBEZRES INGATLAN KÍNÁLAT: www.gdn-ingatlan.hu - GDN
azonosító: 385987
szuterénes, alacsony fenntartási költségű családi ház eladó.Masszív építésű un.
?Kádár-kocka? épület, 10 x 10 -es alapterülettel. Az épület szinte teljes
egészében felújításra került az elmúlt 10-12 évben az energiahatékonysági
szempontok figyelembe vételével.Elvégzett korszerűsítés, felújítások:Teljes
elektromos hálózat cseréje, 3 fázis, 3 x 25 A, 380 V;Napelem rendszer 4,5 kW-os,
öt évig még szaldóelszámolás alá esik. Költséghatékony, akár "0" Ft is lehet a
villanyszámla. A napelemrendszer bővítve lett.Fűtés: 2 db hűtő-fűtő klíma;
fűtőpanel és vegyes tüzelésű kazán.Teljes tetőfelújítás,20 cm-es
födémszigeteléssel, zsindely fedéssel.Külső hőszigetelés 10 cm + gördülőszemcsés
nemesvakolat. SÚj hő és hangszigetelt műa. ablakok redőnnyel és
szúnyoghálóval.Új hideg (nappali, konyha, fürdőszoba és közlekedő) és
melegburkolat (két hálószoba).A 48 nm-es szuterén mennyezete és utcafrontja
szintén szigetelve lett.Az ingatlan utcafrontja új betonkerítést kapott.A terasz
burkolása még hátra van, de a burkolólapok megvannak hozzá.Parkolás:
kocsibeálló. elektromos autó töltővel. Garázs elbontásra került, de
visszaépíthető.A kert 685 nm-es gyümölcs és díszfákkal beültetett.Az ingatlan
buszmegálló közelében található, városközpont (3,5 km) közvetlen buszjárattal
elérhető.Amennyiben ENERGIAHATÉKONY, ALACSONY FENNTARTÁSI KÖLTSÉGGEL üzemelő
ingatlant keres, akkor várom megtisztelő érdeklődését. Amennyiben a vásárláshoz
hitelt is igénybe szeretne venni, akkor BANKFÜGGETLEN hitelcentrumunk minden
elérhető bank és hitelintézet ajánlatát versenyezteti az Ön kedvéért, ráadásul
díjmentesen. ...TOVÁBBI, TÖBBEZRES INGATLAN KÍNÁLAT: www.gdn-ingatlan.hu - GDN
azonosító: 385987
Részletek...
Adatlap
| Ár: | 95.000.000 Ft |
| Település: | Érd |
| A hirdető: | Ingatlaniroda ajánlatából |
| Értékesítés típusa: | Eladó |
| Használtság: | Használt |
| Utca: | Sasváros |
| Telek nagysága (m2) : | 685 |
| Épület hasznos területe (m2) : | 148 |
| Szobák száma: | 3 |
| Fűtés: | Cirkó fűtéses |
| Ingatlan állapota: | Felújított |
| Anyaga: | Tégla |
| A hirdető kérése: | Ingatlanközvetítő vagyok - keresse fel Irodánkat! |
| Feladás dátuma: | 2026.03.09 |
| Eddig megtekintették 81 alkalommal | |
A hirdető adatai
Kapcsolat a hirdetővel...
Családi házak rovaton belül a(z) "Eladó családi ház Érd, Sasváros" című hirdetést látja. (fent)
















![Érd, 105 m2, 79500000 HUF, 5 szoba [4138_913] Érd, 105 m2, 79500000 HUF, 5 szoba [4138_913]](/hirdetesek/ads_new_xml2/15/155451/thmb_erd-105-m2-8500000_01763337778.jpg)











