
Fehértó - lótartásra alkalmas, nagy területű ingatlan
Fehértón, a Fertő-Hanság Nemzeti Park szomszédságában egyedi, lótartásra
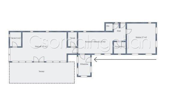
alkalmas ingatlan eladó.HELYISÉGEK- 127 m2-es lakóház- hálószoba (27 m2)-
világos, tágas nappali (49 m2), kijárattal az udvarra néző teraszra- konyha +
étkező- fürdőben zuhanykabin, külön helyiségben a toalett- tárolók- előszoba- a
bútorok nagy részét az ár tartalmazza- 3 bejáratMŰSZAKI JELLEMZŐKA ház első
része: - 1820-ban épült tömésfal- látszó gerendás mennyezet- fa nyílászárók-
2022-ben felújított épület- 2 éve felújított nádtetőA hátsó rész: - 2022-ben
épült porotherm téglából- műanyag nyílászárókkal, redőnnyel felszerelve-
lemeztető- kívülről megközelíthető padlástér- fűtés cserépkályhával, illetve
napelemmel (6,2 kW) működtetett elektromos panelek által- ipari áram- gázcsonk
az udvaronMELLÉKÉPÜLET (140 m2)- 6 angol boxos istálló- 12 állásos istálló- 2 db
önitató- patamosó- tárolók- toalett- fürdővé alakítható helyiség- öltözőTELEK-
3377 m2- kis erdő- gyümölcsfák- szőlős- kút hidrofórral- grillező- kerti tó-
további, jelenleg szántónak használt 5000 m2-es terület is megvásárolhatóFONTOS
LEHET- tehermentes- egy tulajdonosFEHÉRTÓA kb. 480 fős rendezett, virágos
település Csornától 16 km-re, Győrtől 26 kilométerre található.- kb. 6 perc
autóútra az M85-ös gyorsforgalmi úttól- szennyvízhálózat nincs kiépítve-
bölcsőde, óvoda- orvosi rendelő- posta, bolt helyben megtalálható
alkalmas ingatlan eladó.HELYISÉGEK- 127 m2-es lakóház- hálószoba (27 m2)-
világos, tágas nappali (49 m2), kijárattal az udvarra néző teraszra- konyha +
étkező- fürdőben zuhanykabin, külön helyiségben a toalett- tárolók- előszoba- a
bútorok nagy részét az ár tartalmazza- 3 bejáratMŰSZAKI JELLEMZŐKA ház első
része: - 1820-ban épült tömésfal- látszó gerendás mennyezet- fa nyílászárók-
2022-ben felújított épület- 2 éve felújított nádtetőA hátsó rész: - 2022-ben
épült porotherm téglából- műanyag nyílászárókkal, redőnnyel felszerelve-
lemeztető- kívülről megközelíthető padlástér- fűtés cserépkályhával, illetve
napelemmel (6,2 kW) működtetett elektromos panelek által- ipari áram- gázcsonk
az udvaronMELLÉKÉPÜLET (140 m2)- 6 angol boxos istálló- 12 állásos istálló- 2 db
önitató- patamosó- tárolók- toalett- fürdővé alakítható helyiség- öltözőTELEK-
3377 m2- kis erdő- gyümölcsfák- szőlős- kút hidrofórral- grillező- kerti tó-
további, jelenleg szántónak használt 5000 m2-es terület is megvásárolhatóFONTOS
LEHET- tehermentes- egy tulajdonosFEHÉRTÓA kb. 480 fős rendezett, virágos
település Csornától 16 km-re, Győrtől 26 kilométerre található.- kb. 6 perc
autóútra az M85-ös gyorsforgalmi úttól- szennyvízhálózat nincs kiépítve-
bölcsőde, óvoda- orvosi rendelő- posta, bolt helyben megtalálható
Részletek...
Adatlap
| Ár: | 124.000.000 Ft |
| Település: | Fehértó |
| A hirdető: | Ingatlaniroda ajánlatából |
| Értékesítés típusa: | Eladó |
| Használtság: | Használt |
| Utca: | . |
| Telek nagysága (m2) : | 3377 |
| Épület hasznos területe (m2) : | 127 |
| Szobák száma: | 2 |
| Komfort: | Komfortos |
| Fűtés: | Egyéb fűtéses |
| Ingatlan állapota: | Felújított |
| Anyaga: | Tégla |
| Extrák: | istálló, boxok, önitató, patamosó, cserépkályha, nape |
| A hirdető kérése: | Ingatlanközvetítő vagyok - keresse fel Irodánkat! |
| Feladás dátuma: | 2026.01.08 |
| Eddig megtekintették 34 alkalommal | |
A hirdető adatai
Kapcsolat a hirdetővel...
Családi házak rovaton belül a(z) "Fehértó - lótartásra alkalmas, nagy területű ingatlan " című hirdetést látja. (fent)




























