
Egyed - összkomfortos ház nagy melléképületekkel
Egyeden 106 m2-es összkomfortos családi ház, nagy melléképületekkel és telekkel
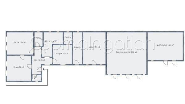
eladó.HELYISÉGEK- 3 külön bejáratú szoba- konyha + étkező- kamra- fürdő, külön
helyiségben a toalett- közlekedőMŰSZAKI JELLEMZŐK- tégla építésű- betonozott
helyiségek- hagyományos nyílászárók- fűtés gázkazán által- cserépkályha- meleg
víz gázbojler által- ipari áramMELLÉKÉPÜLETEK- kazánház (11 m2)- műhely (51 m2)-
fűthető gazdasági épület (152 m2)- melléképület (105 m2)- pince- garázsTELEK-
4000 m2- kútEGYEDA kb. 500 fős település Csornától 15 kilométerre fekszik.-
alsótagozatos iskola- családorvosi és védőnői szolgálat- bolt, posta helyben
megtalálható- falusi CSOK a településen igényelhető
eladó.HELYISÉGEK- 3 külön bejáratú szoba- konyha + étkező- kamra- fürdő, külön
helyiségben a toalett- közlekedőMŰSZAKI JELLEMZŐK- tégla építésű- betonozott
helyiségek- hagyományos nyílászárók- fűtés gázkazán által- cserépkályha- meleg
víz gázbojler által- ipari áramMELLÉKÉPÜLETEK- kazánház (11 m2)- műhely (51 m2)-
fűthető gazdasági épület (152 m2)- melléképület (105 m2)- pince- garázsTELEK-
4000 m2- kútEGYEDA kb. 500 fős település Csornától 15 kilométerre fekszik.-
alsótagozatos iskola- családorvosi és védőnői szolgálat- bolt, posta helyben
megtalálható- falusi CSOK a településen igényelhető
Részletek...
Adatlap
| Ár: | 38.990.000 Ft |
| Település: | Egyed |
| A hirdető: | Ingatlaniroda ajánlatából |
| Értékesítés típusa: | Eladó |
| Használtság: | Használt |
| Utca: | . |
| Telek nagysága (m2) : | 4000 |
| Épület hasznos területe (m2) : | 106 |
| Szobák száma: | 3 |
| Komfort: | Összkomfortos |
| Fűtés: | Gázfűtéses |
| Ingatlan állapota: | Normál állapotú |
| Anyaga: | Tégla |
| A hirdető kérése: | Ingatlanközvetítő vagyok - keresse fel Irodánkat! |
| Feladás dátuma: | 2026.05.08 |
| Eddig megtekintették 69 alkalommal | |
A hirdető adatai
Kapcsolat a hirdetővel...
Családi házak rovaton belül a(z) "Egyed - összkomfortos ház nagy melléképületekkel" című hirdetést látja. (fent)




























