
Eladó családi ház Sajószentpéter, Szondy György utca
Új építésű ÖKO-KERÁMIA családi ház ELADÓ Sajószentpéteren, csendes utcában, de a
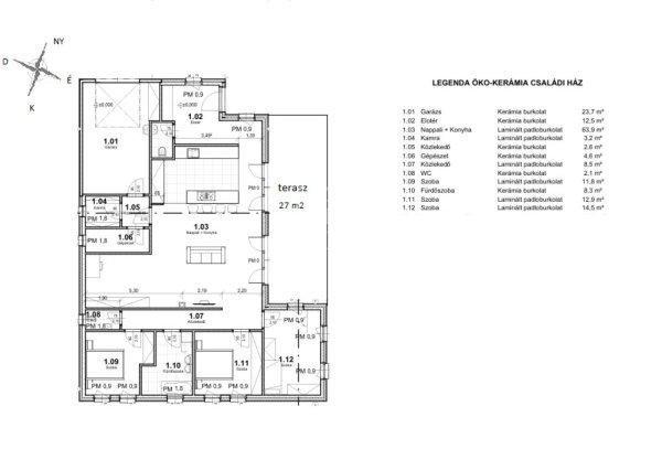
városközponthoz közel!A ház három különálló szobával és egy 60 négyzetméteres
nappali-étkező-konyhával rendelkezik. Emellett egy 24 négyzetméteres garázs, és
egy impozáns 27 négyzetméteres terasz is a házhoz tartozik. A házban több zónás
elektromos padlófűtés található, zónánként termosztáttal ellátva, továbbá
fokozott hőszigetelésű hat légkamrás nyílászárók. A rezsiköltség minimalizálása
és a fenntarthatóság érdekében közel 15 kWh-nyi napelem rendszer biztosítja az
energiát. A külső falak megerősített kerámia kompozit anyagból készültek, melyek
hőszigetelő képessége már önmagában is az átlagostól kedvezőbb, de ezen felül az
épület 13 cm-es, a födém pedig 40 cm-es kőzetgyapot szigetelést kapott. A tető
szerkezete cserepes lemez. Kiemelendő még az az okos szellőzőrendszer, amely a
nappali-étkező-konyha helyiségében található. A 956 m2-es telek parkosításra
előkészítve várja leendő tulajdonosát, az utcafront felől betonkerítéssel
övezve, járdával és térkövezve. A telekre a garázshoz vezető kapun kívül egy
másik kapun keresztül is be lehet parkolni, így egy vendég autónak is van hely.
Az ingatlan alkalmas családalapítás előtt álló fiatal pároknak, illetve több
gyermekes családoknak egyaránt. A ház Miskolchoz és Kazincbarcikához is közel
van, egyesíti a vidék csendességét és a városi infrastruktúra iránti igényeket.
Ha felkeltette az érdeklődését az ingatlan, keressen bizalommal! Ha önnek is van
eladó ingatlana, az értékesítésben is állok rendelkezésre! ...TOVÁBBI, TÖBBEZRES
INGATLAN KÍNÁLAT: www.gdn-ingatlan.hu - GDN azonosító: 386061
városközponthoz közel!A ház három különálló szobával és egy 60 négyzetméteres
nappali-étkező-konyhával rendelkezik. Emellett egy 24 négyzetméteres garázs, és
egy impozáns 27 négyzetméteres terasz is a házhoz tartozik. A házban több zónás
elektromos padlófűtés található, zónánként termosztáttal ellátva, továbbá
fokozott hőszigetelésű hat légkamrás nyílászárók. A rezsiköltség minimalizálása
és a fenntarthatóság érdekében közel 15 kWh-nyi napelem rendszer biztosítja az
energiát. A külső falak megerősített kerámia kompozit anyagból készültek, melyek
hőszigetelő képessége már önmagában is az átlagostól kedvezőbb, de ezen felül az
épület 13 cm-es, a födém pedig 40 cm-es kőzetgyapot szigetelést kapott. A tető
szerkezete cserepes lemez. Kiemelendő még az az okos szellőzőrendszer, amely a
nappali-étkező-konyha helyiségében található. A 956 m2-es telek parkosításra
előkészítve várja leendő tulajdonosát, az utcafront felől betonkerítéssel
övezve, járdával és térkövezve. A telekre a garázshoz vezető kapun kívül egy
másik kapun keresztül is be lehet parkolni, így egy vendég autónak is van hely.
Az ingatlan alkalmas családalapítás előtt álló fiatal pároknak, illetve több
gyermekes családoknak egyaránt. A ház Miskolchoz és Kazincbarcikához is közel
van, egyesíti a vidék csendességét és a városi infrastruktúra iránti igényeket.
Ha felkeltette az érdeklődését az ingatlan, keressen bizalommal! Ha önnek is van
eladó ingatlana, az értékesítésben is állok rendelkezésre! ...TOVÁBBI, TÖBBEZRES
INGATLAN KÍNÁLAT: www.gdn-ingatlan.hu - GDN azonosító: 386061
Részletek...
Adatlap
| Ár: | 119.000.000 Ft |
| Település: | Sajószentpéter |
| A hirdető: | Ingatlaniroda ajánlatából |
| Értékesítés típusa: | Eladó |
| Használtság: | Új építésű |
| Utca: | Szondy György utca |
| Telek nagysága (m2) : | 956 |
| Épület hasznos területe (m2) : | 196 |
| Szobák száma: | 3 |
| Félszobák száma: | 1 |
| Fűtés: | Egyéb fűtéses |
| A hirdető kérése: | Ingatlanközvetítő vagyok - keresse fel Irodánkat! |
| Feladás dátuma: | 2026.01.15 |
| Eddig megtekintették 40 alkalommal | |
A hirdető adatai
Kapcsolat a hirdetővel...
Családi házak rovaton belül a(z) "Eladó családi ház Sajószentpéter, Szondy György utca" című hirdetést látja. (fent)




























