
Eladó családi ház Jászberény, Bársony utca
Jászberényben a Szatmári lakóparkban a Bársony utcában , 737 m2-es telken,
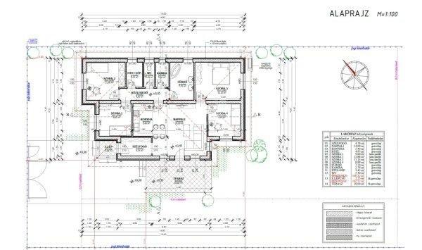
újonnan épülő nettó 100,12 m2 hasznos lakótérrel rendelkező, 4 szoba + nappalis
önálló családi ház eladó.Csok plusz, Otthon Start elérhető!Az építkezés
elkezdődött, az alap elkészült.Az ingatlan 30-as Nútféderes tégla falazóelemből
épül, fa födémmel.A tető héjazata antracit betoncserép lesz, a homlokzatok 15cm
EPS, a padló 10cm Austrotherm AT-N100-as, a vízszintes födém 25cm Ásványgyapot
szigeteléssel lesz ellátva.Hat légkamrás 3 rétegű evegekkel szerelt nyílászárók
kerülnek beépítésre.A fűtést 10kw-os monoblockos hőszivattyús rendszer fogja
ellátni, padlófűtéssel. A műszaki tartalom választható az alábbi költségkereten
belül:-hidegburkolat:3000.- Ft./m2-ig.-melegburkolat:3000.-
Ft./m2-ig-csaptelepek:15.000.- Ft./db-kád vagy zuhany: 40.000.- Ft.-beltéri
ajtók:35.000.- Ft./dbElektromos kiépítés:-Konnektorok szobákban: 3
db-Konnektorok nappaliban 4db + internet és kábeltv kiállás-Konnektorok
konyhában: 6db-Világítás helyiségenként 1-1 db-Kábeltévé: ElőkészítésMagasabb
árú tatalom is választható a különbség finanszírozásával.Riasztó előkészítés és
kapu mozgató elektronika előkészítés is készül.Kérésre szívesen küldünk komplett
tervdokumentációt, műszaki leírást.A kivitelező korábban Sülysápon számos
ingatlant épített,a már értékesített és birtokbaadott ingatlanokat komoly
érdeklődés esetén szívesen megmutatjuk referenciaként.Várható átadás 2026
második negyedév!INGYENES hitel tanácsadás, CSOK Plusz ügyintézés!BANKFÜGGETLEN
hitelcentrumunk az összes elérhető bank és hitelintézet ajánlatát versenyezteti
az Ön kedvéért, ráadásul DÍJMENTESEN.- Egyedi, bankfiókban nem elérhető kamat-
és díjkedvezmények- Hitelképesség vizsgálat- Idő, energia és pénz megtakarítás-
Teljes hivatali ügyintézésAmennyiben hirdetésem felkeltette az érdeklődését vagy
egyéb információra van szüksége hívjon bizalommal! ...TOVÁBBI, TÖBBEZRES
INGATLAN KÍNÁLAT: www.gdn-ingatlan.hu - GDN azonosító: 386258
újonnan épülő nettó 100,12 m2 hasznos lakótérrel rendelkező, 4 szoba + nappalis
önálló családi ház eladó.Csok plusz, Otthon Start elérhető!Az építkezés
elkezdődött, az alap elkészült.Az ingatlan 30-as Nútféderes tégla falazóelemből
épül, fa födémmel.A tető héjazata antracit betoncserép lesz, a homlokzatok 15cm
EPS, a padló 10cm Austrotherm AT-N100-as, a vízszintes födém 25cm Ásványgyapot
szigeteléssel lesz ellátva.Hat légkamrás 3 rétegű evegekkel szerelt nyílászárók
kerülnek beépítésre.A fűtést 10kw-os monoblockos hőszivattyús rendszer fogja
ellátni, padlófűtéssel. A műszaki tartalom választható az alábbi költségkereten
belül:-hidegburkolat:3000.- Ft./m2-ig.-melegburkolat:3000.-
Ft./m2-ig-csaptelepek:15.000.- Ft./db-kád vagy zuhany: 40.000.- Ft.-beltéri
ajtók:35.000.- Ft./dbElektromos kiépítés:-Konnektorok szobákban: 3
db-Konnektorok nappaliban 4db + internet és kábeltv kiállás-Konnektorok
konyhában: 6db-Világítás helyiségenként 1-1 db-Kábeltévé: ElőkészítésMagasabb
árú tatalom is választható a különbség finanszírozásával.Riasztó előkészítés és
kapu mozgató elektronika előkészítés is készül.Kérésre szívesen küldünk komplett
tervdokumentációt, műszaki leírást.A kivitelező korábban Sülysápon számos
ingatlant épített,a már értékesített és birtokbaadott ingatlanokat komoly
érdeklődés esetén szívesen megmutatjuk referenciaként.Várható átadás 2026
második negyedév!INGYENES hitel tanácsadás, CSOK Plusz ügyintézés!BANKFÜGGETLEN
hitelcentrumunk az összes elérhető bank és hitelintézet ajánlatát versenyezteti
az Ön kedvéért, ráadásul DÍJMENTESEN.- Egyedi, bankfiókban nem elérhető kamat-
és díjkedvezmények- Hitelképesség vizsgálat- Idő, energia és pénz megtakarítás-
Teljes hivatali ügyintézésAmennyiben hirdetésem felkeltette az érdeklődését vagy
egyéb információra van szüksége hívjon bizalommal! ...TOVÁBBI, TÖBBEZRES
INGATLAN KÍNÁLAT: www.gdn-ingatlan.hu - GDN azonosító: 386258
Részletek...
Adatlap
| Ár: | 62.900.000 Ft |
| Település: | Jászberény |
| A hirdető: | Ingatlaniroda ajánlatából |
| Értékesítés típusa: | Eladó |
| Használtság: | Új építésű |
| Utca: | Bársony utca |
| Telek nagysága (m2) : | 737 |
| Épület hasznos területe (m2) : | 100 |
| Szobák száma: | 5 |
| Anyaga: | Tégla |
| A hirdető kérése: | Ingatlanközvetítő vagyok - keresse fel Irodánkat! |
| Feladás dátuma: | 2026.01.15 |
| Eddig megtekintették 36 alkalommal | |
A hirdető adatai
Kapcsolat a hirdetővel...
Családi házak rovaton belül a(z) "Eladó családi ház Jászberény, Bársony utca" című hirdetést látja. (fent)




























