
Eladó 180.00 nm-es Új építésű Családi ház Diósd Központ
Diósd központjában eladó egy nappali + 4 hálószobás, duplagarázsos, nettó 180
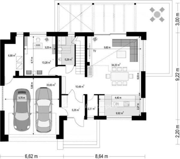
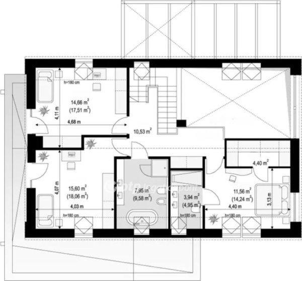
m2-es családi ház 826 m2-es önálló telken.Helyiségek:Amerikai konyhás
nappali 44,1 m2 Szoba 14,7 m2 Szoba 15,6 m2 Szoba 11,6
m2 Szoba 10,5 m2 Gardrób 3,2 m2 Közlekedő 4,1 m2 Fürdőszoba 8
m2 Fürdőszoba 5,3 m2 Fürdőszoba 4 m2 Előszoba 5,3 m2 Kamra 4,1
m2 Garázs 33,6 m2 Lépcsőház10,5 m2 A látványképen látható ház a modern
skandináv és modern farmház stílus jegyeit hordozza. Jellemző rá az egyszerű,
letisztult forma, a fa és fémburkolat kontrasztos kombinációja, valamint a nagy
üvegfelületek, amelyek sok természetes fényt engednek be. Az épület a
hagyományos, magasított tetős formát modern anyaghasználattal gondolja újra,
amivel egyidejűleg meleg és letisztult hatást kelt.Rövid műszaki
tartalom:Tartófalazata 30-as Porotherm téglából, a válaszfalak 10-es Porotherm
téglából készülnek vakolással3 rétegű barna műanyag ablakok Rejtett redőnytok
kialakítva, barna elektromos aluminium redőny, szúnyogháló15cm homlokzati
szigetelés Hideg-meleg burkolatok 10 ezer ft / m2-ig választhatók3 db Geberit
beépített WCFűtés: Bosch 11 kw hőszivattyú padlófűtésselRiasztó
előkészítésVillanyóra 3 fázissalhőszigetelt elektromos garázskapu1db kiskapu, 1
db elektromos nagykapuÉpített kerítés színezveA vételár a kulcsrakész átadásra
vonatkozik, amely 2026. tavaszra várható (kiválasztott anyagok függvénye).A
fotók között szerepelnek referencia- és látványképek is!A hirdetésben szereplő
információkat a megbízótól kapott adatok alapján közöltem. A közelben iskola,
óvoda, orvosi rendelő, bevásárlási lehetőségek, gépkocsival az M0, M1, M6 és M7
autópálya 5 perc alatt elérhető. Vevőinknek szükség esetén kedvezményes hitelt
biztosítunk teljes körű ügyintézéssel! Az adásvételi szerződés megkötéséhez
igény szerint megbízható ügyvédi közreműködést biztosítunk, és segítséget
nyújtunk az adásvételhez kapcsolódó ügyek intézéséhez. Hívjon bizalommal!
m2-es családi ház 826 m2-es önálló telken.Helyiségek:Amerikai konyhás
nappali 44,1 m2 Szoba 14,7 m2 Szoba 15,6 m2 Szoba 11,6
m2 Szoba 10,5 m2 Gardrób 3,2 m2 Közlekedő 4,1 m2 Fürdőszoba 8
m2 Fürdőszoba 5,3 m2 Fürdőszoba 4 m2 Előszoba 5,3 m2 Kamra 4,1
m2 Garázs 33,6 m2 Lépcsőház10,5 m2 A látványképen látható ház a modern
skandináv és modern farmház stílus jegyeit hordozza. Jellemző rá az egyszerű,
letisztult forma, a fa és fémburkolat kontrasztos kombinációja, valamint a nagy
üvegfelületek, amelyek sok természetes fényt engednek be. Az épület a
hagyományos, magasított tetős formát modern anyaghasználattal gondolja újra,
amivel egyidejűleg meleg és letisztult hatást kelt.Rövid műszaki
tartalom:Tartófalazata 30-as Porotherm téglából, a válaszfalak 10-es Porotherm
téglából készülnek vakolással3 rétegű barna műanyag ablakok Rejtett redőnytok
kialakítva, barna elektromos aluminium redőny, szúnyogháló15cm homlokzati
szigetelés Hideg-meleg burkolatok 10 ezer ft / m2-ig választhatók3 db Geberit
beépített WCFűtés: Bosch 11 kw hőszivattyú padlófűtésselRiasztó
előkészítésVillanyóra 3 fázissalhőszigetelt elektromos garázskapu1db kiskapu, 1
db elektromos nagykapuÉpített kerítés színezveA vételár a kulcsrakész átadásra
vonatkozik, amely 2026. tavaszra várható (kiválasztott anyagok függvénye).A
fotók között szerepelnek referencia- és látványképek is!A hirdetésben szereplő
információkat a megbízótól kapott adatok alapján közöltem. A közelben iskola,
óvoda, orvosi rendelő, bevásárlási lehetőségek, gépkocsival az M0, M1, M6 és M7
autópálya 5 perc alatt elérhető. Vevőinknek szükség esetén kedvezményes hitelt
biztosítunk teljes körű ügyintézéssel! Az adásvételi szerződés megkötéséhez
igény szerint megbízható ügyvédi közreműködést biztosítunk, és segítséget
nyújtunk az adásvételhez kapcsolódó ügyek intézéséhez. Hívjon bizalommal!
Részletek...
Adatlap
| Ár: | 275.000.000 Ft |
| Település: | Diósd |
| A hirdető: | Ingatlaniroda ajánlatából |
| Értékesítés típusa: | Eladó |
| Használtság: | Új építésű |
| Utca: | Központ |
| Telek nagysága (m2) : | 826 |
| Épület hasznos területe (m2) : | 180.00 |
| Szobák száma: | 5 |
| Feladás dátuma: | 2026.01.15 |
| Eddig megtekintették 42 alkalommal | |
A hirdető adatai
Kapcsolat a hirdetővel...
Családi házak rovaton belül a(z) "Eladó 180.00 nm-es Új építésű Családi ház Diósd Központ " című hirdetést látja. (fent)


























