
Eladó családi ház Budapest, XXI. kerület, Hollandi út
*Különleges lehetőség! 1970-80-as években épült, 3 szintes családi ház
eladó!*Egyedi ajánlat: 2 x 95 nm-es, két külön bejáratú lakás egy ingatlanban! -
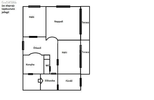
*Alsó szint:*- Fedett teraszról érkezünk az előszobába, 2 szoba, étkező, konyha,
spájz, kádas fürdőszoba, külön WC, és tartozik hozzá egy külön bejáratú
szoba/tároló- *Felső szint:*- 3 szoba, étkező, konyha, zuhanyzós fürdőszoba,
külön WC, előszoba- Műszaki jellemzők:- Téglából épült, műanyag nyílászárók
redőnnyel, szúnyoghálóval- Alsó szinten és fent is radiátoros fűtés (kazán és
vegyestüzelésű kazán) fenti szinten egy klíma- Melegvíz:
villanybojlerKörnyezet:-Az ingatlan közel a Dunaparthoz egy szépen gondozott
saroktelken épült két ütemben. A kert locsolása fúrt kútról megoldható.- 30
nm-es garázs az autónak Érdekel? Szeretnél többet megtudni vagy megtekinteni az
ingatlant?Keress bizalommal! ...TOVÁBBI, TÖBBEZRES INGATLAN KÍNÁLAT:
www.gdn-ingatlan.hu - GDN azonosító: 386554
eladó!*Egyedi ajánlat: 2 x 95 nm-es, két külön bejáratú lakás egy ingatlanban! -
*Alsó szint:*- Fedett teraszról érkezünk az előszobába, 2 szoba, étkező, konyha,
spájz, kádas fürdőszoba, külön WC, és tartozik hozzá egy külön bejáratú
szoba/tároló- *Felső szint:*- 3 szoba, étkező, konyha, zuhanyzós fürdőszoba,
külön WC, előszoba- Műszaki jellemzők:- Téglából épült, műanyag nyílászárók
redőnnyel, szúnyoghálóval- Alsó szinten és fent is radiátoros fűtés (kazán és
vegyestüzelésű kazán) fenti szinten egy klíma- Melegvíz:
villanybojlerKörnyezet:-Az ingatlan közel a Dunaparthoz egy szépen gondozott
saroktelken épült két ütemben. A kert locsolása fúrt kútról megoldható.- 30
nm-es garázs az autónak Érdekel? Szeretnél többet megtudni vagy megtekinteni az
ingatlant?Keress bizalommal! ...TOVÁBBI, TÖBBEZRES INGATLAN KÍNÁLAT:
www.gdn-ingatlan.hu - GDN azonosító: 386554
Részletek...
Adatlap
| Ár: | 179.500.000 Ft |
| Település: | XXI. kerület |
| A hirdető: | Ingatlaniroda ajánlatából |
| Értékesítés típusa: | Eladó |
| Használtság: | Használt |
| Utca: | Hollandi út |
| Telek nagysága (m2) : | 539 |
| Épület hasznos területe (m2) : | 190 |
| Szobák száma: | 5 |
| Fűtés: | Cirkó fűtéses |
| Ingatlan állapota: | Normál állapotú |
| Anyaga: | Tégla |
| A hirdető kérése: | Ingatlanközvetítő vagyok - keresse fel Irodánkat! |
| Feladás dátuma: | 2026.02.28 |
| Eddig megtekintették 49 alkalommal | |
A hirdető adatai
Kapcsolat a hirdetővel...
Családi házak rovaton belül a(z) "Eladó családi ház Budapest, XXI. kerület, Hollandi út" című hirdetést látja. (fent)




























