
7 lakásos projekt eladó a Gellérthegy lábánál! - Budapest XI
7 lakásos projekt eladó a Gellérthegy lábánál!Lk-1-XI-02 jelű építési
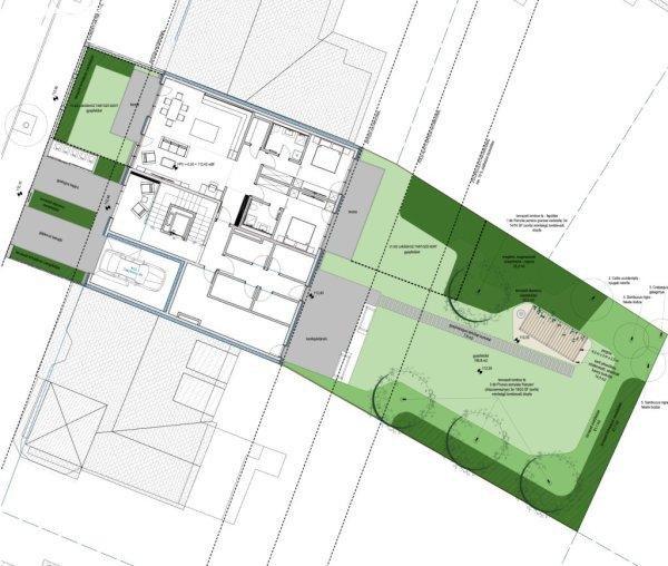
övezetEladható hasznos területek: Ingatlan: 698 m2Terasz: 99 m2Kert: 66
m2Tároló: 43 m2Garázs: 101 m2 / 7 dbÉpítési engedélyezés indítása -
2023.04.01.Eljárási időszak - 35 napKiviteli tervek 75%-on vannak. Gépészet és
elektromosság: PontosítandóJelen állapotában a projektelőkészítés még 2 hónap.
Tervezett kivitelezés: Ház:Minimalista és klasszikus design házasságával
tervezett, környezetébe illeszkedő, ahol fontos szerepet játszik a megújuló
levegő-víz hőszivattyús fűtésrendszer, és természetesen a hulladék szelektív
gyűjtése is a leendő családok kényelme mellett. A szerkezetnél és a
szigetélésnél fontos szerepet játszott a fenntarthatóság a modern korral
ötvözve.A kis lakásszám ( 7 db ) miatt igazi családias környezetet teremtünk,
kerti közösségi térrel, grillel, igazi, használható 300 m2-es közös kerttel. A
hatékony üzemeltetés mellett kiemelt fontosságú az épület élhetősége. Az
épületszerkezet nagy hőtehetetlensége biztosítja a lakások nyári klímáját és a
tervezett gépészeti rendszerekkel (födémbe épített, mennyezeti- és
padlófűtés-hűtés) nem csak az épület fűtését kívánjuk megoldani, hanem nyári
hűtését is. Az előremutató erőforrások felhasználása mellett kulcsfontosságú az
épületbe tervezett gépészeti és elektromos rendszerek alacsony
energiafelhasználása, a szellőzőrendszerekben felhalmozódó energia visszanyerése
hőcserélőkkel.Az épület tervezésénél törekedtünk arra, hogy hogy a lehető
legnagyobb zöldfelületet meghagyva, megújuló energiaforrásokat alkalmazva,
?okosotthon? rendszerrel felszerelt, jól használható, szerethető lakókörnyezetet
alakítsanak ki a leendő lakók számára, melyek mindegyike dupla nézetű, az
utcafront felé a nappalik helyezkednek el, így az összes nappali nyugati a
hálószobák keleti tájolásúak. Fontosabb paraméterek: - 1 mélygarázs szint- A
földszinten 1 lakás dupla kerttel, tárolók, valamint biciklitárolók helyezkednek
el- 3 szint lakóépület a földszinttől- 7 lakás, 7 parkolóhely és 9 tároló,
valamint közös biciklitároló- Lift- 20 cm vastagságú monolit vasbeton tartfalak-
Napelemek a tetőn - Hőszivattyú- Okosotthon vezérlés- Mennyezethűtés és
padlófűtés- Töltők a teremgarázsban, külön órával- Igazi, használható közös
kert- Esővíz visszanyerő rendszerAz épület külső falai:Az épület külső
falszerkezete 20 cm vastag vasbeton fal 20 cm vastag vakolható kőzetgyapot
hőszigeteléssel. A földszinti homlokzati falak és a kerítés világos
téglaburkolatot kapnak, a felsőbb szinteken fehérre vakolt falfelületek
készülnek.Lakáselválasztó-, vázkitöltő falazatok:Az épület belső lakáselválasztó
falai és a folyosói falai - melyek egyúttal vázkitöltő falak is - kétoldalt
vakolt 20 cm vastag mészhomoktéglából készülnek a kedvező akusztikai paraméterek
miatt.Válaszfalak:A lakásokon belüli válaszfalaknál két oldalon vakolt
pórusbeton ( Ytong) falazatot használunk.Lakások:- Hőszivattyús mennyezeti hűtés
és padló fűtés- Riasztó rendszer előkészítése- Video kaputelefon, távnyitási
lehetőséggel- MABISZ előírásnak megfelelő biztonsági bejárati ajtó- Homlokzati
nyílászáró bukó nyíló vasalattal. Redőnydoboz elektromos redőnyökkel- 3 fázis
előkészítés- Fibaro okosotthon beszerelés - Felhő alapú okoskamera rendszer-
Elektromos autó töltő a garázsban, külön mérőórákkal- Külön elektromos
csatlakozás a tárolóknál, szintén külön órákkal- Választható prémium minőségű
burkolatok Minden ingatlanhoz meghatározott értékű konyhabútort és igény esetén
térítés nélkül belsőépítészt biztosítunk. A tetőtéri és a földszinti lakásoknál
2 személyes Wallis jacuzzi adunk ajándékba, melyek a hátsó teraszra kerülnek
beépítésre. Környék:A ház a Gellérthegy és Kelenföld városrészek határán
taláható, közel a Villányi úthoz, mégis olyan távolságra, hogy a város zaja
elcsendesüljön. Az utca Bauhause jellegű és századfordulós villákkal beépített,
hatalmas tölgy fákkal övezett biztonságos utca, kiváló tömegközlekedéssel.Az ár
nettó.
övezetEladható hasznos területek: Ingatlan: 698 m2Terasz: 99 m2Kert: 66
m2Tároló: 43 m2Garázs: 101 m2 / 7 dbÉpítési engedélyezés indítása -
2023.04.01.Eljárási időszak - 35 napKiviteli tervek 75%-on vannak. Gépészet és
elektromosság: PontosítandóJelen állapotában a projektelőkészítés még 2 hónap.
Tervezett kivitelezés: Ház:Minimalista és klasszikus design házasságával
tervezett, környezetébe illeszkedő, ahol fontos szerepet játszik a megújuló
levegő-víz hőszivattyús fűtésrendszer, és természetesen a hulladék szelektív
gyűjtése is a leendő családok kényelme mellett. A szerkezetnél és a
szigetélésnél fontos szerepet játszott a fenntarthatóság a modern korral
ötvözve.A kis lakásszám ( 7 db ) miatt igazi családias környezetet teremtünk,
kerti közösségi térrel, grillel, igazi, használható 300 m2-es közös kerttel. A
hatékony üzemeltetés mellett kiemelt fontosságú az épület élhetősége. Az
épületszerkezet nagy hőtehetetlensége biztosítja a lakások nyári klímáját és a
tervezett gépészeti rendszerekkel (födémbe épített, mennyezeti- és
padlófűtés-hűtés) nem csak az épület fűtését kívánjuk megoldani, hanem nyári
hűtését is. Az előremutató erőforrások felhasználása mellett kulcsfontosságú az
épületbe tervezett gépészeti és elektromos rendszerek alacsony
energiafelhasználása, a szellőzőrendszerekben felhalmozódó energia visszanyerése
hőcserélőkkel.Az épület tervezésénél törekedtünk arra, hogy hogy a lehető
legnagyobb zöldfelületet meghagyva, megújuló energiaforrásokat alkalmazva,
?okosotthon? rendszerrel felszerelt, jól használható, szerethető lakókörnyezetet
alakítsanak ki a leendő lakók számára, melyek mindegyike dupla nézetű, az
utcafront felé a nappalik helyezkednek el, így az összes nappali nyugati a
hálószobák keleti tájolásúak. Fontosabb paraméterek: - 1 mélygarázs szint- A
földszinten 1 lakás dupla kerttel, tárolók, valamint biciklitárolók helyezkednek
el- 3 szint lakóépület a földszinttől- 7 lakás, 7 parkolóhely és 9 tároló,
valamint közös biciklitároló- Lift- 20 cm vastagságú monolit vasbeton tartfalak-
Napelemek a tetőn - Hőszivattyú- Okosotthon vezérlés- Mennyezethűtés és
padlófűtés- Töltők a teremgarázsban, külön órával- Igazi, használható közös
kert- Esővíz visszanyerő rendszerAz épület külső falai:Az épület külső
falszerkezete 20 cm vastag vasbeton fal 20 cm vastag vakolható kőzetgyapot
hőszigeteléssel. A földszinti homlokzati falak és a kerítés világos
téglaburkolatot kapnak, a felsőbb szinteken fehérre vakolt falfelületek
készülnek.Lakáselválasztó-, vázkitöltő falazatok:Az épület belső lakáselválasztó
falai és a folyosói falai - melyek egyúttal vázkitöltő falak is - kétoldalt
vakolt 20 cm vastag mészhomoktéglából készülnek a kedvező akusztikai paraméterek
miatt.Válaszfalak:A lakásokon belüli válaszfalaknál két oldalon vakolt
pórusbeton ( Ytong) falazatot használunk.Lakások:- Hőszivattyús mennyezeti hűtés
és padló fűtés- Riasztó rendszer előkészítése- Video kaputelefon, távnyitási
lehetőséggel- MABISZ előírásnak megfelelő biztonsági bejárati ajtó- Homlokzati
nyílászáró bukó nyíló vasalattal. Redőnydoboz elektromos redőnyökkel- 3 fázis
előkészítés- Fibaro okosotthon beszerelés - Felhő alapú okoskamera rendszer-
Elektromos autó töltő a garázsban, külön mérőórákkal- Külön elektromos
csatlakozás a tárolóknál, szintén külön órákkal- Választható prémium minőségű
burkolatok Minden ingatlanhoz meghatározott értékű konyhabútort és igény esetén
térítés nélkül belsőépítészt biztosítunk. A tetőtéri és a földszinti lakásoknál
2 személyes Wallis jacuzzi adunk ajándékba, melyek a hátsó teraszra kerülnek
beépítésre. Környék:A ház a Gellérthegy és Kelenföld városrészek határán
taláható, közel a Villányi úthoz, mégis olyan távolságra, hogy a város zaja
elcsendesüljön. Az utca Bauhause jellegű és századfordulós villákkal beépített,
hatalmas tölgy fákkal övezett biztonságos utca, kiváló tömegközlekedéssel.Az ár
nettó.
Részletek...
Adatlap
| Ár: | 420.000.000 Ft |
| Település: | XI. kerület |
| A hirdető: | Ingatlaniroda ajánlatából |
| Értékesítés típusa: | Eladó |
| Használtság: | Használt |
| Telek nagysága (m2) : | 734 |
| Épület hasznos területe (m2) : | 1184.00 |
| Szobák száma: | 24 |
| Feladás dátuma: | 2026.02.28 |
| Eddig megtekintették 45 alkalommal | |
A hirdető adatai
Kapcsolat a hirdetővel...
Családi házak rovaton belül a(z) "7 lakásos projekt eladó a Gellérthegy lábánál! - Budapest XI" című hirdetést látja. (fent)




























