
Eladó családi ház Vámosmikola, Vámosmikola
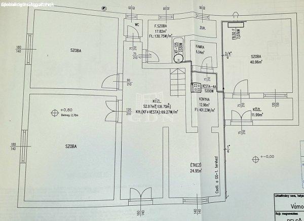
Budapesttől egy órára, a festői Vámosmikolán kínálunk eladásra egy 160 nm-es, 5
szobás, kétgenerációs családi házat, különálló lakrésszel, műhellyel.A 2319
nm-es, sík, gondozott, gyümölcsfákkal ültetett telek gazdálkodásra kiválóan
alkalmas.Az ingatlanhoz külön bejáratú üzlethelyiség, 2 részes, 104
nm-es,szerelőaknás autószerelő műhely, garázs tartozik.A melléképületben 1
szoba, konyha, fürdőszobás, hangulatos garzonlakás lett kialakítva.Az ingatlan,
csendes, aszfaltos utcában helyezkedik el, közel a faluközponthoz.Iskola, óvoda,
üzletek, buszmegálló pár perc sétára található.Vállalkozásra, állandó
lakhatásra, akár összeköltözőknek is remek választás!Vámosmikola egy szép ősi
település a Börzsöny ölelésében.A település a túrázók egyik kedvenc célpontja, a
közelben kisvasút, erdei strand, éttermek kényeztetik az ide látogatókat.A falut
kedves, segítőkész emberek lakják, a közbiztonság jó!CSOK, KEDVEZMÉNYES HITEL
IGÉNYELHETŐ!Várom megtisztelő hívását hétvégén is!Bankfüggetlen hitelcentrumunk
minden elérhető bank és hitelintézet ajánlatát versenyezteti az Ön kedvéért,
ráadásul díjmentesen. Önnek nincs más dolga, mint elbeszélgetni munkatársunkkal,
aki a hallott információk alapján versenyre hívja a bankokat, hogy Ön hosszú
távon is a legjobb konstrukciót kaphassa. A legjobb ajánlatokból végül Ön
választhatja ki a nyertest. Munkatársaink sokéves szakmai tapasztalattal várják
Önt, előre egyeztetve akár a normál munkaidő után is. ...TOVÁBBI, TÖBBEZRES
INGATLAN KÍNÁLAT: www.gdn-ingatlan.hu - GDN azonosító: 387212
szobás, kétgenerációs családi házat, különálló lakrésszel, műhellyel.A 2319
nm-es, sík, gondozott, gyümölcsfákkal ültetett telek gazdálkodásra kiválóan
alkalmas.Az ingatlanhoz külön bejáratú üzlethelyiség, 2 részes, 104
nm-es,szerelőaknás autószerelő műhely, garázs tartozik.A melléképületben 1
szoba, konyha, fürdőszobás, hangulatos garzonlakás lett kialakítva.Az ingatlan,
csendes, aszfaltos utcában helyezkedik el, közel a faluközponthoz.Iskola, óvoda,
üzletek, buszmegálló pár perc sétára található.Vállalkozásra, állandó
lakhatásra, akár összeköltözőknek is remek választás!Vámosmikola egy szép ősi
település a Börzsöny ölelésében.A település a túrázók egyik kedvenc célpontja, a
közelben kisvasút, erdei strand, éttermek kényeztetik az ide látogatókat.A falut
kedves, segítőkész emberek lakják, a közbiztonság jó!CSOK, KEDVEZMÉNYES HITEL
IGÉNYELHETŐ!Várom megtisztelő hívását hétvégén is!Bankfüggetlen hitelcentrumunk
minden elérhető bank és hitelintézet ajánlatát versenyezteti az Ön kedvéért,
ráadásul díjmentesen. Önnek nincs más dolga, mint elbeszélgetni munkatársunkkal,
aki a hallott információk alapján versenyre hívja a bankokat, hogy Ön hosszú
távon is a legjobb konstrukciót kaphassa. A legjobb ajánlatokból végül Ön
választhatja ki a nyertest. Munkatársaink sokéves szakmai tapasztalattal várják
Önt, előre egyeztetve akár a normál munkaidő után is. ...TOVÁBBI, TÖBBEZRES
INGATLAN KÍNÁLAT: www.gdn-ingatlan.hu - GDN azonosító: 387212
Részletek...
Adatlap
| Ár: | 59.900.000 Ft |
| Település: | Vámosmikola |
| A hirdető: | Ingatlaniroda ajánlatából |
| Értékesítés típusa: | Eladó |
| Használtság: | Használt |
| Utca: | Vámosmikola |
| Telek nagysága (m2) : | 2319 |
| Épület hasznos területe (m2) : | 160 |
| Szobák száma: | 5 |
| Fűtés: | Cirkó fűtéses |
| Ingatlan állapota: | Normál állapotú |
| Anyaga: | Tégla |
| A hirdető kérése: | Ingatlanközvetítő vagyok - keresse fel Irodánkat! |
| Feladás dátuma: | 2026.01.13 |
| Eddig megtekintették 28 alkalommal | |
A hirdető adatai
Kapcsolat a hirdetővel...
Családi házak rovaton belül a(z) "Eladó családi ház Vámosmikola, Vámosmikola" című hirdetést látja. (fent)




























