
Eladó ikerház Kiskunlacháza, Pest megye
Kiskunlacháza kedvelt utcájában, a szomszédtól fedett kerti tárolóval
elkülönített ikerház első "A" lakása eladó, 504 m2 saját kerttel.KIVÁLÓ
KIVITELEZŐ, VERSENYKÉPES ÁRON, KIVÁLÓ OTTHONT AJÁNL ÖNNEK! CSOK +, H-TARIFA!!Az
otthon 75 négyzetméteres, ehhez + kerti tároló 3 m2 és terasz 9 m2
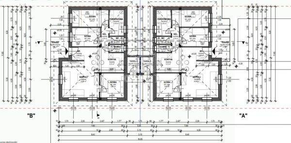
kapcsolódik.Helyiségei: nappali 23,62 m2, szoba 8,85 m2, szoba 9,45 m2, szoba
8,05 m2, konyha 8,13 m2, fürdő szoba 5,76 m2, közlekedő 2,18 m2, előtér 2,40 m2,
kamra 1,62 m2, wc 1,62 m2, terasz 8,85 m2, tároló 3,00 m2.A telek ideális 504
négyzetméteres, a szomszédot csak akkor látjuk és halljuk ha mi is szeretnénk, a
teraszon zavartalanul pihenhetünk.Az otthon beton alapra, tégla falazattal, fa
födémmel, beton cserép fedéssel épül meg.Az épület külső nyílászárói (ablakok)
műanyag szerkezetűek 6 légkamrás 3 rétegű hőszigetelt üvegezéssel.A bejárati
biztonsági ajtó több ponton záródó.A homlokzaton 10 cm Dryvit rendszerű, a
födémben 25 cm szálas szerkezetű, míg a padlóban 10 cm lépésálló nikecell
szigetelés kerül beépítésre.Fűtése/ hűtése, meleg vízellátása hőszivattyúval
(levegő) történik padlófűtéssel. A H tarifa kedvező üzemeltetési költséget
biztosít.Burkolatok választhatóak keretösszegig, felette a vevő kompenzál.
Szaniterek keretösszegig választhatók.A kert alap kertrendezéssel kerül
átadásra, viacolorozott autóbeállóval és személybejáróval.Az alaprajz
változtatható, burkolatok választhatóak, a kivitelező igyekszik minden vásárlói
igényt kielégíteni.Az ikerfelek külön mérőórával, külön helyrajzi számmal
rendelkeznek, társas házi alapító okirat készül.Az ingatlan várható átadása 2026
nyara.Három utcafronti és három belső ikerfél épül.A hirdetésben feltöltött
képek között a kivitelező által épített házak képei kerültek feltöltésre. Első
"A" lakás 504 m2 kert, 75 m2 ára: 68.900.000 ftHátsó "B" lakás 742 m2 kert, 75
m2 ára: 69.900.000 ftVárom megtisztelő hívását!FINANSZÍROZÁS:Nálunk mindent egy
helyen intézhet:- hivatalos ingatlanközvetítés;- szakszerű jogi képviselet;-
profi CSOK-PLUSZ, és hitelügyintézés: 16 Bank, több mint 100 konstrukció;A
részletes adatvédelmi tájékoztató folyamatosan elérhető a oldalon ...TOVÁBBI,
TÖBBEZRES INGATLAN KÍNÁLAT: www.gdn-ingatlan.hu - GDN azonosító: 387388
elkülönített ikerház első "A" lakása eladó, 504 m2 saját kerttel.KIVÁLÓ
KIVITELEZŐ, VERSENYKÉPES ÁRON, KIVÁLÓ OTTHONT AJÁNL ÖNNEK! CSOK +, H-TARIFA!!Az
otthon 75 négyzetméteres, ehhez + kerti tároló 3 m2 és terasz 9 m2
kapcsolódik.Helyiségei: nappali 23,62 m2, szoba 8,85 m2, szoba 9,45 m2, szoba
8,05 m2, konyha 8,13 m2, fürdő szoba 5,76 m2, közlekedő 2,18 m2, előtér 2,40 m2,
kamra 1,62 m2, wc 1,62 m2, terasz 8,85 m2, tároló 3,00 m2.A telek ideális 504
négyzetméteres, a szomszédot csak akkor látjuk és halljuk ha mi is szeretnénk, a
teraszon zavartalanul pihenhetünk.Az otthon beton alapra, tégla falazattal, fa
födémmel, beton cserép fedéssel épül meg.Az épület külső nyílászárói (ablakok)
műanyag szerkezetűek 6 légkamrás 3 rétegű hőszigetelt üvegezéssel.A bejárati
biztonsági ajtó több ponton záródó.A homlokzaton 10 cm Dryvit rendszerű, a
födémben 25 cm szálas szerkezetű, míg a padlóban 10 cm lépésálló nikecell
szigetelés kerül beépítésre.Fűtése/ hűtése, meleg vízellátása hőszivattyúval
(levegő) történik padlófűtéssel. A H tarifa kedvező üzemeltetési költséget
biztosít.Burkolatok választhatóak keretösszegig, felette a vevő kompenzál.
Szaniterek keretösszegig választhatók.A kert alap kertrendezéssel kerül
átadásra, viacolorozott autóbeállóval és személybejáróval.Az alaprajz
változtatható, burkolatok választhatóak, a kivitelező igyekszik minden vásárlói
igényt kielégíteni.Az ikerfelek külön mérőórával, külön helyrajzi számmal
rendelkeznek, társas házi alapító okirat készül.Az ingatlan várható átadása 2026
nyara.Három utcafronti és három belső ikerfél épül.A hirdetésben feltöltött
képek között a kivitelező által épített házak képei kerültek feltöltésre. Első
"A" lakás 504 m2 kert, 75 m2 ára: 68.900.000 ftHátsó "B" lakás 742 m2 kert, 75
m2 ára: 69.900.000 ftVárom megtisztelő hívását!FINANSZÍROZÁS:Nálunk mindent egy
helyen intézhet:- hivatalos ingatlanközvetítés;- szakszerű jogi képviselet;-
profi CSOK-PLUSZ, és hitelügyintézés: 16 Bank, több mint 100 konstrukció;A
részletes adatvédelmi tájékoztató folyamatosan elérhető a oldalon ...TOVÁBBI,
TÖBBEZRES INGATLAN KÍNÁLAT: www.gdn-ingatlan.hu - GDN azonosító: 387388
Részletek...
Adatlap
| Ár: | 69.900.000 Ft |
| Település: | Kiskunlacháza |
| A hirdető: | Ingatlaniroda ajánlatából |
| Értékesítés típusa: | Eladó |
| Használtság: | Új építésű |
| Utca: | Pest megye |
| Telek nagysága (m2) : | 504 |
| Épület hasznos területe (m2) : | 75 |
| Szobák száma: | 4 |
| Anyaga: | Tégla |
| A hirdető kérése: | Ingatlanközvetítő vagyok - keresse fel Irodánkat! |
| Feladás dátuma: | 2026.01.20 |
| Eddig megtekintették 94 alkalommal | |
A hirdető adatai
Kapcsolat a hirdetővel...
Családi házak rovaton belül a(z) "Eladó ikerház Kiskunlacháza, Pest megye" című hirdetést látja. (fent)




























