
Eladó családi ház Jászapáti, Csendes utcában
2 GENERÁCIÓS CSALÁDI HÁZ, CSENDES HELYEN!Megvételre kínálok Jászapáti csendes
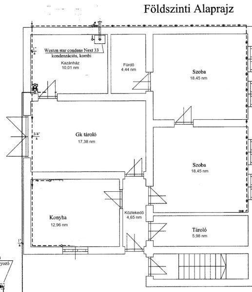
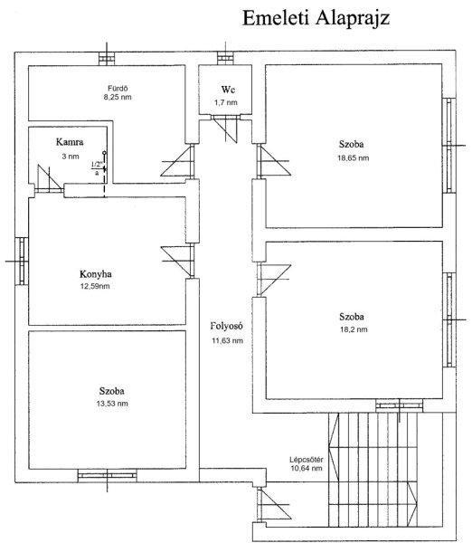
részén, 517 nm-es telken fekvő, 2 szintes, nettó 163,12 nm, bruttó: 200,51nm
1982-ben épült, tégla falazatú, hatalmas, tényleges 2 külön bejárattal ellátott,
külön lakórészekkel rendelkező, de belülről átjárható családi házat.Az épületet
fűtését gáz, kombi cirkó biztosítja padlófűtés segítségével, valamint 1 db
hűtő-fűtő klíma is rendelkezésre áll, a melegvízért szintén a kombi
felel.2024-ben belülről teljesen megújult az épület:- fali padlóburkolatok
cseréje- víz-villany-gáz-csatornahálózat csere- padlófűtés kialakítása- új
kazán- nyílászáró csere- fürdők kialakítása- helyiségek újra gondolása-
tényleges 2 lakrész kialakítása- klíma telepítése- elektromos kapu telepítéseEgy
jármű garázsban, 4 további pedig az urvaron fér el, valamint egy 20 nm-es kis
házikó is része a kinti térnek, mely pakolásra alkalmas.Infrastruktúrája jónak
mondható, 550-1300 méteren belül elérhető buszmegálló, bolt, iskola, óvoda,
bölcsőde.A szomszédok kedvesek és barátságosak, mellyel egy igazán élhető
lakóközösséget alkotnak.AZ INGATLAN PER, TEHER és IGÉNYMENTES!INGYENES hitel
tanácsadás!CSOK Plusz ügyintézés!BANKFÜGGETLEN hitelcentrumunk minden elérhető
bank és hitelintézet ajánlatát versenyezteti az Ön kedvéért, ráadásul
DÍJMENTESEN.Önnek nincs más dolga, mint elbeszélgetni munkatársunkkal, aki a
hallott információk alapján versenyre hívja a bankokat, hogy Ön hosszú távon is
a legjobb konstrukciót kaphassa. A legjobb ajánlatokból végül Ön választhatja ki
a nyertest.Munkatársaink sokéves szakmai tapasztalattal várják Önt, előre
egyeztetve akár a normál munkaidő után is.Amennyiben a hirdetés felkeltette
érdeklődését, várom hívását, akár hétvégén is! S.S. ...TOVÁBBI, TÖBBEZRES
INGATLAN KÍNÁLAT: www.gdn-ingatlan.hu - GDN azonosító: 387397
részén, 517 nm-es telken fekvő, 2 szintes, nettó 163,12 nm, bruttó: 200,51nm
1982-ben épült, tégla falazatú, hatalmas, tényleges 2 külön bejárattal ellátott,
külön lakórészekkel rendelkező, de belülről átjárható családi házat.Az épületet
fűtését gáz, kombi cirkó biztosítja padlófűtés segítségével, valamint 1 db
hűtő-fűtő klíma is rendelkezésre áll, a melegvízért szintén a kombi
felel.2024-ben belülről teljesen megújult az épület:- fali padlóburkolatok
cseréje- víz-villany-gáz-csatornahálózat csere- padlófűtés kialakítása- új
kazán- nyílászáró csere- fürdők kialakítása- helyiségek újra gondolása-
tényleges 2 lakrész kialakítása- klíma telepítése- elektromos kapu telepítéseEgy
jármű garázsban, 4 további pedig az urvaron fér el, valamint egy 20 nm-es kis
házikó is része a kinti térnek, mely pakolásra alkalmas.Infrastruktúrája jónak
mondható, 550-1300 méteren belül elérhető buszmegálló, bolt, iskola, óvoda,
bölcsőde.A szomszédok kedvesek és barátságosak, mellyel egy igazán élhető
lakóközösséget alkotnak.AZ INGATLAN PER, TEHER és IGÉNYMENTES!INGYENES hitel
tanácsadás!CSOK Plusz ügyintézés!BANKFÜGGETLEN hitelcentrumunk minden elérhető
bank és hitelintézet ajánlatát versenyezteti az Ön kedvéért, ráadásul
DÍJMENTESEN.Önnek nincs más dolga, mint elbeszélgetni munkatársunkkal, aki a
hallott információk alapján versenyre hívja a bankokat, hogy Ön hosszú távon is
a legjobb konstrukciót kaphassa. A legjobb ajánlatokból végül Ön választhatja ki
a nyertest.Munkatársaink sokéves szakmai tapasztalattal várják Önt, előre
egyeztetve akár a normál munkaidő után is.Amennyiben a hirdetés felkeltette
érdeklődését, várom hívását, akár hétvégén is! S.S. ...TOVÁBBI, TÖBBEZRES
INGATLAN KÍNÁLAT: www.gdn-ingatlan.hu - GDN azonosító: 387397
Részletek...
Adatlap
| Ár: | 49.900.000 Ft |
| Település: | Jászapáti |
| A hirdető: | Ingatlaniroda ajánlatából |
| Értékesítés típusa: | Eladó |
| Használtság: | Használt |
| Utca: | Csendes utcában |
| Telek nagysága (m2) : | 517 |
| Épület hasznos területe (m2) : | 200 |
| Szobák száma: | 5 |
| Fűtés: | Cirkó fűtéses |
| Ingatlan állapota: | Felújított |
| Anyaga: | Tégla |
| A hirdető kérése: | Ingatlanközvetítő vagyok - keresse fel Irodánkat! |
| Feladás dátuma: | 2026.01.20 |
| Eddig megtekintették 34 alkalommal | |
A hirdető adatai
Kapcsolat a hirdetővel...
Családi házak rovaton belül a(z) "Eladó családi ház Jászapáti, Csendes utcában" című hirdetést látja. (fent)




























