
Eladó családi ház Lakitelek, belváros
Otthonok és megoldások!Lakitelek központjában eladó egy karbantartott és
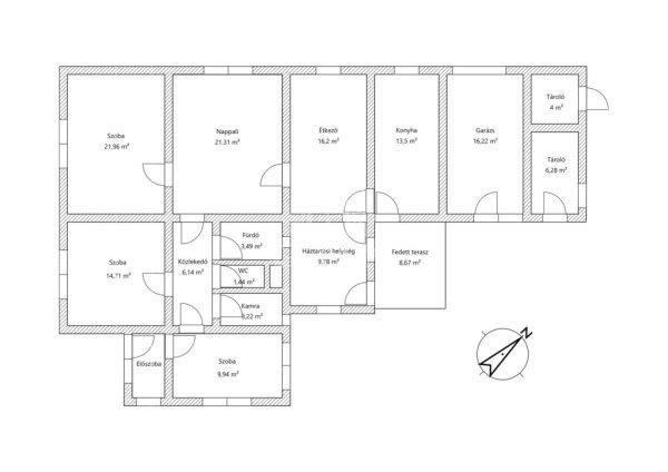
korszerűsített 155 nm, nappali + 3 szobás családi ház 711 nm telken.Az ingatlan
eredeti része a 70-es években épült vályogfalazattal, stabil téglaalapon.
2002-ben egy tégla falazatú, beton alapon nyugvó lakrészt is hozzáépítettek,
ekkor az épület egységes tetőszerkezetet kapott, a tetőtér pedig igény szerint
beépíthető.A ház teljes villany- és vízvezeték rendszere korszerűsítve lett, az
ingatlan teljesen összközműves. Ezen felül egy fúrt kút és egy időzíthető
locsolórendszer is segíti a kert karbantartását.A hőszigetelt nyílászárók
redőnnyel és szúnyoghálóval felszereltek.A kellemes hőérzetről gáz és
vegyestüzelésű kazán gondoskodik padlófűtéssel és radiátorokkal kombinálva,
valamint egy hangulatos cserépkályha is rendelkezésre áll.A lakótérhez egy
fedett terasz, zárt garázs, valamint több tárolóhelyiség is tartozik, így a
biztonságos parkolás és barkácsolás is könnyedén megoldható.A ház aszfaltozott,
csendes utcában található, barátságos szomszédságban. Ideális választás lehet
családosoknak, de akár két generáció számára is tökéletes lehetőséget kínál.Ne
hagyja ki ezt a lehetőséget ? kérjen időpontot még ma! ...TOVÁBBI, TÖBBEZRES
INGATLAN KÍNÁLAT: www.gdn-ingatlan.hu - GDN azonosító: 387436
korszerűsített 155 nm, nappali + 3 szobás családi ház 711 nm telken.Az ingatlan
eredeti része a 70-es években épült vályogfalazattal, stabil téglaalapon.
2002-ben egy tégla falazatú, beton alapon nyugvó lakrészt is hozzáépítettek,
ekkor az épület egységes tetőszerkezetet kapott, a tetőtér pedig igény szerint
beépíthető.A ház teljes villany- és vízvezeték rendszere korszerűsítve lett, az
ingatlan teljesen összközműves. Ezen felül egy fúrt kút és egy időzíthető
locsolórendszer is segíti a kert karbantartását.A hőszigetelt nyílászárók
redőnnyel és szúnyoghálóval felszereltek.A kellemes hőérzetről gáz és
vegyestüzelésű kazán gondoskodik padlófűtéssel és radiátorokkal kombinálva,
valamint egy hangulatos cserépkályha is rendelkezésre áll.A lakótérhez egy
fedett terasz, zárt garázs, valamint több tárolóhelyiség is tartozik, így a
biztonságos parkolás és barkácsolás is könnyedén megoldható.A ház aszfaltozott,
csendes utcában található, barátságos szomszédságban. Ideális választás lehet
családosoknak, de akár két generáció számára is tökéletes lehetőséget kínál.Ne
hagyja ki ezt a lehetőséget ? kérjen időpontot még ma! ...TOVÁBBI, TÖBBEZRES
INGATLAN KÍNÁLAT: www.gdn-ingatlan.hu - GDN azonosító: 387436
Részletek...
Adatlap
| Ár: | 54.900.000 Ft |
| Település: | Lakitelek |
| A hirdető: | Ingatlaniroda ajánlatából |
| Értékesítés típusa: | Eladó |
| Használtság: | Használt |
| Utca: | belváros |
| Telek nagysága (m2) : | 711 |
| Épület hasznos területe (m2) : | 155 |
| Szobák száma: | 4 |
| Fűtés: | Cirkó fűtéses |
| Ingatlan állapota: | Normál állapotú |
| Anyaga: | Tégla |
| A hirdető kérése: | Ingatlanközvetítő vagyok - keresse fel Irodánkat! |
| Feladás dátuma: | 2026.01.20 |
| Eddig megtekintették 43 alkalommal | |
A hirdető adatai
Kapcsolat a hirdetővel...
Családi házak rovaton belül a(z) "Eladó családi ház Lakitelek, belváros" című hirdetést látja. (fent)




























