
Tordas, 130 m2, 89500000 HUF, 1 szoba, 3 félszoba [3643_169]
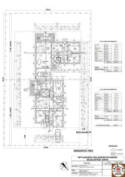
Tordason Gyúrói úton lévő Tordaskert lakóparkban (25 percre Budapesttől, M7-esen
megközelíthető) meglévő on lévő kétlakásos lakóépület aszfaltos utcáról nyíló
555 m2-es saroktelken egyenként leválasztott saját használatú telken, nappali +
3 hálószobás, 130 m2-es, gépkocsitárolós lakóépület eladása leköthető novemberi
beköltözéssel. Az épület építésére, CSOK és hitel felvehető.A lakóépület
amerikai konyhás, + 3 hálószobával, fürdőszobával, háztartási helyiséggel,
kamrával, fürdőszobával rendelkezik, nappaliból terasz összeköttetéssel. Az
épülethez gépkocsitároló tartozik. Alaprajzi elrendezés tetszés szerint
változtatható.Az épület összközműves, vizesrendszerű villanyfűtésű cirkó
berendezéssel ellátott, a nappali padlófűtéses, többi helyiség radiátoros
kivitelezésű.A ház, szerkezete 30 cm hőszigetelt blokktéglával kívül 15 cm
grafitos dryvit hőszigeteléssel, 10 cm YTONG válaszfalak, pólyás fafödémmel
ellátott, hőszigeteléssel 25 cm kőzetgyapot szigeteléssel rendelkezik a
padlástér felé. A külső nyílászárók, három rétegű hőszigetelő üvegezésű műanyag
szerkezetűek, bejárati ajtó, több ponton záródó, burkolatok a szobákba laminált
parketta, a többi helyiségben járólap. Terasz csúszásmentes, fagyálló lapokkal,
igény szerinti burkolat választható (2500 Ft/m2 árig). A hálószobák
radiátorosak, többi helyiség padlófűtéses kialakítású. Fűtés rendszere
kondenzációs kazánról működik. A kert tereprendezéssel, kerítéssel ellátott
kivitelben kerül átadásra, másik lakástól növényzettel elválasztva.
megközelíthető) meglévő on lévő kétlakásos lakóépület aszfaltos utcáról nyíló
555 m2-es saroktelken egyenként leválasztott saját használatú telken, nappali +
3 hálószobás, 130 m2-es, gépkocsitárolós lakóépület eladása leköthető novemberi
beköltözéssel. Az épület építésére, CSOK és hitel felvehető.A lakóépület
amerikai konyhás, + 3 hálószobával, fürdőszobával, háztartási helyiséggel,
kamrával, fürdőszobával rendelkezik, nappaliból terasz összeköttetéssel. Az
épülethez gépkocsitároló tartozik. Alaprajzi elrendezés tetszés szerint
változtatható.Az épület összközműves, vizesrendszerű villanyfűtésű cirkó
berendezéssel ellátott, a nappali padlófűtéses, többi helyiség radiátoros
kivitelezésű.A ház, szerkezete 30 cm hőszigetelt blokktéglával kívül 15 cm
grafitos dryvit hőszigeteléssel, 10 cm YTONG válaszfalak, pólyás fafödémmel
ellátott, hőszigeteléssel 25 cm kőzetgyapot szigeteléssel rendelkezik a
padlástér felé. A külső nyílászárók, három rétegű hőszigetelő üvegezésű műanyag
szerkezetűek, bejárati ajtó, több ponton záródó, burkolatok a szobákba laminált
parketta, a többi helyiségben járólap. Terasz csúszásmentes, fagyálló lapokkal,
igény szerinti burkolat választható (2500 Ft/m2 árig). A hálószobák
radiátorosak, többi helyiség padlófűtéses kialakítású. Fűtés rendszere
kondenzációs kazánról működik. A kert tereprendezéssel, kerítéssel ellátott
kivitelben kerül átadásra, másik lakástól növényzettel elválasztva.
Részletek...
Adatlap
| Ár: | 89.500.000 Ft |
| Település: | Tordas |
| A hirdető: | Ingatlaniroda ajánlatából |
| Értékesítés típusa: | Eladó |
| Használtság: | Új építésű |
| Utca: | Gyúrói út |
| Telek nagysága (m2) : | 555 |
| Épület hasznos területe (m2) : | 130 |
| Szobák száma: | 1 |
| Félszobák száma: | 3 |
| Anyaga: | Egyéb anyagból készült épület |
| A hirdető kérése: | Ingatlanközvetítő vagyok - keresse fel Irodánkat! |
| Feladás dátuma: | 2026.01.20 |
| Eddig megtekintették 32 alkalommal | |
A hirdető adatai
Kapcsolat a hirdetővel...
Családi házak rovaton belül a(z) "Tordas, 130 m2, 89500000 HUF, 1 szoba, 3 félszoba [3643_169]" című hirdetést látja. (fent)





















![Tordas, 130 m2, 89500000 HUF, 1 szoba, 3 félszoba [3643_169] Tordas, 130 m2, 89500000 HUF, 1 szoba, 3 félszoba [3643_169]](/hirdetesek/ads_new_xml2/15/152456/thmb_tordas-130-m2-8950_01758499382.jpg)
![Tordas, 130 m2, 89500000 HUF, 1 szoba, 3 félszoba [3643_169] Tordas, 130 m2, 89500000 HUF, 1 szoba, 3 félszoba [3643_169]](/hirdetesek/ads_new_xml2/15/152456/thmb_tordas-130-m2-8950_11758499382.jpg)
![Tordas, 130 m2, 89500000 HUF, 1 szoba, 3 félszoba [3643_169] Tordas, 130 m2, 89500000 HUF, 1 szoba, 3 félszoba [3643_169]](/hirdetesek/ads_new_xml2/15/152456/thmb_tordas-130-m2-8950_21758499382.jpg)
![Tordas, 130 m2, 89500000 HUF, 1 szoba, 3 félszoba [3643_169] Tordas, 130 m2, 89500000 HUF, 1 szoba, 3 félszoba [3643_169]](/hirdetesek/ads_new_xml2/15/152456/thmb_tordas-130-m2-8950_31758499382.jpg)
![Tordas, 130 m2, 89500000 HUF, 1 szoba, 3 félszoba [3643_169] Tordas, 130 m2, 89500000 HUF, 1 szoba, 3 félszoba [3643_169]](/hirdetesek/ads_new_xml2/15/152456/thmb_tordas-130-m2-8950_41758499382.jpg)


