
Eladó 110m2-es Ikerház, Veresegyház
Veresegyházon ÚJ ÉPÍTÉSŰ, CSOK-KÉPES IKERHÁZ ELADÓ! HŐSZIVATTYÚ,
PADLÓFŰTÉSSEL! ALACSONY ENERGIA-FELHASZNÁLÁS H TARIFÁS MÉRŐÓRA!Az építkezés már
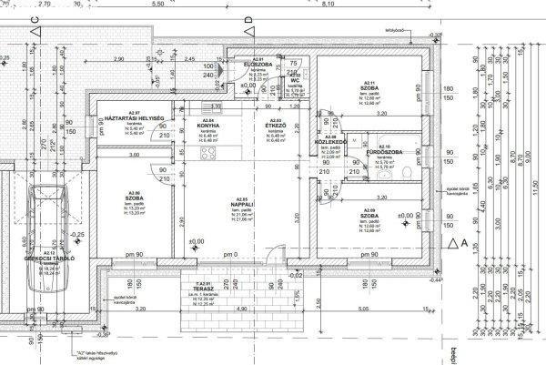
elkezdődött!Az ingatlan elosztása (110 nm)- Nagy nappali, külön konyha résszel.-
3 hálószoba.- Előszoba.- Fürdőszoba, külön WC.- Háztartási helység.- Gépkocsi
beálló.+ Terasz (12nm)Műszaki tartalomból:- 30 cm-es Porotherm tégla
falazattal+12 cm grafitos dryvit szigeteléssel készül az ingatlan.- A homlokzati
nyílászárók 3 rétegű üvegezésű, műanyag típusok. A fűtést és a meleg vizet
HŐSZIVATTYÚ biztosítja, padlófűtéssel.- Burkolatok, szaniterek, igény szerint
választhatók.Elhelyezkedés:Veresegyház csendes részén, zöldövezeti részen
helyezkedik el az ingatlan.Bolt, vasútállomás 1 perc sétára található!Kérem
forduljon hozzám bizalommal, és egyeztessünk megtekintési időpontot!TEKINTSE MEG
IRODÁNK TOVÁBBI KÍNÁLATÁT LOGÓNKRA KATTINTVA.
PADLÓFŰTÉSSEL! ALACSONY ENERGIA-FELHASZNÁLÁS H TARIFÁS MÉRŐÓRA!Az építkezés már
elkezdődött!Az ingatlan elosztása (110 nm)- Nagy nappali, külön konyha résszel.-
3 hálószoba.- Előszoba.- Fürdőszoba, külön WC.- Háztartási helység.- Gépkocsi
beálló.+ Terasz (12nm)Műszaki tartalomból:- 30 cm-es Porotherm tégla
falazattal+12 cm grafitos dryvit szigeteléssel készül az ingatlan.- A homlokzati
nyílászárók 3 rétegű üvegezésű, műanyag típusok. A fűtést és a meleg vizet
HŐSZIVATTYÚ biztosítja, padlófűtéssel.- Burkolatok, szaniterek, igény szerint
választhatók.Elhelyezkedés:Veresegyház csendes részén, zöldövezeti részen
helyezkedik el az ingatlan.Bolt, vasútállomás 1 perc sétára található!Kérem
forduljon hozzám bizalommal, és egyeztessünk megtekintési időpontot!TEKINTSE MEG
IRODÁNK TOVÁBBI KÍNÁLATÁT LOGÓNKRA KATTINTVA.
Részletek...
Adatlap
| Ár: | 120.000.000 Ft |
| Település: | Veresegyház |
| A hirdető: | Ingatlaniroda ajánlatából |
| Értékesítés típusa: | Eladó |
| Telek nagysága (m2) : | 900 |
| Épület hasznos területe (m2) : | 110 |
| A hirdető kérése: | Ingatlanközvetítő vagyok - keresse fel Irodánkat! |
| Feladás dátuma: | 2026.04.20 |
| Eddig megtekintették 63 alkalommal | |
A hirdető adatai
Kapcsolat a hirdetővel...
Családi házak rovaton belül a(z) "Eladó 110m2-es Ikerház, Veresegyház" című hirdetést látja. (fent)




























