
Eladó családi ház Zamárdi, Egy ingatlan, több lehetőség
Zamárdi frekventált részén kínáljuk eladásra ezt az impozáns, több lehetőséget
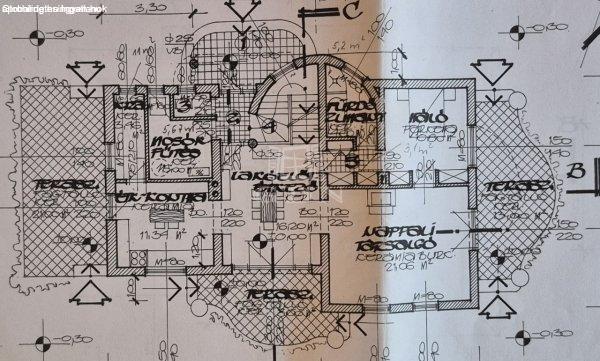
magában rejtő családi házat.Az épület egy 719 m2-es saroktelken helyezkedik el,
két szinten 175 m2 hasznos alapterülettel rendelkezik. Az alsó szint méretes
nappali-társalgó, étkező, konyha, háló, fürdőszoba és gépészeti helyiségekből
áll. A nappaliból közelíthető meg a 16 m2-es pince.A felső szinten méretes
nappali-társalgó, konyha, három hálószoba, illetve két zuhanyzós fürdőszoba
kerültek kialakításra.Az udvarban kút biztosítja a locsoláshoz szükséges vizet.
Az udvar méretéből adódóan több autó parkolására alkalmas.A két szint egy
bejárati ajtón közelíthető meg. Az épület adottságai alapján alkalmas akár:- két
generáció zavartalan együttélésére,- akár két apartmanként történő
hasznosítására,- akár életvitelszerű ott lakásra + egyik szint apartmanként
történő kiadására.Az ingatlantól 500 méterre található egy szabadstrand,
közvetlen közelében pedig egy ABC.Nézzük meg együtt! ...TOVÁBBI, TÖBBEZRES
INGATLAN KÍNÁLAT: www.gdn-ingatlan.hu - GDN azonosító: 387610
magában rejtő családi házat.Az épület egy 719 m2-es saroktelken helyezkedik el,
két szinten 175 m2 hasznos alapterülettel rendelkezik. Az alsó szint méretes
nappali-társalgó, étkező, konyha, háló, fürdőszoba és gépészeti helyiségekből
áll. A nappaliból közelíthető meg a 16 m2-es pince.A felső szinten méretes
nappali-társalgó, konyha, három hálószoba, illetve két zuhanyzós fürdőszoba
kerültek kialakításra.Az udvarban kút biztosítja a locsoláshoz szükséges vizet.
Az udvar méretéből adódóan több autó parkolására alkalmas.A két szint egy
bejárati ajtón közelíthető meg. Az épület adottságai alapján alkalmas akár:- két
generáció zavartalan együttélésére,- akár két apartmanként történő
hasznosítására,- akár életvitelszerű ott lakásra + egyik szint apartmanként
történő kiadására.Az ingatlantól 500 méterre található egy szabadstrand,
közvetlen közelében pedig egy ABC.Nézzük meg együtt! ...TOVÁBBI, TÖBBEZRES
INGATLAN KÍNÁLAT: www.gdn-ingatlan.hu - GDN azonosító: 387610
Részletek...
Adatlap
| Ár: | 168.990.000 Ft |
| Település: | Zamárdi |
| A hirdető: | Ingatlaniroda ajánlatából |
| Értékesítés típusa: | Eladó |
| Használtság: | Használt |
| Utca: | Egy ingatlan, több lehetőség |
| Telek nagysága (m2) : | 719 |
| Épület hasznos területe (m2) : | 176 |
| Szobák száma: | 2 |
| Félszobák száma: | 4 |
| Fűtés: | Cirkó fűtéses |
| Ingatlan állapota: | Normál állapotú |
| Anyaga: | Tégla |
| A hirdető kérése: | Ingatlanközvetítő vagyok - keresse fel Irodánkat! |
| Feladás dátuma: | 2026.04.27 |
| Eddig megtekintették 63 alkalommal | |
A hirdető adatai
Kapcsolat a hirdetővel...
Családi házak rovaton belül a(z) "Eladó családi ház Zamárdi, Egy ingatlan, több lehetőség" című hirdetést látja. (fent)




























