
Eladó ikerház Budapest, XXII. kerület, Egyszintes ikerház m
MOST ÁRCSÖKKENÉSSEL MEGVÁSÁROLHATÓ ÚJÉPÍTÉSŰ IKERHÁZ! NE HAGYJA KI, ÚJÉPÍTÉSŰ
INGATLAN, SAJÁT KERTRÉSSZEL, EBBEN AZ ÁRBAN PÁRATLAN LEHETŐSÉG A
KERÜLETBEN!OTTHON START PROGRAM FELTÉTELINEK MEGFELELŐ, FIX 3%-OS, ÁLLAMI
TÁMOGATÁSÚ LAKÁSHITELLEL MEGVÁSÁROLHATÓ INGATLAN!EGYSZINTES ÚJ ÉPÍTÉSŰ IKERHÁZ
DAIKIN ALTHERMA HŐSZIVATTYÚVAL!XXII. kerületben, Nagytétény, CSENDES KERTVÁROSI
környezetében, nettó 75 m2-es, nappali + 2 szobás (teraszos), MODERN, ÚJ
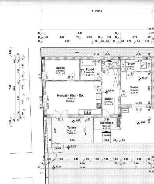
ÉPÍTÉSŰ, IKERHÁZAT kínálunk eladásra!HELYISÉGEI FÖLDSZINTEN: -előszoba(10,68m2),
amerikai konyha nappali(26m2), 2 szoba(9,75m2, 14,43m2), fürdőszoba(6,25m2),
WC(1,9m2), tároló(5,18m2), valamint 15 m2 és 3,89 m2-es terasz.Az ingatlanhoz
saját, kizárólagos használatú, lekerített TELEKRÉSZEK tartoznak.Egy autóbeálló
tartozik az ingatlanhoz, a kialakítását a vételár tartalmazza.Az ingatlan telkén
található egy fúrt kút.Az épület: egyszintes (földszint)Külső falazat: Leier 30
cm-es tégla, 10 cm-es Dryvit hőszigeteléssel.Műanyag nyílászárok: FENSTHERM
FUTURE vagy Kömmerling 5légkamrás, 76mm tokszélesség , 3rétegű üveg K=0,6
hőszigeteléssel.Nagyon IGÉNYES KIVITELEZÉS, minőségi anyagok felhasználásával
épül ( részletes Műszaki leírással és további anyagokkal rendelkezem.)A fűtést
és a melegvizet DAIKIN ALTHERMA HŐSZIVATTYÚ biztosítja padlófűtéssel,
radiátorral kiépítve.A vételár tartalmazza riasztó rendszer kiépítését, valamint
kettő klíma kiállás kiépítését!Külön mérőórák, szeparált telekrészek, különböző
utcai bejáratok!MÉRETEK, TÁJOLÁS, ELRENDEZÉS, AZ ALAPRAJZOKON.( Belső
átalakítás-kialakítás a Vevő igényei alapján megoldható )KIVÁLÓ KÖZLEKEDÉSI
LEHETŐSÉGEK, iskola, óvoda, bölcsőde, rendelő, Campona, Lidl, Aldi minden a
közelben.TERVEZETT ÁTADÁS: 2026. negyedik negyedév!A vételár NEM tartalmazza a
hideg-meleg burkolatokat, redőny lamellákat, szúnyoghálókat, beltéri ajtókat,
riasztóberendezést, csaptelepeket, klímaberendezést, szaniterek árait!A munkadíj
minden esetben benne van az árban.Megtekinthető elkészült REFERENCIA munkák,
OTTHON START HITEL, CSOK PLUSZ, babaváró, kedvezményes HITELEK
FELVEHETŐK!(Szükség esetén ingyenes hitelügyintézéssel)Az ingatlan megtekintése
előre egyeztetett időpontban lehetséges, akár hétvégén is. Bővebb információkkal
kapcsolatban várom jelentkezését, keressen bizalommal a hét minden napján!
...TOVÁBBI, TÖBBEZRES INGATLAN KÍNÁLAT: www.gdn-ingatlan.hu - GDN azonosító:
387777
INGATLAN, SAJÁT KERTRÉSSZEL, EBBEN AZ ÁRBAN PÁRATLAN LEHETŐSÉG A
KERÜLETBEN!OTTHON START PROGRAM FELTÉTELINEK MEGFELELŐ, FIX 3%-OS, ÁLLAMI
TÁMOGATÁSÚ LAKÁSHITELLEL MEGVÁSÁROLHATÓ INGATLAN!EGYSZINTES ÚJ ÉPÍTÉSŰ IKERHÁZ
DAIKIN ALTHERMA HŐSZIVATTYÚVAL!XXII. kerületben, Nagytétény, CSENDES KERTVÁROSI
környezetében, nettó 75 m2-es, nappali + 2 szobás (teraszos), MODERN, ÚJ
ÉPÍTÉSŰ, IKERHÁZAT kínálunk eladásra!HELYISÉGEI FÖLDSZINTEN: -előszoba(10,68m2),
amerikai konyha nappali(26m2), 2 szoba(9,75m2, 14,43m2), fürdőszoba(6,25m2),
WC(1,9m2), tároló(5,18m2), valamint 15 m2 és 3,89 m2-es terasz.Az ingatlanhoz
saját, kizárólagos használatú, lekerített TELEKRÉSZEK tartoznak.Egy autóbeálló
tartozik az ingatlanhoz, a kialakítását a vételár tartalmazza.Az ingatlan telkén
található egy fúrt kút.Az épület: egyszintes (földszint)Külső falazat: Leier 30
cm-es tégla, 10 cm-es Dryvit hőszigeteléssel.Műanyag nyílászárok: FENSTHERM
FUTURE vagy Kömmerling 5légkamrás, 76mm tokszélesség , 3rétegű üveg K=0,6
hőszigeteléssel.Nagyon IGÉNYES KIVITELEZÉS, minőségi anyagok felhasználásával
épül ( részletes Műszaki leírással és további anyagokkal rendelkezem.)A fűtést
és a melegvizet DAIKIN ALTHERMA HŐSZIVATTYÚ biztosítja padlófűtéssel,
radiátorral kiépítve.A vételár tartalmazza riasztó rendszer kiépítését, valamint
kettő klíma kiállás kiépítését!Külön mérőórák, szeparált telekrészek, különböző
utcai bejáratok!MÉRETEK, TÁJOLÁS, ELRENDEZÉS, AZ ALAPRAJZOKON.( Belső
átalakítás-kialakítás a Vevő igényei alapján megoldható )KIVÁLÓ KÖZLEKEDÉSI
LEHETŐSÉGEK, iskola, óvoda, bölcsőde, rendelő, Campona, Lidl, Aldi minden a
közelben.TERVEZETT ÁTADÁS: 2026. negyedik negyedév!A vételár NEM tartalmazza a
hideg-meleg burkolatokat, redőny lamellákat, szúnyoghálókat, beltéri ajtókat,
riasztóberendezést, csaptelepeket, klímaberendezést, szaniterek árait!A munkadíj
minden esetben benne van az árban.Megtekinthető elkészült REFERENCIA munkák,
OTTHON START HITEL, CSOK PLUSZ, babaváró, kedvezményes HITELEK
FELVEHETŐK!(Szükség esetén ingyenes hitelügyintézéssel)Az ingatlan megtekintése
előre egyeztetett időpontban lehetséges, akár hétvégén is. Bővebb információkkal
kapcsolatban várom jelentkezését, keressen bizalommal a hét minden napján!
...TOVÁBBI, TÖBBEZRES INGATLAN KÍNÁLAT: www.gdn-ingatlan.hu - GDN azonosító:
387777
Részletek...
Adatlap
| Ár: | 106.000.000 Ft |
| Település: | XXII. kerület |
| A hirdető: | Ingatlaniroda ajánlatából |
| Értékesítés típusa: | Eladó |
| Használtság: | Új építésű |
| Utca: | Egyszintes ikerház mindkét fele! |
| Telek nagysága (m2) : | 157 |
| Épület hasznos területe (m2) : | 75 |
| Szobák száma: | 3 |
| Anyaga: | Tégla |
| A hirdető kérése: | Ingatlanközvetítő vagyok - keresse fel Irodánkat! |
| Feladás dátuma: | 2026.04.27 |
| Eddig megtekintették 61 alkalommal | |
A hirdető adatai
Kapcsolat a hirdetővel...
Családi házak rovaton belül a(z) "Eladó ikerház Budapest, XXII. kerület, Egyszintes ikerház m" című hirdetést látja. (fent)




























