
Eladó családi ház Gyál, Vecsési utca
Eladó egy két szintes, luxus kivitelű családi ház Gyálon!Gyál egyik kedvelt
részén kínálunk megvételre egy modern, tágas otthont, amely ideális választás
nagycsaládosoknak és mindazoknak, akik a fényes, nagy tereket részesítik
előnyben.Telek mérete: 750 m˛Hasznos alapterület: nettó 264 m˛ (bruttó 285,79
m˛)Szintek száma: 2Szobák száma: 4 hálószoba + nappali az alsó és felső szinten
isFürdőszobák: 4 fürdő + külön WCTerasz: 21,2 m˛Erkélyek: 16,23 m˛ és 7,53
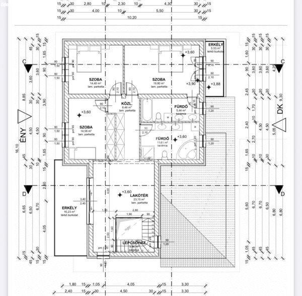
m˛Helyiségek elosztása: ? Konyha: 12,96 m˛ ? Nappali: 58,95 m˛ + 23,15
m˛ ? Háztartási helyiség: 5,04 m˛ ? Előszoba: 8,7 m˛ ? Gardrób: 6,4 m˛ ? Szobák:
14,58 m˛; 14,4 m˛; 19,8 m˛; 14,4 m˛ ? Közlekedő: 8,48 m˛ ? Fürdőszobák: 11,61
m˛; 7,68 m˛; 6,75 m˛; 5,44 m˛Műszaki tartalom: ? 30-as Leier falazat 15cm
grafitos szigeteléssel, lábazat 10cm XPS szigeteléssel ? Belső falak 10 cm Leier
téglából ? 20 cm kőzetgyapot födémszigetelés ? Hőszivattyús rendszer +
padlófűtés ? 3 rétegű, energiatakarékos nyílászárók ? Klíma nappaliban illetve
minden szobában ? Elektromos kapu, napelem-előkészítés ? Beépített
kamerarendszer és riasztóFinanszírozás és átadás: ? Már 30% önerővel
lefoglalható ? Várható átadás: 2025. december 31. ? Teljes körű segítség:
független hitelszakértő és megbízható ügyvédi háttérKivitelező:A házat egy
megbízható, tapasztalt kivitelező építi, aki számos referenciamunkával
rendelkezik a környéken. A korábbi projektek személyesen is megtekinthetők, így
az érdeklődők saját szemükkel győződhetnek meg a minőségről.Elérhető vagyok a
nap bármely szakaszában, akár hétvégén is ! ...TOVÁBBI, TÖBBEZRES INGATLAN
KÍNÁLAT: www.gdn-ingatlan.hu - GDN azonosító: 387749
részén kínálunk megvételre egy modern, tágas otthont, amely ideális választás
nagycsaládosoknak és mindazoknak, akik a fényes, nagy tereket részesítik
előnyben.Telek mérete: 750 m˛Hasznos alapterület: nettó 264 m˛ (bruttó 285,79
m˛)Szintek száma: 2Szobák száma: 4 hálószoba + nappali az alsó és felső szinten
isFürdőszobák: 4 fürdő + külön WCTerasz: 21,2 m˛Erkélyek: 16,23 m˛ és 7,53
m˛Helyiségek elosztása: ? Konyha: 12,96 m˛ ? Nappali: 58,95 m˛ + 23,15
m˛ ? Háztartási helyiség: 5,04 m˛ ? Előszoba: 8,7 m˛ ? Gardrób: 6,4 m˛ ? Szobák:
14,58 m˛; 14,4 m˛; 19,8 m˛; 14,4 m˛ ? Közlekedő: 8,48 m˛ ? Fürdőszobák: 11,61
m˛; 7,68 m˛; 6,75 m˛; 5,44 m˛Műszaki tartalom: ? 30-as Leier falazat 15cm
grafitos szigeteléssel, lábazat 10cm XPS szigeteléssel ? Belső falak 10 cm Leier
téglából ? 20 cm kőzetgyapot födémszigetelés ? Hőszivattyús rendszer +
padlófűtés ? 3 rétegű, energiatakarékos nyílászárók ? Klíma nappaliban illetve
minden szobában ? Elektromos kapu, napelem-előkészítés ? Beépített
kamerarendszer és riasztóFinanszírozás és átadás: ? Már 30% önerővel
lefoglalható ? Várható átadás: 2025. december 31. ? Teljes körű segítség:
független hitelszakértő és megbízható ügyvédi háttérKivitelező:A házat egy
megbízható, tapasztalt kivitelező építi, aki számos referenciamunkával
rendelkezik a környéken. A korábbi projektek személyesen is megtekinthetők, így
az érdeklődők saját szemükkel győződhetnek meg a minőségről.Elérhető vagyok a
nap bármely szakaszában, akár hétvégén is ! ...TOVÁBBI, TÖBBEZRES INGATLAN
KÍNÁLAT: www.gdn-ingatlan.hu - GDN azonosító: 387749
Részletek...
Adatlap
| Ár: | 249.900.000 Ft |
| Település: | Gyál |
| A hirdető: | Ingatlaniroda ajánlatából |
| Értékesítés típusa: | Eladó |
| Használtság: | Új építésű |
| Utca: | Vecsési utca |
| Telek nagysága (m2) : | 750 |
| Épület hasznos területe (m2) : | 285 |
| Szobák száma: | 6 |
| Anyaga: | Tégla |
| A hirdető kérése: | Ingatlanközvetítő vagyok - keresse fel Irodánkat! |
| Feladás dátuma: | 2026.02.26 |
| Eddig megtekintették 52 alkalommal | |
A hirdető adatai
Kapcsolat a hirdetővel...
Családi házak rovaton belül a(z) "Eladó családi ház Gyál, Vecsési utca" című hirdetést látja. (fent)




























