
Eladó családi ház Boncodfölde, Csendes mellékutcája
Letisztult ízlésvilág, innovatív megoldások, fenntartható
mindennapok!Boncodföldén, egy csendes, nyugodt környezetben kínálunk eladásra
egy kivételes minőségben megépített, AA+ energetikai besorolású családi házat,
amely nemcsak tágas tereivel, hanem korszerű műszaki megoldásaival is
kiemelkedik a kínálatból.Az ingatlan egy közel 1300 m˛-es telken helyezkedik el,
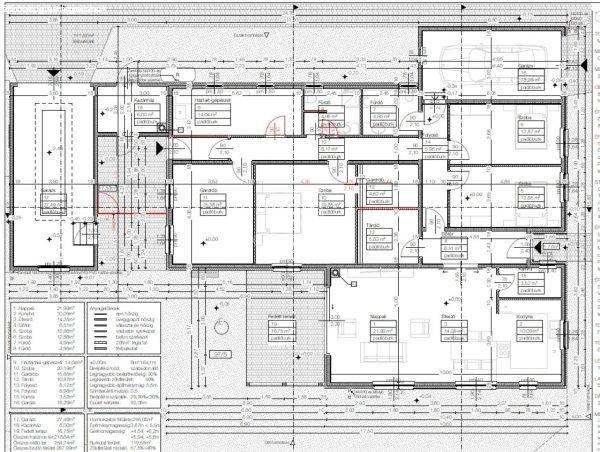
bruttó alapterülete 287,99 m˛, míg a hasznos lakótér 218,64 m˛.A ház elrendezése
átgondolt és praktikus: négy kényelmes méretű szoba, egy világos nappali konyha
étkező együttes,, kettő fürdőszoba, háztartási - gépészeti helyiség, gardrób,
kamra, tároló, valamint két különálló garázs biztosítja a lakók kényelmét. A
fedett terasz ideális helyszíne lehet a nyári pihenéseknek vagy baráti
összejöveteleknek.Az ingatlan minden részletében a minőségre és a
fenntarthatóságra törekszik:A hőszivattyús padlófűtés és hűtés, valamint az
entalpiás hővisszanyerős szellőztető rendszer gondoskodik az egész éves
komfortérzetről, miközben a napelem rendszer éves szinten mindössze 1800 Ft-os
villanyszámlát eredményez. A biztonságról riasztó-, beléptető- és kamerarendszer
gondoskodik, a kényelmet pedig motoros Hörmann garázskapuk, mozgásérzékelős
világítás a folyosókon, valamint gondozásmentes alumínium kerítés teszi
teljessé.A kert szintén külön figyelmet kapott: fúrt kút, automata
öntözőrendszer, robotfűnyíró és gyepszőnyeg biztosítja a rendezett, zöld
környezetet.A belső terekben prémium burkolatok és szaniterek kerültek
beépítésre, a ház pedig saját részre, nem eladásra készült, így minden
részletében a hosszú távú minőséget képviseli.A családi ház tulajdoni lapja per,
teher -és igénymentes, tulajdonviszonyai rendezettek.Irányŕra: 143,9 millió Ft,
a bútorzat külön megállapodás tárgyát képezi! ...TOVÁBBI, TÖBBEZRES INGATLAN
KÍNÁLAT: www.gdn-ingatlan.hu - GDN azonosító: 387682
mindennapok!Boncodföldén, egy csendes, nyugodt környezetben kínálunk eladásra
egy kivételes minőségben megépített, AA+ energetikai besorolású családi házat,
amely nemcsak tágas tereivel, hanem korszerű műszaki megoldásaival is
kiemelkedik a kínálatból.Az ingatlan egy közel 1300 m˛-es telken helyezkedik el,
bruttó alapterülete 287,99 m˛, míg a hasznos lakótér 218,64 m˛.A ház elrendezése
átgondolt és praktikus: négy kényelmes méretű szoba, egy világos nappali konyha
étkező együttes,, kettő fürdőszoba, háztartási - gépészeti helyiség, gardrób,
kamra, tároló, valamint két különálló garázs biztosítja a lakók kényelmét. A
fedett terasz ideális helyszíne lehet a nyári pihenéseknek vagy baráti
összejöveteleknek.Az ingatlan minden részletében a minőségre és a
fenntarthatóságra törekszik:A hőszivattyús padlófűtés és hűtés, valamint az
entalpiás hővisszanyerős szellőztető rendszer gondoskodik az egész éves
komfortérzetről, miközben a napelem rendszer éves szinten mindössze 1800 Ft-os
villanyszámlát eredményez. A biztonságról riasztó-, beléptető- és kamerarendszer
gondoskodik, a kényelmet pedig motoros Hörmann garázskapuk, mozgásérzékelős
világítás a folyosókon, valamint gondozásmentes alumínium kerítés teszi
teljessé.A kert szintén külön figyelmet kapott: fúrt kút, automata
öntözőrendszer, robotfűnyíró és gyepszőnyeg biztosítja a rendezett, zöld
környezetet.A belső terekben prémium burkolatok és szaniterek kerültek
beépítésre, a ház pedig saját részre, nem eladásra készült, így minden
részletében a hosszú távú minőséget képviseli.A családi ház tulajdoni lapja per,
teher -és igénymentes, tulajdonviszonyai rendezettek.Irányŕra: 143,9 millió Ft,
a bútorzat külön megállapodás tárgyát képezi! ...TOVÁBBI, TÖBBEZRES INGATLAN
KÍNÁLAT: www.gdn-ingatlan.hu - GDN azonosító: 387682
Részletek...
Adatlap
| Ár: | 143.900.000 Ft |
| Település: | Boncodfölde |
| A hirdető: | Ingatlaniroda ajánlatából |
| Értékesítés típusa: | Eladó |
| Használtság: | Újszerű |
| Utca: | Csendes mellékutcája |
| Telek nagysága (m2) : | 1290 |
| Épület hasznos területe (m2) : | 288 |
| Szobák száma: | 5 |
| Anyaga: | Egyéb anyagból készült épület |
| A hirdető kérése: | Ingatlanközvetítő vagyok - keresse fel Irodánkat! |
| Feladás dátuma: | 2025.12.28 |
| Eddig megtekintették 33 alkalommal | |
A hirdető adatai
Kapcsolat a hirdetővel...
Családi házak rovaton belül a(z) "Eladó családi ház Boncodfölde, Csendes mellékutcája" című hirdetést látja. (fent)




























