
Szolnokon eladó felújítandó kertes családi ház!
A Martfűi CasaNetWork ingatlaniroda megvételre kínál Szolnokon a
vasútállomáshoz közelében egy kertes családi házat!- az ingatlan egy
forgalommentes zsákutcában helyezkedik el,- a telek 602 m2 nagyságú, körbe
kerített,- a ház tégla alappal vályogból épült az 1960-as évek végén,- a
tetőfedés anyaga cserép,- az ingatlanban minden közmű bevezetve, - nettó
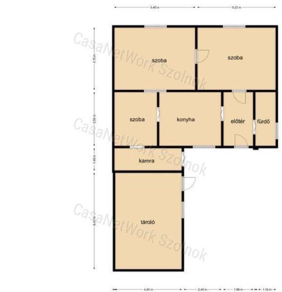
alapterülete 61 m2- előszoba, konyha, kamra, 2 külön nyíló szoba és fürdőszoba
került kialakításra,- a szobák hajópadlóval borítottak a többi helyiség
járólapos,- a nyílászárók fából készültek , építéskoriak- a fűtésről
gázkonvektorok gondoskodnak- a meleg vizet gázbojler adja- a házhoz tartozik egy
garázs és egy tároló is- a kert rendezett, néhány termő gyümölcsfa és diófa is
van- közelben élelmiszerbolt, buszmegálló, cukrászda és vasútállomás is
van Amennyiben a fenti 155806387 -es azonosító számú eladó szolnoki családi
ház, vagy bármely kínálatunkban található ingatlan felkeltette
érdeklődését, kérem hívjon bizalommal!/A hirdetésben szereplő információk a
megbízótól kapott adatok alapján készültek./Irodánk teljes körű szolgáltatással
áll ügyfelei rendelkezésére: hitelügyintézés, ügyvédi szolgáltatás, ingatlan
értékbecslés, energetikai tanúsítvány készítése.CasaNetWork - Ingatlanban otthon
vagyunk!
vasútállomáshoz közelében egy kertes családi házat!- az ingatlan egy
forgalommentes zsákutcában helyezkedik el,- a telek 602 m2 nagyságú, körbe
kerített,- a ház tégla alappal vályogból épült az 1960-as évek végén,- a
tetőfedés anyaga cserép,- az ingatlanban minden közmű bevezetve, - nettó
alapterülete 61 m2- előszoba, konyha, kamra, 2 külön nyíló szoba és fürdőszoba
került kialakításra,- a szobák hajópadlóval borítottak a többi helyiség
járólapos,- a nyílászárók fából készültek , építéskoriak- a fűtésről
gázkonvektorok gondoskodnak- a meleg vizet gázbojler adja- a házhoz tartozik egy
garázs és egy tároló is- a kert rendezett, néhány termő gyümölcsfa és diófa is
van- közelben élelmiszerbolt, buszmegálló, cukrászda és vasútállomás is
van Amennyiben a fenti 155806387 -es azonosító számú eladó szolnoki családi
ház, vagy bármely kínálatunkban található ingatlan felkeltette
érdeklődését, kérem hívjon bizalommal!/A hirdetésben szereplő információk a
megbízótól kapott adatok alapján készültek./Irodánk teljes körű szolgáltatással
áll ügyfelei rendelkezésére: hitelügyintézés, ügyvédi szolgáltatás, ingatlan
értékbecslés, energetikai tanúsítvány készítése.CasaNetWork - Ingatlanban otthon
vagyunk!
Részletek...
Adatlap
| Ár: | 22.900.000 Ft |
| Település: | Szolnok |
| A hirdető: | Ingatlaniroda ajánlatából |
| Értékesítés típusa: | Eladó |
| Használtság: | Használt |
| Telek nagysága (m2) : | 602 |
| Épület hasznos területe (m2) : | 61.00 |
| Szobák száma: | 2 |
| Félszobák száma: | 1 |
| Ingatlan állapota: | Felújítandó |
| Feladás dátuma: | 2026.04.27 |
| Eddig megtekintették 71 alkalommal | |
A hirdető adatai
Kapcsolat a hirdetővel...
Családi házak rovaton belül a(z) "Szolnokon eladó felújítandó kertes családi ház!" című hirdetést látja. (fent)




























