
Eladó családi ház Érd, Igényesen átalakított családi ház
Eladó egy teljes körűen felújított, tágas családi ház Érd központi részén -
azonnal költözhető!Érd kedvelt, központi részén csendes, kertvárosias utcában
eladó egy teljes körűen felújított, kétszintes családi ház, amely modern
kialakításával, igényes belső tereivel és gyönyörű, parkosított kertjével
ideális választás családok számára.A ház 2025-ben esett át teljes felújításon, a
felső szint és a padlástér újonnan épült. Az ingatlan a kényelem, a praktikum és
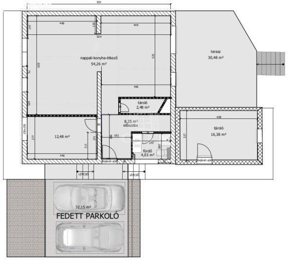
a minőségi anyaghasználat tökéletes kombinációját kínálja.Főbb jellemzők:?
Lakóterület összesen: 234 m˛? Telekméret: 300 m˛? Hatalmas, fedett kocsibeálló
és térkövezett udvar? Fúrt kút a kert locsolásához? Hőszivattyús fűtés: lent
padlófűtés, fent radiátorok? Gépi szellőzőrendszer? Új, 3 rétegű műanyag
nyílászárók? 15 cm hőszigetelés? PadlástérElrendezés:Földszint:? Nagy, világos
előszoba? Tágas nappali konyhával és étkezővel? A nappaliból nyíló hatalmas
terasz, amely közvetlen kapcsolatot biztosít a gyönyörűen parkosított kerttel?
Egy különálló szoba, ideális hálónak vagy dolgozószobának? Zuhanyzós fürdőszoba
WC-vel? Lépcső alatti praktikus tárolóEmelet:? 4 külön nyíló szoba? Tágas
közlekedő? Fürdőkádas és zuhanyzós fürdőszoba WC-vel? Külön WC? Gépészeti
helyiség, amely tárolóként is használhatóKülönálló épületrész:A házhoz
kapcsolódóan található egy külön bejáratú helyiség, amely lehet szerszámos,
tároló, vagy akár egy önálló mini lakrész.Környék és elhelyezkedés:Kiváló
közlekedés ? autóval és tömegközlekedéssel egyaránt könnyen és gyorsan
megközelíthető az ingatlan.? Gyalog pár perc a Stop Shop? Bolt, iskola, óvoda,
bölcsőde a közelben? Központi, mégis csendes és rendezett környékEz az ingatlan
tökéletes választás azoknak, akik azonnal költözhető, modern, kényelmes családi
házat keresnek Érd központi részén, gyönyörű kerttel és kiváló
infrastruktúrával.Tekintse meg személyesen is ezt a családi házat, hívjon és
egyeztessünk időpontot! ...TOVÁBBI, TÖBBEZRES INGATLAN KÍNÁLAT:
www.gdn-ingatlan.hu - GDN azonosító: 387897
azonnal költözhető!Érd kedvelt, központi részén csendes, kertvárosias utcában
eladó egy teljes körűen felújított, kétszintes családi ház, amely modern
kialakításával, igényes belső tereivel és gyönyörű, parkosított kertjével
ideális választás családok számára.A ház 2025-ben esett át teljes felújításon, a
felső szint és a padlástér újonnan épült. Az ingatlan a kényelem, a praktikum és
a minőségi anyaghasználat tökéletes kombinációját kínálja.Főbb jellemzők:?
Lakóterület összesen: 234 m˛? Telekméret: 300 m˛? Hatalmas, fedett kocsibeálló
és térkövezett udvar? Fúrt kút a kert locsolásához? Hőszivattyús fűtés: lent
padlófűtés, fent radiátorok? Gépi szellőzőrendszer? Új, 3 rétegű műanyag
nyílászárók? 15 cm hőszigetelés? PadlástérElrendezés:Földszint:? Nagy, világos
előszoba? Tágas nappali konyhával és étkezővel? A nappaliból nyíló hatalmas
terasz, amely közvetlen kapcsolatot biztosít a gyönyörűen parkosított kerttel?
Egy különálló szoba, ideális hálónak vagy dolgozószobának? Zuhanyzós fürdőszoba
WC-vel? Lépcső alatti praktikus tárolóEmelet:? 4 külön nyíló szoba? Tágas
közlekedő? Fürdőkádas és zuhanyzós fürdőszoba WC-vel? Külön WC? Gépészeti
helyiség, amely tárolóként is használhatóKülönálló épületrész:A házhoz
kapcsolódóan található egy külön bejáratú helyiség, amely lehet szerszámos,
tároló, vagy akár egy önálló mini lakrész.Környék és elhelyezkedés:Kiváló
közlekedés ? autóval és tömegközlekedéssel egyaránt könnyen és gyorsan
megközelíthető az ingatlan.? Gyalog pár perc a Stop Shop? Bolt, iskola, óvoda,
bölcsőde a közelben? Központi, mégis csendes és rendezett környékEz az ingatlan
tökéletes választás azoknak, akik azonnal költözhető, modern, kényelmes családi
házat keresnek Érd központi részén, gyönyörű kerttel és kiváló
infrastruktúrával.Tekintse meg személyesen is ezt a családi házat, hívjon és
egyeztessünk időpontot! ...TOVÁBBI, TÖBBEZRES INGATLAN KÍNÁLAT:
www.gdn-ingatlan.hu - GDN azonosító: 387897
Részletek...
Adatlap
| Ár: | 219.000.000 Ft |
| Település: | Érd |
| A hirdető: | Ingatlaniroda ajánlatából |
| Értékesítés típusa: | Eladó |
| Használtság: | Használt |
| Utca: | Igényesen átalakított családi ház |
| Telek nagysága (m2) : | 300 |
| Épület hasznos területe (m2) : | 234 |
| Szobák száma: | 6 |
| Ingatlan állapota: | Felújított |
| Anyaga: | Tégla |
| A hirdető kérése: | Ingatlanközvetítő vagyok - keresse fel Irodánkat! |
| Feladás dátuma: | 2026.01.04 |
| Eddig megtekintették 35 alkalommal | |
A hirdető adatai
Kapcsolat a hirdetővel...
Családi házak rovaton belül a(z) "Eladó családi ház Érd, Igényesen átalakított családi ház" című hirdetést látja. (fent)




























