
Eladó családi ház Székesfehérvár, Rába utca
Új építésű, korszerű, önálló családi házak 450m2 kerttel!Otthon Start Program (
3%-os hitel) igényelhető!H-004368. Székesfehérváron, Feketehegyen frekventált,
kedvelt részén (Rába utca-Körösi utca) RÁBA-LIGET Lakóparkban, összközműves
515m2-es építési telken eladó egy egyszintes, új építésű igényes, egyedi
kivitelezésű 105 m2 hasznos alapterületű, nappali + 4 szobás családi ház
terasszal.Energia hatékony ingatlan, rezsiköltség rendkívül alacsony!Az ingatlan
könnyen megközelíthető, a környék tömegközlekedése jó, pár perc alatt gyalogosan
elérhető a buszmegálló. A központban orvos, iskola, bölcsőde, óvoda, Bevásárló
központ, üzletek megtalálhatóak. Környezete kiépült. A területre 6db családi ház
épül, elérhető ingatlanok:- 2 db nappali+2 szobás, ELKELT- 3db nappali+3 szobás
: 2 DB SZABAD- 1db nappali+4 szobás : ELKELTA ház tágas, világos, minőségi
anyagokból készült. A ház szerkezete Porotherm tégla kívülről 20 cm
szigeteléssel nemes vakolattal. A födém külső borítás cseréppel (BRAMAC) készül
alatta a megfelelő vastagságú fóliázattal.A nyílászárók műanyagból készültek,3
rétegű hőszigetelt üvegezéssel, rejtett redőny tokkal. A burkolatok magas
minőségű járólap, illetve laminált padló. Fűtése-melegvíz: hőszivattyú
megoldással, padlófűtéssel.Az ár tartalmazza:, - a kulcsrakész kivitelezésen
felül, a telkeket elválasztó kerítést 3 oldalról, 1 db klímát, térkövezett
teraszt és járdát, H-tarifa bekötést , locsolómérős vízórátÁtadási határidő: a 3
szobás házak 2026.05.30 hóAz ár NEM tartalmazza:- beépített bútorok, konyhabútor
gépekkel, utcafronti kerítés kapu, redőny ( beépített redőnytokot igen, motoros
kiállással), rovarhálótAz ár tartalmazza: a kulcsrakész kivitelezést,
Megközelítés: aszfaltozott útról, saját utcafront, saját telekterület, ezen
belül saját önálló mérőórák. (víz, locsolómérő is, villany, csatorna van)A ház
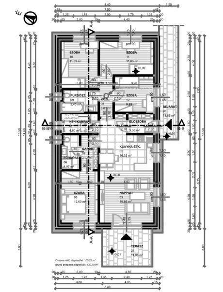
elosztását tekintve: Amerikai konyhás nappali étkező + 3 szoba (11m2), gardrób +
2db fürdőszoba + wc, terasz (12m2)Praktikusság miatt fő szempont volt, az
élhető terek kialakítása is ezért 11 m2 nagyságú hálószoba készült. A nappaliból
közvetlen kijárat van a teraszra Fontosabb paraméterek:? 2025-ben épül? 450 m2
önálló telekterület ? Porotherm tégla, 20cm grafitos szigeteléssel, nemes
vakolattal, padlóban 10cm, födémen 25cm szigetelés? Nappali + 4 hálószoba +
kicsi gardrób+ háztartási helyiség + 2 fürdőszoba-wc-vel+ terasz ? Saját
telekterület, saját utcafront ( 2 utcára)? Akadálymentesített bejutás?
Hőszivattyú, padlófűtés, 1db klíma az árban? a riasztó és klíma rendszer
alapszerelés ? Alacsony rezsiköltség, Eladási irányár:? 2 szobás ház (nappali +
2 szoba): ELKELT? 3 szobás ház nettó 85m2 (nappali + 3 szoba): 87.500.000 Ft
2DB SZABAD? 4 szobás ház nettó 105m2 (nappali + 4 szoba): ELKELTIgény esetén
bizonyos készültségi fok eléréséig, a belső burkolatok, ajtók szaniterek
választhatók.Megbízható és tapasztalt kivitelező jegyzi a ház építését, több
mint 30 éve múlttal, számtalan referenciaépülettel rendelkezik Székesfehérváron.
A vásárláshoz, a jelenleg aktuális otthonteremtésére vonatkozó támogatás igénybe
vehető (CSOK, Jelzáloghitel, Babaváró kölcsön, Piaci hitel?)Az ingatlan
adottságainak, fekvésének köszönhetően alkalmas, gyermekes családoknak..
továbbá vállalkozásra, üzleti vagy befektetési célra, hiszen akár bérbe
adható,vagy irodai tevékenység,(Csendes tevékenység engedélyezett).Ha
felkeltette érdeklődését, hívjon bizalommal, (hétvégén is) éljen ingyenes,
személyre szabott hitelügyintézés szolgáltatásunkkal. Segítünk továbbá
adásvételhez szükséges ügyvédi közreműködésben, energetikai tanúsítvány,
valamint értékbecslés elkészítésében.For English information please send a
message. ...TOVÁBBI, TÖBBEZRES INGATLAN KÍNÁLAT: www.gdn-ingatlan.hu - GDN
azonosító: 387988
3%-os hitel) igényelhető!H-004368. Székesfehérváron, Feketehegyen frekventált,
kedvelt részén (Rába utca-Körösi utca) RÁBA-LIGET Lakóparkban, összközműves
515m2-es építési telken eladó egy egyszintes, új építésű igényes, egyedi
kivitelezésű 105 m2 hasznos alapterületű, nappali + 4 szobás családi ház
terasszal.Energia hatékony ingatlan, rezsiköltség rendkívül alacsony!Az ingatlan
könnyen megközelíthető, a környék tömegközlekedése jó, pár perc alatt gyalogosan
elérhető a buszmegálló. A központban orvos, iskola, bölcsőde, óvoda, Bevásárló
központ, üzletek megtalálhatóak. Környezete kiépült. A területre 6db családi ház
épül, elérhető ingatlanok:- 2 db nappali+2 szobás, ELKELT- 3db nappali+3 szobás
: 2 DB SZABAD- 1db nappali+4 szobás : ELKELTA ház tágas, világos, minőségi
anyagokból készült. A ház szerkezete Porotherm tégla kívülről 20 cm
szigeteléssel nemes vakolattal. A födém külső borítás cseréppel (BRAMAC) készül
alatta a megfelelő vastagságú fóliázattal.A nyílászárók műanyagból készültek,3
rétegű hőszigetelt üvegezéssel, rejtett redőny tokkal. A burkolatok magas
minőségű járólap, illetve laminált padló. Fűtése-melegvíz: hőszivattyú
megoldással, padlófűtéssel.Az ár tartalmazza:, - a kulcsrakész kivitelezésen
felül, a telkeket elválasztó kerítést 3 oldalról, 1 db klímát, térkövezett
teraszt és járdát, H-tarifa bekötést , locsolómérős vízórátÁtadási határidő: a 3
szobás házak 2026.05.30 hóAz ár NEM tartalmazza:- beépített bútorok, konyhabútor
gépekkel, utcafronti kerítés kapu, redőny ( beépített redőnytokot igen, motoros
kiállással), rovarhálótAz ár tartalmazza: a kulcsrakész kivitelezést,
Megközelítés: aszfaltozott útról, saját utcafront, saját telekterület, ezen
belül saját önálló mérőórák. (víz, locsolómérő is, villany, csatorna van)A ház
elosztását tekintve: Amerikai konyhás nappali étkező + 3 szoba (11m2), gardrób +
2db fürdőszoba + wc, terasz (12m2)Praktikusság miatt fő szempont volt, az
élhető terek kialakítása is ezért 11 m2 nagyságú hálószoba készült. A nappaliból
közvetlen kijárat van a teraszra Fontosabb paraméterek:? 2025-ben épül? 450 m2
önálló telekterület ? Porotherm tégla, 20cm grafitos szigeteléssel, nemes
vakolattal, padlóban 10cm, födémen 25cm szigetelés? Nappali + 4 hálószoba +
kicsi gardrób+ háztartási helyiség + 2 fürdőszoba-wc-vel+ terasz ? Saját
telekterület, saját utcafront ( 2 utcára)? Akadálymentesített bejutás?
Hőszivattyú, padlófűtés, 1db klíma az árban? a riasztó és klíma rendszer
alapszerelés ? Alacsony rezsiköltség, Eladási irányár:? 2 szobás ház (nappali +
2 szoba): ELKELT? 3 szobás ház nettó 85m2 (nappali + 3 szoba): 87.500.000 Ft
2DB SZABAD? 4 szobás ház nettó 105m2 (nappali + 4 szoba): ELKELTIgény esetén
bizonyos készültségi fok eléréséig, a belső burkolatok, ajtók szaniterek
választhatók.Megbízható és tapasztalt kivitelező jegyzi a ház építését, több
mint 30 éve múlttal, számtalan referenciaépülettel rendelkezik Székesfehérváron.
A vásárláshoz, a jelenleg aktuális otthonteremtésére vonatkozó támogatás igénybe
vehető (CSOK, Jelzáloghitel, Babaváró kölcsön, Piaci hitel?)Az ingatlan
adottságainak, fekvésének köszönhetően alkalmas, gyermekes családoknak..
továbbá vállalkozásra, üzleti vagy befektetési célra, hiszen akár bérbe
adható,vagy irodai tevékenység,(Csendes tevékenység engedélyezett).Ha
felkeltette érdeklődését, hívjon bizalommal, (hétvégén is) éljen ingyenes,
személyre szabott hitelügyintézés szolgáltatásunkkal. Segítünk továbbá
adásvételhez szükséges ügyvédi közreműködésben, energetikai tanúsítvány,
valamint értékbecslés elkészítésében.For English information please send a
message. ...TOVÁBBI, TÖBBEZRES INGATLAN KÍNÁLAT: www.gdn-ingatlan.hu - GDN
azonosító: 387988
Részletek...
Adatlap
| Ár: | 87.500.000 Ft |
| Település: | Székesfehérvár |
| A hirdető: | Ingatlaniroda ajánlatából |
| Értékesítés típusa: | Eladó |
| Használtság: | Új építésű |
| Utca: | Rába utca |
| Telek nagysága (m2) : | 450 |
| Épület hasznos területe (m2) : | 120 |
| Szobák száma: | 5 |
| Anyaga: | Tégla |
| A hirdető kérése: | Ingatlanközvetítő vagyok - keresse fel Irodánkat! |
| Feladás dátuma: | 2026.01.04 |
| Eddig megtekintették 33 alkalommal | |
A hirdető adatai
Kapcsolat a hirdetővel...
Családi házak rovaton belül a(z) "Eladó családi ház Székesfehérvár, Rába utca" című hirdetést látja. (fent)




























