
Eladó családi ház Babosdöbréte, Erdővel körülvett családihá
Mesébe illő környezetben Zalaegerszegtől csupán 11 km - re részben felújított
családi ház eladó!Irányára: 38.000.000 FtBabosdöbrétén vált eladóvá ez a 87 m2 -
es első részében tégla, hátsó részében vályog falazatú, műszakilag nagyrészt
felújított családi ház az őt körülvevő, 5709 m2-en elterülő varázslatos
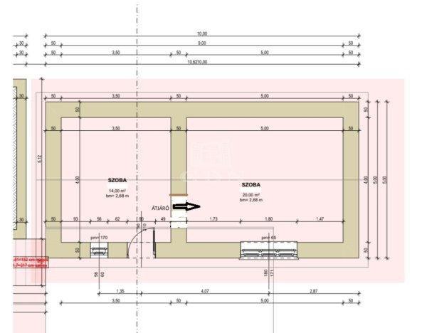
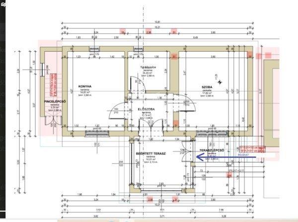
birtokkal.Az épület első, tégla részében 53 m2-en kialakításra került egy
nagyméretű előszoba, egy hálószoba, egy konyha-étkező együttes, egy fürdőszoba,
valamint a nappaliként használt beépített terasz. A ház ezen része egy
tisztasági festést követően azonnal beköltözhető, műszakilag teljesen felújított
állapotban van. A felújítás során a teljes víz és áramhálózat cseréje
megvalósult, a vasbeton födémmel rendelkező tető karbantartása megtörtént,
mellyel egyidejűleg új cserepes lemez borítást kapott.Műanyag nyílászárók
kerültek beépítésre, melyek mindegyike redőnnyel és szúnyoghálóval ellátott.A
külön bejárattal megközelíthető hátsó, vályog falazatú eredeti állapotú részben
találhatunk további kettő, külön bejáratról megközelíthető nagyméretű szobát.
Bár az épületrészbe a vezetékes víz áthúzása nem valósult meg, a műszaki
felújítás itt is elkezdődött, valamint a falak injektálása megtörtént. Az
áramhálózat, illetve tető felújítás lezajlott, utóbbi szintén cserepes lemezzel
borított. Fagerendás döngölt földdel ellátott födémmel rendelkezik, melyen
betonkoszorút találunk.A ház ezen részén is műanyag, redőnnyel és szúnyoghálóval
felszerelt nyílászárókat találunk.A külön bejárat számos lehetőséget rejt
magában, kialakítható belőle egy különálló lakrész, de akár egy vendégház is.A
két épületrészt egy, az egész ház előtt végigfutó, 30 m2-es fedett terasz köti
össze, ahonnan csodálatos panoráma nyílik a házat körülölelő fenyőerdőre. A
konyha alatt egy nagyméretű pince található, mely kiválóan alkalmas tárolásra, a
bejárati aljtóhoz vezető lépcső mellett pedig egy aprócska ajtón megközelíthető,
praktikus fatárolót alakítottak ki. A kertben található egy fából épült kisház
is, mely barkácsolásra tökéletesen alkalmas teret biztosít. Közvetlenül mellette
helyezkedik el a 2022-ben épített tágas garázs, amely szendvicspaneles
megoldással épült, automata garázskapuval rendelkezik, pára- és hő érzékelő
ventilátorral ellátott, melynek köszönhetően az épület fűtése is megoldott,
továbbá az áram mellett a vezetékes víz is bevezetésre került. A zárt garázs
mellett egy két autó számára is elegendő, kavicsos kocsibeálló is kialakításra
került telken belül, illetve a garázs előtti murvás rész is alkalmas 2
személyautó parkolásához.Közművek közül az áram, illetve a vezetékes víz
megtalálható az ingatlanban, saját emésztővel rendelkezik.A meglegvíz ellátásért
egy hőtároló villanybojler felel, a télen-nyáron ideális hőmérsékletet pedig a
minden szobában elhelyezett hűtő-fűtő klímaberendezések biztosítják. A
fürdőszoba melegéről egy infrapaneles fűtőberendezés gondoskodik.Az épület
kiváló technikai megoldásokkal rendelkezik, a felújítás során fontos szempont
volt a környezettudatosság és a praktikus kialakítás, az őt körül vevő nyugalom
és a természet közelsége pedig idális helyszínt teremt a város zaja elől elbújni
vágyó Családoknak. Amennyiben szeretne békés, nyugodt helyen otthont teremteni
vagy hétvégi házként funkcionáló, kikapcsolódásra, feltöltődésre alkalmas
környezetet kialakítani csupán 15 percnyire Zalaegerszegtől, ez a lehetőség Önre
vár!Irányára: 38.000.000 FtBabösdöbréte egy apró, de annál barátságosabb
település Zalaegerszegtől mindössze 11 km-re, mely onnan menetrend szerinti
buszjárattal megközelíthető.Szomszédos települése Teskánd, ahol bölcsőde, óvoda,
általános iskola egyaránt elérhető a kisgyermekes családok számára. Orvosi
rendelő és védőnői szolgálat működik, valamint tanuszoda és számos szabadidős
programot kínáló közösségi ház is üzemel. ...TOVÁBBI, TÖBBEZRES INGATLAN
KÍNÁLAT: www.gdn-ingatlan.hu - GDN azonosító: 388156
családi ház eladó!Irányára: 38.000.000 FtBabosdöbrétén vált eladóvá ez a 87 m2 -
es első részében tégla, hátsó részében vályog falazatú, műszakilag nagyrészt
felújított családi ház az őt körülvevő, 5709 m2-en elterülő varázslatos
birtokkal.Az épület első, tégla részében 53 m2-en kialakításra került egy
nagyméretű előszoba, egy hálószoba, egy konyha-étkező együttes, egy fürdőszoba,
valamint a nappaliként használt beépített terasz. A ház ezen része egy
tisztasági festést követően azonnal beköltözhető, műszakilag teljesen felújított
állapotban van. A felújítás során a teljes víz és áramhálózat cseréje
megvalósult, a vasbeton födémmel rendelkező tető karbantartása megtörtént,
mellyel egyidejűleg új cserepes lemez borítást kapott.Műanyag nyílászárók
kerültek beépítésre, melyek mindegyike redőnnyel és szúnyoghálóval ellátott.A
külön bejárattal megközelíthető hátsó, vályog falazatú eredeti állapotú részben
találhatunk további kettő, külön bejáratról megközelíthető nagyméretű szobát.
Bár az épületrészbe a vezetékes víz áthúzása nem valósult meg, a műszaki
felújítás itt is elkezdődött, valamint a falak injektálása megtörtént. Az
áramhálózat, illetve tető felújítás lezajlott, utóbbi szintén cserepes lemezzel
borított. Fagerendás döngölt földdel ellátott födémmel rendelkezik, melyen
betonkoszorút találunk.A ház ezen részén is műanyag, redőnnyel és szúnyoghálóval
felszerelt nyílászárókat találunk.A külön bejárat számos lehetőséget rejt
magában, kialakítható belőle egy különálló lakrész, de akár egy vendégház is.A
két épületrészt egy, az egész ház előtt végigfutó, 30 m2-es fedett terasz köti
össze, ahonnan csodálatos panoráma nyílik a házat körülölelő fenyőerdőre. A
konyha alatt egy nagyméretű pince található, mely kiválóan alkalmas tárolásra, a
bejárati aljtóhoz vezető lépcső mellett pedig egy aprócska ajtón megközelíthető,
praktikus fatárolót alakítottak ki. A kertben található egy fából épült kisház
is, mely barkácsolásra tökéletesen alkalmas teret biztosít. Közvetlenül mellette
helyezkedik el a 2022-ben épített tágas garázs, amely szendvicspaneles
megoldással épült, automata garázskapuval rendelkezik, pára- és hő érzékelő
ventilátorral ellátott, melynek köszönhetően az épület fűtése is megoldott,
továbbá az áram mellett a vezetékes víz is bevezetésre került. A zárt garázs
mellett egy két autó számára is elegendő, kavicsos kocsibeálló is kialakításra
került telken belül, illetve a garázs előtti murvás rész is alkalmas 2
személyautó parkolásához.Közművek közül az áram, illetve a vezetékes víz
megtalálható az ingatlanban, saját emésztővel rendelkezik.A meglegvíz ellátásért
egy hőtároló villanybojler felel, a télen-nyáron ideális hőmérsékletet pedig a
minden szobában elhelyezett hűtő-fűtő klímaberendezések biztosítják. A
fürdőszoba melegéről egy infrapaneles fűtőberendezés gondoskodik.Az épület
kiváló technikai megoldásokkal rendelkezik, a felújítás során fontos szempont
volt a környezettudatosság és a praktikus kialakítás, az őt körül vevő nyugalom
és a természet közelsége pedig idális helyszínt teremt a város zaja elől elbújni
vágyó Családoknak. Amennyiben szeretne békés, nyugodt helyen otthont teremteni
vagy hétvégi házként funkcionáló, kikapcsolódásra, feltöltődésre alkalmas
környezetet kialakítani csupán 15 percnyire Zalaegerszegtől, ez a lehetőség Önre
vár!Irányára: 38.000.000 FtBabösdöbréte egy apró, de annál barátságosabb
település Zalaegerszegtől mindössze 11 km-re, mely onnan menetrend szerinti
buszjárattal megközelíthető.Szomszédos települése Teskánd, ahol bölcsőde, óvoda,
általános iskola egyaránt elérhető a kisgyermekes családok számára. Orvosi
rendelő és védőnői szolgálat működik, valamint tanuszoda és számos szabadidős
programot kínáló közösségi ház is üzemel. ...TOVÁBBI, TÖBBEZRES INGATLAN
KÍNÁLAT: www.gdn-ingatlan.hu - GDN azonosító: 388156
Részletek...
Adatlap
| Ár: | 38.000.000 Ft |
| Település: | Babosdöbréte |
| A hirdető: | Ingatlaniroda ajánlatából |
| Értékesítés típusa: | Eladó |
| Használtság: | Használt |
| Utca: | Erdővel körülvett családiház |
| Telek nagysága (m2) : | 5709 |
| Épület hasznos területe (m2) : | 87 |
| Szobák száma: | 3 |
| Félszobák száma: | 1 |
| Fűtés: | Egyéb fűtéses |
| Ingatlan állapota: | Normál állapotú |
| Anyaga: | Tégla |
| A hirdető kérése: | Ingatlanközvetítő vagyok - keresse fel Irodánkat! |
| Feladás dátuma: | 2026.04.11 |
| Eddig megtekintették 71 alkalommal | |
A hirdető adatai
Kapcsolat a hirdetővel...
Családi házak rovaton belül a(z) "Eladó családi ház Babosdöbréte, Erdővel körülvett családihá" című hirdetést látja. (fent)




























