
Győrújfalu eladó új építésű, 4 szobás családi ház
Győr-Moson-Sopron Vármegye, Győrújfalu új építésű 4 szobás ikerház
eladó. GYŐRÚJFALUMagyarország északnyugati részén, Győrtől 6 kilométerre
helyezkedik el, az 1401-es út mentén. Lakossága kb. 2000 fő. Az ikerház
elhelyezkedését tekintve központi helyen van, de a főúttól kicsit távolabb.Egy
1323 m2-es telken helyezkednek el, közös fala nincs, tárolókon keresztül
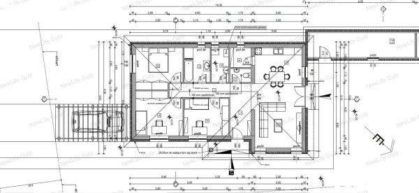
csatlakoznak egymáshoz. Utcafronti (L1) ház: 94 m2 + 17 m2 tároló 517 m2-es
telek, hátsó (L2) ház: 103 m2+8 m2 tároló + 18 m2 terasz 806 m2 telken. Tárolók
csak a kulcsrakész állapotban vannak benne. AZ ÉPÜLET:A 4 szobás (L1), 94 m2-es
ikerház ház fűtéskész állapotban kerül átadásra várhatóan: 2025 második felében.
Természetesen, kulcsrakész befejezésre is van lehetőség.Két ikerház
elhelyezkedése: egymás mögött helyezkednek el, tárolókon keresztül
csatlakoznak.Elosztása: Előtér, közlekedő, amerikai konyhás nappali étkezővel,
kamra, három szoba, egy fürdőszoba, külön WC, háztartási helyiség. MŰSZAKI
TARTALOM:Teherhordó falazat 30-as tégla falazattal készülnek, 15 cm-es
hőszigetelő rendszerrel. Fafödém, 30-cm üveggyapot hőszigeteléssel. Terrán
fekete tetőcserép, antracit bádogos szerkezet és esőcsatorna.Padló hőszigetelés
12 cm-es lépésálló.Homlokzati fehér műanyag nyílászárók hő- és hangszigetelt 5
légkamrás, 3 rtg üvegezéssel, műanyag 5 ponton záródó hőszigetelt fehér bejárati
ajtó.A fűtésről és melegvízellátásról kondenzációs kombi gázkazán gondoskodik
(Saunier Duval), hőleadás padlófűtésen keresztül történik. Az ár a
telekhányadot már tartalmazza. Kisebb mértékű változtatás az építés
előrehaladottságától függően lehetséges, műszaki tartalom emelhető felár
ellenében.(akár hőszivattyús fűtési rendszer, napelem is kérhető)A családi házra
CSOK Plusz, kedvezményes lakáshitel, illetékmentesség is igényelhető/felvehető,
így az összes támogatás kihasználható rá, ami aktuálisan elérhető. KI ÉPÍTI?A
vállalkozó és összeszokott csapata, számos referenciával rendelkeznek, lassan 20
éve építenek, befejeznek, felújítanak.Ez alatt az idő alatt kialakult egy rutin,
a házak terveit folyamatosan alakítják, mindig a kor legfontosabb
követelményeinek és trendjeinek figyelembe vételével. Tudják, amit vállalnak azt
precízen, pontosan megvalósítják, határidők, igények betartásával. Ne maradjon
le róla! A jelen hirdetésben rögzített, az ingatlannal kapcsolatos adatok,
információk a Megbízó tájékoztatása alapján kerültek meghatározásra. Irodánkban
az alábbiakkal tudjuk segíteni a gyors és megbízható ügyintézést:-bankfüggetlen
hitelügyintézés, CSOK Plusz-energetikai tanúsítvány-értékbecslés-ügyvédi
szerződések, jogi tanácsadás
eladó. GYŐRÚJFALUMagyarország északnyugati részén, Győrtől 6 kilométerre
helyezkedik el, az 1401-es út mentén. Lakossága kb. 2000 fő. Az ikerház
elhelyezkedését tekintve központi helyen van, de a főúttól kicsit távolabb.Egy
1323 m2-es telken helyezkednek el, közös fala nincs, tárolókon keresztül
csatlakoznak egymáshoz. Utcafronti (L1) ház: 94 m2 + 17 m2 tároló 517 m2-es
telek, hátsó (L2) ház: 103 m2+8 m2 tároló + 18 m2 terasz 806 m2 telken. Tárolók
csak a kulcsrakész állapotban vannak benne. AZ ÉPÜLET:A 4 szobás (L1), 94 m2-es
ikerház ház fűtéskész állapotban kerül átadásra várhatóan: 2025 második felében.
Természetesen, kulcsrakész befejezésre is van lehetőség.Két ikerház
elhelyezkedése: egymás mögött helyezkednek el, tárolókon keresztül
csatlakoznak.Elosztása: Előtér, közlekedő, amerikai konyhás nappali étkezővel,
kamra, három szoba, egy fürdőszoba, külön WC, háztartási helyiség. MŰSZAKI
TARTALOM:Teherhordó falazat 30-as tégla falazattal készülnek, 15 cm-es
hőszigetelő rendszerrel. Fafödém, 30-cm üveggyapot hőszigeteléssel. Terrán
fekete tetőcserép, antracit bádogos szerkezet és esőcsatorna.Padló hőszigetelés
12 cm-es lépésálló.Homlokzati fehér műanyag nyílászárók hő- és hangszigetelt 5
légkamrás, 3 rtg üvegezéssel, műanyag 5 ponton záródó hőszigetelt fehér bejárati
ajtó.A fűtésről és melegvízellátásról kondenzációs kombi gázkazán gondoskodik
(Saunier Duval), hőleadás padlófűtésen keresztül történik. Az ár a
telekhányadot már tartalmazza. Kisebb mértékű változtatás az építés
előrehaladottságától függően lehetséges, műszaki tartalom emelhető felár
ellenében.(akár hőszivattyús fűtési rendszer, napelem is kérhető)A családi házra
CSOK Plusz, kedvezményes lakáshitel, illetékmentesség is igényelhető/felvehető,
így az összes támogatás kihasználható rá, ami aktuálisan elérhető. KI ÉPÍTI?A
vállalkozó és összeszokott csapata, számos referenciával rendelkeznek, lassan 20
éve építenek, befejeznek, felújítanak.Ez alatt az idő alatt kialakult egy rutin,
a házak terveit folyamatosan alakítják, mindig a kor legfontosabb
követelményeinek és trendjeinek figyelembe vételével. Tudják, amit vállalnak azt
precízen, pontosan megvalósítják, határidők, igények betartásával. Ne maradjon
le róla! A jelen hirdetésben rögzített, az ingatlannal kapcsolatos adatok,
információk a Megbízó tájékoztatása alapján kerültek meghatározásra. Irodánkban
az alábbiakkal tudjuk segíteni a gyors és megbízható ügyintézést:-bankfüggetlen
hitelügyintézés, CSOK Plusz-energetikai tanúsítvány-értékbecslés-ügyvédi
szerződések, jogi tanácsadás
Részletek...
Adatlap
| Ár: | 94.990.000 Ft |
| Település: | Győrújfalu |
| A hirdető: | Ingatlaniroda ajánlatából |
| Értékesítés típusa: | Eladó |
| Telek nagysága (m2) : | 517 |
| Épület hasznos területe (m2) : | 94 |
| Szobák száma: | 4 |
| Komfort: | Összkomfortos |
| Ingatlan állapota: | Normál állapotú |
| Anyaga: | Tégla |
| A hirdető kérése: | Ingatlanközvetítő vagyok - keresse fel Irodánkat! |
| Feladás dátuma: | 2026.03.12 |
| Eddig megtekintették 51 alkalommal | |
A hirdető adatai
Kapcsolat a hirdetővel...
Családi házak rovaton belül a(z) "Győrújfalu eladó új építésű, 4 szobás családi ház" című hirdetést látja. (fent)




























