
Diósd Sashegyen, kertvárosi kisutcában eladó újépítésű 115m2
Új építésű családi ház eladó ? most még testre szabható! Csendes
kertvárosi környezetben, 776 m˛-es telken kínáljuk megvételre ezt az új építésű,
nettó 115 m˛-es családi házat, amely jelenleg 50%-os készültségi szinten áll,
így az új tulajdonos még több fontos döntésbe beleszólhat! Főbb jellemzők:Nettó
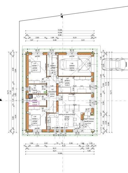
alapterület: 115 m˛Telekterület: 776 m˛ Variálható belső elrendezés ? a szobák
és a garázs elhelyezkedése még szabadon alakítható!Akár nagyobb nappali vagy
plusz hálószoba is kialakítható A ház kivitelezése hagyományos technológiával
történik:Vasalt sávalap (40?50 cm szélesség, 50 cm magasság)Porotherm
(vázkerámia) falazat ? 30 cm vastagMonolit vasbeton födémek, illetve 28 cm
vastag fafödémHomlokzati hőszigetelés: 15 cm, födém szigetelés: 30
cm Kivitelezési ajánlat:A kivitelező kulcsrakész átadást vállal 3 hónapon belül,
20% előleg megfizetését követően, amennyiben a végleges burkolatok, anyagok
kiválasztása megtörtént és rendelkezésre áll. A kivitelezés az alábbi
értékhatárokon belül tartalmazza az anyagokat és a munkadíjat:Hideg- és
melegburkolat: 6.000 Ft/m˛-igBeltéri ajtók: 60.000 Ft/db-igKád vagy zuhanyzó:
100.000 Ft/db-igCsaptelepek, szerelvények: 25.000 Ft/db-igSzaniter (Geberit):
50.000 Ft/db-igVillanykiállások: max. 50 dbFürdőszoba burkolása: 210 cm
magasságig3 rétegű hőszigetelt nyílászárók, bejárati ajtóHőszivattyús fűtés:
1.300.000 Ft-igVillanybojler: 130.000 Ft-ig Most még Ön dönthet a belső
elrendezésről és burkolatokról ? építkezzen stresszmentesen, kulcsrakészen!
kertvárosi környezetben, 776 m˛-es telken kínáljuk megvételre ezt az új építésű,
nettó 115 m˛-es családi házat, amely jelenleg 50%-os készültségi szinten áll,
így az új tulajdonos még több fontos döntésbe beleszólhat! Főbb jellemzők:Nettó
alapterület: 115 m˛Telekterület: 776 m˛ Variálható belső elrendezés ? a szobák
és a garázs elhelyezkedése még szabadon alakítható!Akár nagyobb nappali vagy
plusz hálószoba is kialakítható A ház kivitelezése hagyományos technológiával
történik:Vasalt sávalap (40?50 cm szélesség, 50 cm magasság)Porotherm
(vázkerámia) falazat ? 30 cm vastagMonolit vasbeton födémek, illetve 28 cm
vastag fafödémHomlokzati hőszigetelés: 15 cm, födém szigetelés: 30
cm Kivitelezési ajánlat:A kivitelező kulcsrakész átadást vállal 3 hónapon belül,
20% előleg megfizetését követően, amennyiben a végleges burkolatok, anyagok
kiválasztása megtörtént és rendelkezésre áll. A kivitelezés az alábbi
értékhatárokon belül tartalmazza az anyagokat és a munkadíjat:Hideg- és
melegburkolat: 6.000 Ft/m˛-igBeltéri ajtók: 60.000 Ft/db-igKád vagy zuhanyzó:
100.000 Ft/db-igCsaptelepek, szerelvények: 25.000 Ft/db-igSzaniter (Geberit):
50.000 Ft/db-igVillanykiállások: max. 50 dbFürdőszoba burkolása: 210 cm
magasságig3 rétegű hőszigetelt nyílászárók, bejárati ajtóHőszivattyús fűtés:
1.300.000 Ft-igVillanybojler: 130.000 Ft-ig Most még Ön dönthet a belső
elrendezésről és burkolatokról ? építkezzen stresszmentesen, kulcsrakészen!
Részletek...
Adatlap
| Ár: | 105.000.000 Ft |
| Település: | Diósd |
| A hirdető: | Ingatlaniroda ajánlatából |
| Értékesítés típusa: | Eladó |
| Telek nagysága (m2) : | 776 |
| Épület hasznos területe (m2) : | 115 |
| Szobák száma: | 4 |
| Komfort: | Összkomfortos |
| Ingatlan állapota: | Normál állapotú |
| Anyaga: | Tégla |
| A hirdető kérése: | Ingatlanközvetítő vagyok - keresse fel Irodánkat! |
| Feladás dátuma: | 2026.01.11 |
| Eddig megtekintették 26 alkalommal | |
A hirdető adatai
Kapcsolat a hirdetővel...
Családi házak rovaton belül a(z) "Diósd Sashegyen, kertvárosi kisutcában eladó újépítésű 115m2" című hirdetést látja. (fent)



























