
Eladó 148m2-es Ikerház, Biatorbágy
ELADÓ Biatorbágy csendes zsákutcában nettó 148 m2-es ikerház mindkét
fele, ami teljes belmagasságú szint, nem tetőteres, saját elkerített 300 m2-
kert résszel!Mindegyik házrész saját közműmérő órákkal lesz felszerelve,
közvetlen a szolgáltató felé fizetéssel.A házaknak egymáshoz nincs is szerkezet
közük, ugyanis középen dupla fal készül és közötte hangszigetelő gyapot kerül
elhelyezésre, így semmi áthallás!Második födém is vasbeton szerkezet, tökéletes
hőcsapda, hőszigetelés - felette még padlástér!!!HÁROM!!! réteg üvegű ablakok a
legjobb hő és hangszigetelésért, és passzív házas építés szerinti hungarocell
blokk elemekből. (Thermo-block 35, U érték= 0,15 !!!)A teraszok elég távol
vannak egymástól, mivel nagyon széles az épület, és így a kertkapcsolat, a
kialakuló élet teljesen elszeparált, ellentétes irányú, nem zavarják
egymást.Építkezés kezdése: 2019. augusztus, átadása: 2020. május vége (így
szinte mindenbe bele lehet szólni, hogy milyen legyen akár az elrendezés, akár
falak, burkolatok, stb., illetve még egy előző ingatlan eladása is
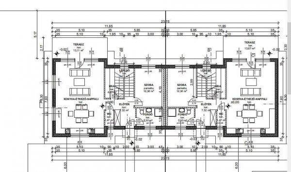
belefér.Földszinten kertkapcsolatot tágas világos nappali, konyha, étkező,
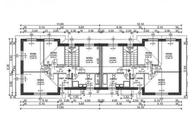
vendégszoba, zuhanyzós fürdőszoba, külön Wc, emeleten négy szoba, fürdő és
háztartási helyiség kerül kialakításra!Ár: 90%-os készültségben 69,9 Millió Ft!!
fele, ami teljes belmagasságú szint, nem tetőteres, saját elkerített 300 m2-
kert résszel!Mindegyik házrész saját közműmérő órákkal lesz felszerelve,
közvetlen a szolgáltató felé fizetéssel.A házaknak egymáshoz nincs is szerkezet
közük, ugyanis középen dupla fal készül és közötte hangszigetelő gyapot kerül
elhelyezésre, így semmi áthallás!Második födém is vasbeton szerkezet, tökéletes
hőcsapda, hőszigetelés - felette még padlástér!!!HÁROM!!! réteg üvegű ablakok a
legjobb hő és hangszigetelésért, és passzív házas építés szerinti hungarocell
blokk elemekből. (Thermo-block 35, U érték= 0,15 !!!)A teraszok elég távol
vannak egymástól, mivel nagyon széles az épület, és így a kertkapcsolat, a
kialakuló élet teljesen elszeparált, ellentétes irányú, nem zavarják
egymást.Építkezés kezdése: 2019. augusztus, átadása: 2020. május vége (így
szinte mindenbe bele lehet szólni, hogy milyen legyen akár az elrendezés, akár
falak, burkolatok, stb., illetve még egy előző ingatlan eladása is
belefér.Földszinten kertkapcsolatot tágas világos nappali, konyha, étkező,
vendégszoba, zuhanyzós fürdőszoba, külön Wc, emeleten négy szoba, fürdő és
háztartási helyiség kerül kialakításra!Ár: 90%-os készültségben 69,9 Millió Ft!!
Részletek...
Adatlap
| Ár: | 69.900.000 Ft |
| Település: | Biatorbágy |
| A hirdető: | Ingatlaniroda ajánlatából |
| Értékesítés típusa: | Eladó |
| Telek nagysága (m2) : | 648 |
| Épület hasznos területe (m2) : | 148 |
| Szobák száma: | 6 |
| Anyaga: | Tégla |
| A hirdető kérése: | Ingatlanközvetítő vagyok - keresse fel Irodánkat! |
| Feladás dátuma: | 2026.04.25 |
| Eddig megtekintették 53 alkalommal | |
A hirdető adatai
Kapcsolat a hirdetővel...
Családi házak rovaton belül a(z) "Eladó 148m2-es Ikerház, Biatorbágy" című hirdetést látja. (fent)




























