
Eladó Ház, Iregszemcse
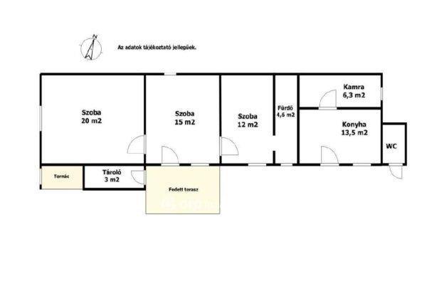
Iregszemcse csendes, nyugodt utcájában kínálok megvételre egy 74 m2-es, vegyes
falazatú (tömés és tégla) családi házat, 869 m2-es telken.Az ingatlan felújítást
igényel, de stabil szerkezetű, rendezett tulajdoni viszonyokkal rendelkezik,
tehermentes, és azonnal birtokba vehető.A házban 3 jelenleg szobaként használt
helyiség és fürdőszoba található, valamint kb.10 évvel ezelőtt egy külön
bejáratú, téglafalazatú konyha és kamra épületrész került kialakításra, valamint
egy kis tárolóhelyiség is a ház részét képezi.A fűtés kályhával történik, a
nyílászárók fából készültek, a bejárati ajtó viszonylag új.A kis tornác és a
fedett terasz kellemes vidéki hangulatot áraszt, ideális helyet biztosít a
pihenésre.A tágas, 869 m2-es udvaron több gyümölcsfa, valamint állattartásra
alkalmas melléképületek is megtalálhatók, így a telek kertészkedésre vagy
gazdálkodásra is kiválóan alkalmas.Az ingatlan megfelel az Otthon Start program
feltételeinek.
falazatú (tömés és tégla) családi házat, 869 m2-es telken.Az ingatlan felújítást
igényel, de stabil szerkezetű, rendezett tulajdoni viszonyokkal rendelkezik,
tehermentes, és azonnal birtokba vehető.A házban 3 jelenleg szobaként használt
helyiség és fürdőszoba található, valamint kb.10 évvel ezelőtt egy külön
bejáratú, téglafalazatú konyha és kamra épületrész került kialakításra, valamint
egy kis tárolóhelyiség is a ház részét képezi.A fűtés kályhával történik, a
nyílászárók fából készültek, a bejárati ajtó viszonylag új.A kis tornác és a
fedett terasz kellemes vidéki hangulatot áraszt, ideális helyet biztosít a
pihenésre.A tágas, 869 m2-es udvaron több gyümölcsfa, valamint állattartásra
alkalmas melléképületek is megtalálhatók, így a telek kertészkedésre vagy
gazdálkodásra is kiválóan alkalmas.Az ingatlan megfelel az Otthon Start program
feltételeinek.
Részletek...
Adatlap
| Ár: | 13.400.000 Ft |
| Település: | Iregszemcse |
| A hirdető: | Ingatlaniroda ajánlatából |
| Értékesítés típusa: | Eladó |
| Használtság: | Használt |
| Telek nagysága (m2) : | 869 |
| Épület hasznos területe (m2) : | 74.00 |
| Szobák száma: | 3 |
| Komfort: | Komfortos |
| Ingatlan állapota: | Felújítandó |
| Feladás dátuma: | 2026.03.03 |
| Eddig megtekintették 41 alkalommal | |
A hirdető adatai
Kapcsolat a hirdetővel...
Családi házak rovaton belül a(z) "Eladó Ház, Iregszemcse" című hirdetést látja. (fent)




























