
Eladó Ház, Siófok
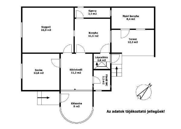
Balaton déli part, Siófok, 75 m2 családi ház eladó. Az ingatlan a Belvároshoz
közel, forgalmas út mellett helyezkedik el. A földszintes lakóépület több
elemében az elmúlt években felújításra került, nyílászárók nagy részben korszerű
műanyag szerkezetek, a külső homlokzat hőszigetelést és új vakolatot kapott, a
tető, tetőhéjazat megújult. A belső térben új padlóburkolatok készültek,
közlekedőben elektromos padlófűtéssel. A fűtés elektromos infra panelekkel
megoldott. A lakótérben hűtő fűtő klímaberendezés került kiépítésre. A jól
karbantartott épület kedvező tájolású, déli-nyugati benapozású. A konyhabútor a
vételár részét képezi, a többi berendezés további megegyezés tárgya lehet. A
telek területe 316 m2. A lakóépület részben alápincézett, mögötte nyári konyha
és fedett terasz található. Balaton-part 1500 méterre, autóval 5 perc alatt
elérhető. Otthon Start Program. Bővebb információért keressen telefonon!
közel, forgalmas út mellett helyezkedik el. A földszintes lakóépület több
elemében az elmúlt években felújításra került, nyílászárók nagy részben korszerű
műanyag szerkezetek, a külső homlokzat hőszigetelést és új vakolatot kapott, a
tető, tetőhéjazat megújult. A belső térben új padlóburkolatok készültek,
közlekedőben elektromos padlófűtéssel. A fűtés elektromos infra panelekkel
megoldott. A lakótérben hűtő fűtő klímaberendezés került kiépítésre. A jól
karbantartott épület kedvező tájolású, déli-nyugati benapozású. A konyhabútor a
vételár részét képezi, a többi berendezés további megegyezés tárgya lehet. A
telek területe 316 m2. A lakóépület részben alápincézett, mögötte nyári konyha
és fedett terasz található. Balaton-part 1500 méterre, autóval 5 perc alatt
elérhető. Otthon Start Program. Bővebb információért keressen telefonon!
Részletek...
Adatlap
| Ár: | 79.000.000 Ft |
| Település: | Siófok |
| A hirdető: | Ingatlaniroda ajánlatából |
| Értékesítés típusa: | Eladó |
| Használtság: | Használt |
| Telek nagysága (m2) : | 316 |
| Épület hasznos területe (m2) : | 75.00 |
| Szobák száma: | 2 |
| Komfort: | Komfortos |
| Ingatlan állapota: | Normál állapotú |
| Feladás dátuma: | 2026.03.10 |
| Eddig megtekintették 42 alkalommal | |
A hirdető adatai
Kapcsolat a hirdetővel...
Családi házak rovaton belül a(z) "Eladó Ház, Siófok" című hirdetést látja. (fent)




























