
Modern stílusú családi ház a Duna lakóparkban eladó - Mosonm
Ne Keressen Tovább! Beköltözne egy újszerű családi házba Mosonmagyaróvár kedvenc
lakóparkjában?2019-es építésű ikerház Dél-Nyugati fekvésű, fém-vázas
könnyűszerkezetes épület. 120 m2-es mediterrán stílusú ingatlan, amely
Mosonmagyaróvár minden igényt kielégítő környezetében, a Duna Lakóparkban
található.410 m2-es, parkosított telken helyezkedik el, a 26 m2-es fedett
teraszán található egy nyári konyha, mellette pedig egy jakuzzi!Jellemzői: tágas
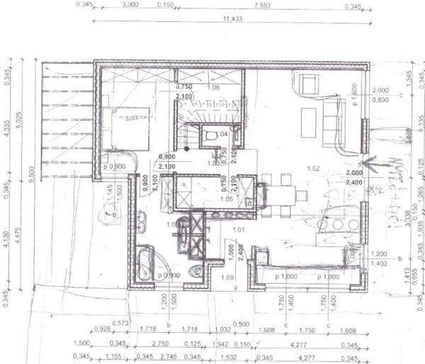
terek, praktikus belső elrendezés, padlófűtés, klíma, biokandallóElosztása az
alsó szinten:- szélfogó- amerikai konyhás nappali- közlekedő- mellékhelyiség-
háztartási helyiség- hálószoba gardróbbal- fürdőszobaAz emeleten:- közlekedő-
fürdőszoba zuhanyzóval- három tágas hálószoba -teraszA parkolásra több
lehetőség is van, pl.: nagyméretű garázs, fedett beálló, illetve az ingatlan
előtt térkövezett terület!Ne hagyja ki ezt a ritka lehetőséget! Tegye meg az
első lépést álmai otthona felé!
lakóparkjában?2019-es építésű ikerház Dél-Nyugati fekvésű, fém-vázas
könnyűszerkezetes épület. 120 m2-es mediterrán stílusú ingatlan, amely
Mosonmagyaróvár minden igényt kielégítő környezetében, a Duna Lakóparkban
található.410 m2-es, parkosított telken helyezkedik el, a 26 m2-es fedett
teraszán található egy nyári konyha, mellette pedig egy jakuzzi!Jellemzői: tágas
terek, praktikus belső elrendezés, padlófűtés, klíma, biokandallóElosztása az
alsó szinten:- szélfogó- amerikai konyhás nappali- közlekedő- mellékhelyiség-
háztartási helyiség- hálószoba gardróbbal- fürdőszobaAz emeleten:- közlekedő-
fürdőszoba zuhanyzóval- három tágas hálószoba -teraszA parkolásra több
lehetőség is van, pl.: nagyméretű garázs, fedett beálló, illetve az ingatlan
előtt térkövezett terület!Ne hagyja ki ezt a ritka lehetőséget! Tegye meg az
első lépést álmai otthona felé!
Részletek...
Adatlap
| Ár: | 132.000.000 Ft |
| Település: | Mosonmagyaróvár |
| A hirdető: | Ingatlaniroda ajánlatából |
| Értékesítés típusa: | Eladó |
| Használtság: | Újszerű |
| Telek nagysága (m2) : | 410 |
| Épület hasznos területe (m2) : | 120.00 |
| Szobák száma: | 5 |
| Feladás dátuma: | 2026.01.09 |
| Eddig megtekintették 28 alkalommal | |
A hirdető adatai
Kapcsolat a hirdetővel...
Családi házak rovaton belül a(z) "Modern stílusú családi ház a Duna lakóparkban eladó - Mosonm" című hirdetést látja. (fent)




























