
Földszintes, felújított családi ház eladó! - Mosonmagyaróvár
Mosonmagyaróvár frekventált részén, kiváló állapotú családi ház eladó!Eladásra
kínálok egy felújított, földszintes, 77 m˛-es családi házat 891 nm
telekterülettel Mosonmagyaróváron, a vasútállomás és az autópálya-felhajtó
közvetlen közelében, csendes, mégis kiváló közlekedéssel bíró környéken.Telek és
udvar:891 m˛-es bekerített, megosztható telekterületGarázs, több melléképület
tárolásraFúrt kút az öntözéshez, kertgondozáshozRészben térkövezett udvar, ápolt
környezetLakótér jellemzői:Az ingatlan az 1960?70-es években épült, teljeskörűen
felújított77 m˛-es, praktikus elrendezésű, 2 hálószobás otthonÚjszerű
tetőszerkezet, műanyag nyílászárók redőnnyel5 cm homlokzati szigetelés,
légkondicionálóFűtési rendszer:Gáz-cirkó kazánVegyestüzelésű kazán alternatív
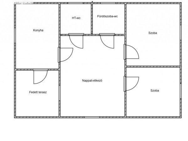
megoldáskéntRadiátoros hőleadás, gazdaságos fenntartásBelső elosztás:Fedett
teraszKonyhaNappali-étkező2 hálószobaHáztartási helyiség + WCZuhanyzós
fürdőszoba WC-velBefektetők figyelem!Az ingatlan jelenleg bérlők által lakott,
így kiváló lehetőség azonnali hozamot kereső befektetőknek, de természetesen
saját célra is ideális választás lehet.Hivatkozási szám: 3297További
információért és megtekintésért keressen bizalommal!
kínálok egy felújított, földszintes, 77 m˛-es családi házat 891 nm
telekterülettel Mosonmagyaróváron, a vasútállomás és az autópálya-felhajtó
közvetlen közelében, csendes, mégis kiváló közlekedéssel bíró környéken.Telek és
udvar:891 m˛-es bekerített, megosztható telekterületGarázs, több melléképület
tárolásraFúrt kút az öntözéshez, kertgondozáshozRészben térkövezett udvar, ápolt
környezetLakótér jellemzői:Az ingatlan az 1960?70-es években épült, teljeskörűen
felújított77 m˛-es, praktikus elrendezésű, 2 hálószobás otthonÚjszerű
tetőszerkezet, műanyag nyílászárók redőnnyel5 cm homlokzati szigetelés,
légkondicionálóFűtési rendszer:Gáz-cirkó kazánVegyestüzelésű kazán alternatív
megoldáskéntRadiátoros hőleadás, gazdaságos fenntartásBelső elosztás:Fedett
teraszKonyhaNappali-étkező2 hálószobaHáztartási helyiség + WCZuhanyzós
fürdőszoba WC-velBefektetők figyelem!Az ingatlan jelenleg bérlők által lakott,
így kiváló lehetőség azonnali hozamot kereső befektetőknek, de természetesen
saját célra is ideális választás lehet.Hivatkozási szám: 3297További
információért és megtekintésért keressen bizalommal!
Részletek...
Adatlap
| Ár: | 64.900.000 Ft |
| Település: | Mosonmagyaróvár |
| A hirdető: | Ingatlaniroda ajánlatából |
| Értékesítés típusa: | Eladó |
| Használtság: | Használt |
| Telek nagysága (m2) : | 891 |
| Épület hasznos területe (m2) : | 77.00 |
| Szobák száma: | 3 |
| Ingatlan állapota: | Normál állapotú |
| Feladás dátuma: | 2026.01.09 |
| Eddig megtekintették 23 alkalommal | |
A hirdető adatai
Kapcsolat a hirdetővel...
Családi házak rovaton belül a(z) "Földszintes, felújított családi ház eladó! - Mosonmagyaróvár" című hirdetést látja. (fent)




























