
Hegyeshalomban két utcáról megközelíthető családi ház 24 fér
Hegyeshalomban két utcáról megközelíthető családi ház 24 férőhelyes,
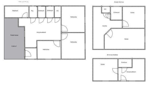
szállásadásra alkalmas-földszinti részen: konyha-étkező, 3 szoba, fürdőszobák,
wc-k-emeleti részen: konyha-étkező, 2 szoba, fürdőszobák, wc-k-az épület melleti
kislakás különálló egységet képez: 26 nm, konyha étkező, fürdő-wc és egy szobaAz
ingatlanhoz jóméretű parkolóhely tartozik az 1100 nm-es udvarban.Rezsiköltsége a
60cm-es falaknak, a szigetelésnek köszönhetően nagyon alacsony, 300 literes
hőszivattyús bojler és 5,4 Kw-os napelem támogatással.
szállásadásra alkalmas-földszinti részen: konyha-étkező, 3 szoba, fürdőszobák,
wc-k-emeleti részen: konyha-étkező, 2 szoba, fürdőszobák, wc-k-az épület melleti
kislakás különálló egységet képez: 26 nm, konyha étkező, fürdő-wc és egy szobaAz
ingatlanhoz jóméretű parkolóhely tartozik az 1100 nm-es udvarban.Rezsiköltsége a
60cm-es falaknak, a szigetelésnek köszönhetően nagyon alacsony, 300 literes
hőszivattyús bojler és 5,4 Kw-os napelem támogatással.
Részletek...
Adatlap
| Ár: | 110.000.000 Ft |
| Település: | Hegyeshalom |
| A hirdető: | Ingatlaniroda ajánlatából |
| Értékesítés típusa: | Eladó |
| Használtság: | Használt |
| Telek nagysága (m2) : | 1100 |
| Épület hasznos területe (m2) : | 157.00 |
| Szobák száma: | 6 |
| Ingatlan állapota: | Felújított |
| Feladás dátuma: | 2026.01.09 |
| Eddig megtekintették 20 alkalommal | |
A hirdető adatai
Kapcsolat a hirdetővel...
Családi házak rovaton belül a(z) "Hegyeshalomban két utcáról megközelíthető családi ház 24 fér" című hirdetést látja. (fent)




























