
Kétszintes családi ház a vasútállomás közelében eladó! - Mos
Mosonmagyaróvár csendes, rendezett részén, kínálunk eladásra egy kiváló
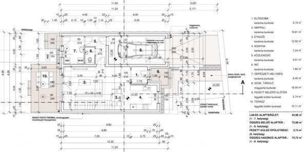
elrendezésű, modern, épülő családi házat, saját kerttel és terasszal.Főbb
paraméterek: Telekterület: 400 m˛ Épület típusa: új építésű, földszint + tetőtér
Lakóterület: kb. 119 m˛ (földszint + tetőtér) Szobák száma: 4 szoba Fűtés:
levegő-víz hőszivattyú Parkolás: saját beálló és garázs Hörmann garázskapuval
Energiahatékony kivitelezés: 15 cm-es ásványgyapot és kiegészítő XPS homlokzati
hőszigetelés, háromrétegű nyílászárók redőnnyelElosztásFöldszint: Előszoba Tágas
nappali és étkező Konyha Közlekedő WC Gépészeti helyiség Fedett belépő Terasz
Garázs (zárt, belső kapcsolattal)Tetőtér: Közlekedő 3 hálószoba Fürdőszoba
Részben ferde tetősíkkal, kellemes belmagasságú szobákMűszaki tartalom és extrák
Tető: BRAMAC Tectura Novo (antracit), kiváló minőségű tetőcserép Nyílászárók:
antracit PVC szerkezet, hőszigetelt üveggel Hőszivattyú: energiatakarékos
levegő?víz rendszer Falazat: Porotherm 25 N+F, vastag hőszigeteléssel Lábazat és
vakolat: BAUMIT rendszer (GranoporTop + SilikonTop) Burkolatok: minőségi
kerámia, laminált padló, kültéren fagyálló lapburkolat Redőnyök: rejtett
redőnyszekrényes megoldással Udvar: térkövezett bejáró,
zöldfelületekkelElhelyezkedés Kiváló infrastruktúra: bolt, iskola, óvoda,
buszmegálló pár perc sétára Csendes mellékutca, rendezett környezet Könnyű
megközelíthetőség, ingyenes parkolás az utcán isHivatkozási szám: 3296
elrendezésű, modern, épülő családi házat, saját kerttel és terasszal.Főbb
paraméterek: Telekterület: 400 m˛ Épület típusa: új építésű, földszint + tetőtér
Lakóterület: kb. 119 m˛ (földszint + tetőtér) Szobák száma: 4 szoba Fűtés:
levegő-víz hőszivattyú Parkolás: saját beálló és garázs Hörmann garázskapuval
Energiahatékony kivitelezés: 15 cm-es ásványgyapot és kiegészítő XPS homlokzati
hőszigetelés, háromrétegű nyílászárók redőnnyelElosztásFöldszint: Előszoba Tágas
nappali és étkező Konyha Közlekedő WC Gépészeti helyiség Fedett belépő Terasz
Garázs (zárt, belső kapcsolattal)Tetőtér: Közlekedő 3 hálószoba Fürdőszoba
Részben ferde tetősíkkal, kellemes belmagasságú szobákMűszaki tartalom és extrák
Tető: BRAMAC Tectura Novo (antracit), kiváló minőségű tetőcserép Nyílászárók:
antracit PVC szerkezet, hőszigetelt üveggel Hőszivattyú: energiatakarékos
levegő?víz rendszer Falazat: Porotherm 25 N+F, vastag hőszigeteléssel Lábazat és
vakolat: BAUMIT rendszer (GranoporTop + SilikonTop) Burkolatok: minőségi
kerámia, laminált padló, kültéren fagyálló lapburkolat Redőnyök: rejtett
redőnyszekrényes megoldással Udvar: térkövezett bejáró,
zöldfelületekkelElhelyezkedés Kiváló infrastruktúra: bolt, iskola, óvoda,
buszmegálló pár perc sétára Csendes mellékutca, rendezett környezet Könnyű
megközelíthetőség, ingyenes parkolás az utcán isHivatkozási szám: 3296
Részletek...
Adatlap
| Ár: | 79.900.000 Ft |
| Település: | Mosonmagyaróvár |
| A hirdető: | Ingatlaniroda ajánlatából |
| Értékesítés típusa: | Eladó |
| Használtság: | Új építésű |
| Telek nagysága (m2) : | 400 |
| Épület hasznos területe (m2) : | 119.00 |
| Szobák száma: | 4 |
| Feladás dátuma: | 2026.01.09 |
| Eddig megtekintették 24 alkalommal | |
A hirdető adatai
Kapcsolat a hirdetővel...
Családi házak rovaton belül a(z) "Kétszintes családi ház a vasútállomás közelében eladó! - Mos" című hirdetést látja. (fent)



























