
Eladó 162 nm-es Újszerű állapotú Családi ház Tabdi Tabdi mel
Kivételes ajánlat! Teljes körűen felújított, kétgenerációs tanya Tabdi
külterületén, aszfaltos út mellettEladásra kínálunk egy stílusosan megújult,
páratlan adottságú tanyát Tabdi külterületén ! ideális választás többgenerációs
családoknak, természetkedvelőknek vagy a városi nyüzsgésből kiszakadni
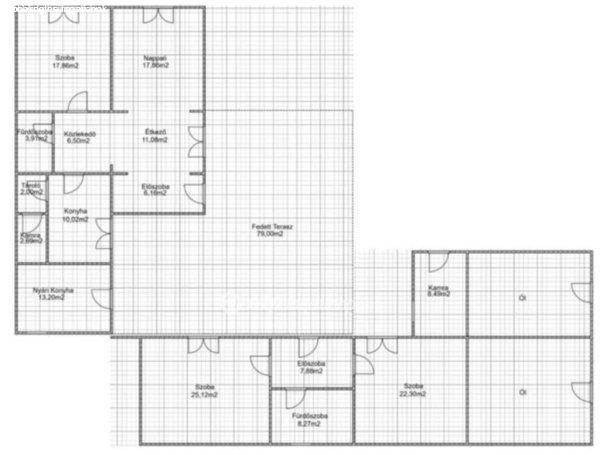
vágyóknak.A 3650 m2-es telken két, külön bejárattal rendelkező lakóépület
található, 91,28 m2 és 72,06 m2 alapterülettel, így összesen 162 m2 kényelmes
lakótér áll rendelkezésre, akár két család számára is.A 2024-ben teljes körűen
felújított ingatlan minden részletében a minőséget tükrözi: új Lindab tető,
megújult víz- és villanyhálózat, korszerű kombi gázkazán és radiátoros
fűtésrendszer biztosítja a modern komfortot.A hőszigetelt, redőnyös műanyag
nyílászárók gondoskodnak az energiatakarékosságról és a kellemes klímáról minden
évszakban.Ami ezt az ingatlant igazán különlegessé teszi:- 79 m2-es, fedett,
térkövezett terasz, tökéletes hely a pihenéshez és baráti
összejövetelekhez- Csend, tér és természet, mégis aszfaltos út mellett- Klíma,
elektromos kapu, ipari áram a modern élet kényelme vidéki környezetben- Fedett
sütögető és jacuzzi a mindennapok luxusa- Könnyűszerkezetes garázs beton
alapon, Hörmann kapuval- A ház részben bútorozva, azonnal költözhető állapotban
eladóEz az ingatlan egyedülálló harmóniát teremt a vidéki nyugalom és a korszerű
életvitel között.Ha minőségre és igényes kialakításra vágyik kompromisszumok
nélkül, ez a tanya Önre vár!További információért és megtekintésért várom
hívását, ne hagyja ki ezt a ritka lehetőséget!
külterületén, aszfaltos út mellettEladásra kínálunk egy stílusosan megújult,
páratlan adottságú tanyát Tabdi külterületén ! ideális választás többgenerációs
családoknak, természetkedvelőknek vagy a városi nyüzsgésből kiszakadni
vágyóknak.A 3650 m2-es telken két, külön bejárattal rendelkező lakóépület
található, 91,28 m2 és 72,06 m2 alapterülettel, így összesen 162 m2 kényelmes
lakótér áll rendelkezésre, akár két család számára is.A 2024-ben teljes körűen
felújított ingatlan minden részletében a minőséget tükrözi: új Lindab tető,
megújult víz- és villanyhálózat, korszerű kombi gázkazán és radiátoros
fűtésrendszer biztosítja a modern komfortot.A hőszigetelt, redőnyös műanyag
nyílászárók gondoskodnak az energiatakarékosságról és a kellemes klímáról minden
évszakban.Ami ezt az ingatlant igazán különlegessé teszi:- 79 m2-es, fedett,
térkövezett terasz, tökéletes hely a pihenéshez és baráti
összejövetelekhez- Csend, tér és természet, mégis aszfaltos út mellett- Klíma,
elektromos kapu, ipari áram a modern élet kényelme vidéki környezetben- Fedett
sütögető és jacuzzi a mindennapok luxusa- Könnyűszerkezetes garázs beton
alapon, Hörmann kapuval- A ház részben bútorozva, azonnal költözhető állapotban
eladóEz az ingatlan egyedülálló harmóniát teremt a vidéki nyugalom és a korszerű
életvitel között.Ha minőségre és igényes kialakításra vágyik kompromisszumok
nélkül, ez a tanya Önre vár!További információért és megtekintésért várom
hívását, ne hagyja ki ezt a ritka lehetőséget!
Részletek...
Adatlap
| Ár: | 139.900.000 Ft |
| Település: | Tabdi |
| A hirdető: | Ingatlaniroda ajánlatából |
| Értékesítés típusa: | Eladó |
| Használtság: | Újszerű |
| Utca: | Tabdi mellett |
| Telek nagysága (m2) : | 957 |
| Épület hasznos területe (m2) : | 162 |
| Szobák száma: | 4 |
| Fűtés: | Házközponti fűtéses (egyedi méréssel) |
| Feladás dátuma: | 2025.11.10 |
| Eddig megtekintették 9 alkalommal | |
A hirdető adatai
Kapcsolat a hirdetővel...
Családi házak rovaton belül a(z) "Eladó 162 nm-es Újszerű állapotú Családi ház Tabdi Tabdi mel" című hirdetést látja. (fent)




























