
Eladó 83.00 nm-es Új építésű Ikerház Sé
Új építésű ikerház Sében ? modern otthon, nyugodt környezetben.Sé egyik
legkedveltebb, újonnan beépülő részén valósul meg ez a modern, téglaépítésű
ikerház, amely 2026-ban költözhető.A két ház egymáshoz csak a garázsoknál
kapcsolódik, így a lakóterek között nincs közös fal, a nyugalom és a privát
szféra teljesen biztosított.A két ikerház közül a hátsó már gazdára talált, az
utcafronti egység még elérhető ?ugyanazzal a gondos kivitelezéssel és modern
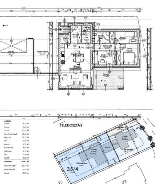
felszereltséggel, amit a vevők már az előző háznál is megkedveltek.A 83 m˛-es
(nettó) otthonban nappali és három hálószoba kapott helyet, amit 18 m˛-es
terasz, fedett előtér és 23 m˛-es autóbeálló egészít ki. A 420 m˛-es saját telek
kényelmes méretű kertet kínál, ahol bőven jut hely pihenésre és játékra is.A ház
modern hőszivattyús fűtésrendszerrel és padlófűtéssel készül, így a rezsi
alacsony, a komfort pedig maximális lesz. A háromrétegű nyílászárók, a 15 cm
vastag homlokzati hőszigetelés és a 30 cm tetőszigetelés tovább növelik az
energiahatékonyságot.A Terrán tetőcserép, az antracit színű bádogozás és a
gondosan megválasztott burkolatok időtálló, modern megjelenést biztosítanak.A
vevők igénye szerint választhatók a burkolatok és a beltéri ajtók, így minden
apró részletben személyre szabható az otthon.Ha egy nyugodt, zöldövezeti
környezetben épülő, modern otthont keresel Sében, ahol a minőség és a kényelem
is kézzel fogható, ez a ház tökéletes választás lehet.Bővebb információt a
megadott telefonszámon kérhet!
legkedveltebb, újonnan beépülő részén valósul meg ez a modern, téglaépítésű
ikerház, amely 2026-ban költözhető.A két ház egymáshoz csak a garázsoknál
kapcsolódik, így a lakóterek között nincs közös fal, a nyugalom és a privát
szféra teljesen biztosított.A két ikerház közül a hátsó már gazdára talált, az
utcafronti egység még elérhető ?ugyanazzal a gondos kivitelezéssel és modern
felszereltséggel, amit a vevők már az előző háznál is megkedveltek.A 83 m˛-es
(nettó) otthonban nappali és három hálószoba kapott helyet, amit 18 m˛-es
terasz, fedett előtér és 23 m˛-es autóbeálló egészít ki. A 420 m˛-es saját telek
kényelmes méretű kertet kínál, ahol bőven jut hely pihenésre és játékra is.A ház
modern hőszivattyús fűtésrendszerrel és padlófűtéssel készül, így a rezsi
alacsony, a komfort pedig maximális lesz. A háromrétegű nyílászárók, a 15 cm
vastag homlokzati hőszigetelés és a 30 cm tetőszigetelés tovább növelik az
energiahatékonyságot.A Terrán tetőcserép, az antracit színű bádogozás és a
gondosan megválasztott burkolatok időtálló, modern megjelenést biztosítanak.A
vevők igénye szerint választhatók a burkolatok és a beltéri ajtók, így minden
apró részletben személyre szabható az otthon.Ha egy nyugodt, zöldövezeti
környezetben épülő, modern otthont keresel Sében, ahol a minőség és a kényelem
is kézzel fogható, ez a ház tökéletes választás lehet.Bővebb információt a
megadott telefonszámon kérhet!
Részletek...
Adatlap
| Ár: | 79.100.000 Ft |
| Település: | Sé |
| A hirdető: | Ingatlaniroda ajánlatából |
| Értékesítés típusa: | Eladó |
| Használtság: | Új építésű |
| Telek nagysága (m2) : | 420 |
| Épület hasznos területe (m2) : | 83.00 |
| Szobák száma: | 1 |
| Félszobák száma: | 3 |
| Feladás dátuma: | 2026.03.17 |
| Eddig megtekintették 62 alkalommal | |
A hirdető adatai
Kapcsolat a hirdetővel...
Családi házak rovaton belül a(z) "Eladó 83.00 nm-es Új építésű Ikerház Sé" című hirdetést látja. (fent)




























