
Eladó 150m2-es Ikerház, Gödöllő
Gödöllő egyik legkeresettebb részén az Alvégen, megbízható kivitelező
által épülő teljesen elszeparált, még egyedileg alakítható, variálható elosztású
garázsösszeköttetéses ikerházfél eladó!Műszaki paraméterek:- 30-as Porotherm
X-Therm tégla falazat + 15cm grafit homlokzati szigetelés,- betonfödém,- Bramac
cserépfedés,- antracit színű alumínium fekvőeresz csatorna és lefolyó rendszer,-
tetőtérben 20cm vastag üveggyapot szigetelés,- 3 réteg üvegezésű, 5 légkamrás
műanyag nyílászárók,- 5 ponton záródó hőszigetelt ajtó,- hőszivattyú
padlófűtéssel, fürdőkben kiegészítő törölközőszárítókkal,- nincs közös falrész,
a két oldalt egy-egy garázs köti össze.Ár tartalmazza:- beltéri ajtókat
60.000.-Ft/db,- hidegburkolatokat 6.500.-Ft/nm,- melegburkolatokat
6.000.-Ft/nm, - kádat 60.000.-Ft/db,- kádtöltő csaptelepet 25.000.-Ft/db,-
zuhany csaptelepet 25.000.-Ft/db,- mosdó csaptelepeket 15.000.-Ft/db,-
standardmosdókat 20.000.-Ft/db,- tartályos WC-t 35.000.-Ft/db
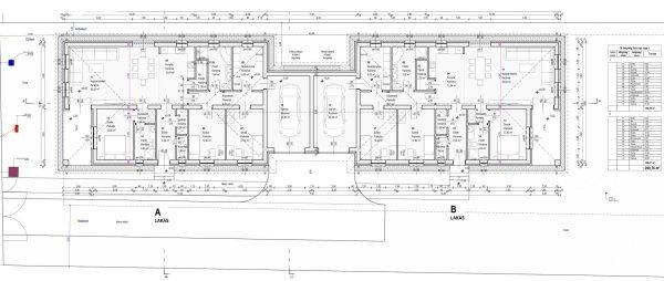
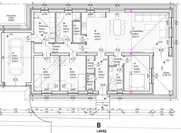
értékben.Elosztás:- Előtér, nappali-konyha-étkező, kamra/tároló, 3 szoba,
gardrób, közlekedő, két fürdő, vendégmosdó, mosókonyha + 10,35nm terasz és
21nm-es garázs.- Igény esetén még 4 vagy 5 szobás elosztással is kérhető!Telek:-
Az ingatlan a telek hátsó felében helyezkedik el, teljesen elszeparáltan, saját
lekerített telekrésze 1300nm.Környék:- Nagyon jó környék, csendes zsákutca.-
Vonatállomás, buszmegálló, HÉV, iskola, posta, gyógyszertár stb. gyalog 15-20
perc alatt könnyen elérhető.Az ingatlant számos referenciával rendelkező,
megbízható kivitelező építi! Burkolatok, belső ajtók a vevői igényei szerint még
szabadon választhatók!Komoly érdeklődés esetén a referencia házak személyesen is
megtekinthetők!Kérésre teljes műszaki tartalmat, alaprajzot szívesen
küldünk!Irányár:137,9MftHivatkozási szám: 2518215.Megtekinthető telefonos
időpont egyeztetés alapján:Sápi Balázs +36 20 772-2429
sapibalazs@godolloi.hu GÖDÖLLŐ INGATLANKÖZPONT - www.godolloi.hu: Gödöllő és
környéke legnagyobb ingatlan választéka /Gödöllő, Szada, Veresegyház, Kistarcsa,
Kerepes, Erdőkertes, Fót, Dunakeszi/ eladó-kiadó családi ház, telek, laká
által épülő teljesen elszeparált, még egyedileg alakítható, variálható elosztású
garázsösszeköttetéses ikerházfél eladó!Műszaki paraméterek:- 30-as Porotherm
X-Therm tégla falazat + 15cm grafit homlokzati szigetelés,- betonfödém,- Bramac
cserépfedés,- antracit színű alumínium fekvőeresz csatorna és lefolyó rendszer,-
tetőtérben 20cm vastag üveggyapot szigetelés,- 3 réteg üvegezésű, 5 légkamrás
műanyag nyílászárók,- 5 ponton záródó hőszigetelt ajtó,- hőszivattyú
padlófűtéssel, fürdőkben kiegészítő törölközőszárítókkal,- nincs közös falrész,
a két oldalt egy-egy garázs köti össze.Ár tartalmazza:- beltéri ajtókat
60.000.-Ft/db,- hidegburkolatokat 6.500.-Ft/nm,- melegburkolatokat
6.000.-Ft/nm, - kádat 60.000.-Ft/db,- kádtöltő csaptelepet 25.000.-Ft/db,-
zuhany csaptelepet 25.000.-Ft/db,- mosdó csaptelepeket 15.000.-Ft/db,-
standardmosdókat 20.000.-Ft/db,- tartályos WC-t 35.000.-Ft/db
értékben.Elosztás:- Előtér, nappali-konyha-étkező, kamra/tároló, 3 szoba,
gardrób, közlekedő, két fürdő, vendégmosdó, mosókonyha + 10,35nm terasz és
21nm-es garázs.- Igény esetén még 4 vagy 5 szobás elosztással is kérhető!Telek:-
Az ingatlan a telek hátsó felében helyezkedik el, teljesen elszeparáltan, saját
lekerített telekrésze 1300nm.Környék:- Nagyon jó környék, csendes zsákutca.-
Vonatállomás, buszmegálló, HÉV, iskola, posta, gyógyszertár stb. gyalog 15-20
perc alatt könnyen elérhető.Az ingatlant számos referenciával rendelkező,
megbízható kivitelező építi! Burkolatok, belső ajtók a vevői igényei szerint még
szabadon választhatók!Komoly érdeklődés esetén a referencia házak személyesen is
megtekinthetők!Kérésre teljes műszaki tartalmat, alaprajzot szívesen
küldünk!Irányár:137,9MftHivatkozási szám: 2518215.Megtekinthető telefonos
időpont egyeztetés alapján:Sápi Balázs +36 20 772-2429
sapibalazs@godolloi.hu GÖDÖLLŐ INGATLANKÖZPONT - www.godolloi.hu: Gödöllő és
környéke legnagyobb ingatlan választéka /Gödöllő, Szada, Veresegyház, Kistarcsa,
Kerepes, Erdőkertes, Fót, Dunakeszi/ eladó-kiadó családi ház, telek, laká
Részletek...
Adatlap
| Ár: | 137.900.000 Ft |
| Település: | Gödöllő |
| A hirdető: | Ingatlaniroda ajánlatából |
| Értékesítés típusa: | Eladó |
| Telek nagysága (m2) : | 1 300 |
| Épület hasznos területe (m2) : | 150 |
| Szobák száma: | 4 |
| Komfort: | Duplakomfortos |
| Ingatlan állapota: | Normál állapotú |
| Anyaga: | Tégla |
| A hirdető kérése: | Ingatlanközvetítő vagyok - keresse fel Irodánkat! |
| Feladás dátuma: | 2026.01.16 |
| Eddig megtekintették 22 alkalommal | |
A hirdető adatai
Kapcsolat a hirdetővel...
Családi házak rovaton belül a(z) "Eladó 150m2-es Ikerház, Gödöllő" című hirdetést látja. (fent)




























