
Siófok Foki-hegy városrészén eladó új építésű ikerházfél
Siófok kedvelt Foki-hegy városrészében kínálom megvételre ezt az új építésű,
igényes kivitelezésű ikerházfelet, amely a Balaton déli partjának egyik
dinamikusan fejlődő környezetében helyezkedik el, 432 nm-es, saját használatú
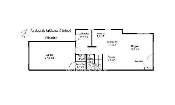
telekrészen, befejezett állapotban. Az ingatlan földszintjén tágas, amerikai
konyhás nappali, emellett háztartási helyiség és éléskamra szolgálja a
mindennapi kényelmet, míg az emeleti szinten három különálló hálószoba és három,
magas műszaki tartalommal megvalósított fürdőszoba került kialakításra, továbbá
lehetőség nyílik egy különálló, teljes értékű lakrész kialakítására is, akár
kétgenerációs felhasználás céljából.Az épület megtervezése során a kivitelező
nagy hangsúlyt fektetett a minőségi alapanyagokra, amelyet a duplasoros SILKA
hangszigetelő falazat, a porotherm 30-as külső falazat 15 cm hőszigeteléssel,
valamint a háromrétegű üvegezésű nyílászárók is bizonyítanak. Az otthon
komfortját a gázkazános padlófűtés, a négy darab hőszivattyús hűtő-fűtő klíma, a
nappaliban található exkluzív, fatüzelésű kandalló, továbbá az elektromos
redőnyökkel felszerelt nyílászárók, illetve az elektromos működtetésű garázs- és
kertkapuk biztosítják, miközben a földszinti garázs mellett külön második
gépkocsi-beállási lehetőség is rendelkezésre áll.A három terasz - a Balatonra
néző nyugati emeleti terasz, a hátsó emeleti pihenőrész, valamint a földszinti
kertkapcsolatos terasz - kivételes lehetőséget nyújt a pihenésre és a balatoni
hangulat mindennapos megélésére. Az ingatlan rendelkezik használatbavételi
engedéllyel, tehermentes, azonnal birtokba vehető, így akár állandó lakhatásra,
akár nyaralóként is ideális választás lehet, ráadásul az ikerház másik fele
szintén elérhető azon érdeklődők számára, akik nagyobb családi vagy befektetési
célban gondolkodnak. A közelben általános iskola és hipermarket is megtalálható,
ami tovább növeli a lokáció értékét. Az OTP Bank stabil hátterének köszönhetően
kollégáink díjmentes, személyre szabott hitel- és támogatási tanácsadással és
ügyintézéssel állnak rendelkezésére.Megtekintés egyeztetéséhez várom megtisztelő
hívását.
igényes kivitelezésű ikerházfelet, amely a Balaton déli partjának egyik
dinamikusan fejlődő környezetében helyezkedik el, 432 nm-es, saját használatú
telekrészen, befejezett állapotban. Az ingatlan földszintjén tágas, amerikai
konyhás nappali, emellett háztartási helyiség és éléskamra szolgálja a
mindennapi kényelmet, míg az emeleti szinten három különálló hálószoba és három,
magas műszaki tartalommal megvalósított fürdőszoba került kialakításra, továbbá
lehetőség nyílik egy különálló, teljes értékű lakrész kialakítására is, akár
kétgenerációs felhasználás céljából.Az épület megtervezése során a kivitelező
nagy hangsúlyt fektetett a minőségi alapanyagokra, amelyet a duplasoros SILKA
hangszigetelő falazat, a porotherm 30-as külső falazat 15 cm hőszigeteléssel,
valamint a háromrétegű üvegezésű nyílászárók is bizonyítanak. Az otthon
komfortját a gázkazános padlófűtés, a négy darab hőszivattyús hűtő-fűtő klíma, a
nappaliban található exkluzív, fatüzelésű kandalló, továbbá az elektromos
redőnyökkel felszerelt nyílászárók, illetve az elektromos működtetésű garázs- és
kertkapuk biztosítják, miközben a földszinti garázs mellett külön második
gépkocsi-beállási lehetőség is rendelkezésre áll.A három terasz - a Balatonra
néző nyugati emeleti terasz, a hátsó emeleti pihenőrész, valamint a földszinti
kertkapcsolatos terasz - kivételes lehetőséget nyújt a pihenésre és a balatoni
hangulat mindennapos megélésére. Az ingatlan rendelkezik használatbavételi
engedéllyel, tehermentes, azonnal birtokba vehető, így akár állandó lakhatásra,
akár nyaralóként is ideális választás lehet, ráadásul az ikerház másik fele
szintén elérhető azon érdeklődők számára, akik nagyobb családi vagy befektetési
célban gondolkodnak. A közelben általános iskola és hipermarket is megtalálható,
ami tovább növeli a lokáció értékét. Az OTP Bank stabil hátterének köszönhetően
kollégáink díjmentes, személyre szabott hitel- és támogatási tanácsadással és
ügyintézéssel állnak rendelkezésére.Megtekintés egyeztetéséhez várom megtisztelő
hívását.
Részletek...
Adatlap
| Ár: | 134.900.000 Ft |
| Település: | Siófok |
| A hirdető: | Ingatlaniroda ajánlatából |
| Értékesítés típusa: | Eladó |
| Használtság: | Új építésű |
| Telek nagysága (m2) : | 432 |
| Épület hasznos területe (m2) : | 139.00 |
| Szobák száma: | 4 |
| Komfort: | Összkomfortos |
| Fűtés: | Házközponti fűtéses (egyedi méréssel) |
| Feladás dátuma: | 2026.04.23 |
| Eddig megtekintették 53 alkalommal | |
A hirdető adatai
Kapcsolat a hirdetővel...
Családi házak rovaton belül a(z) "Siófok Foki-hegy városrészén eladó új építésű ikerházfél" című hirdetést látja. (fent)




























