
Eladó ikerház Budapest, X. kerület, Szőlőtelep utca
Új építésű, kétszintes ikerház prémium felszereltséggel és bútorzattalCsendes
környezet ? Magas minőségű kivitelezés ? Teljes digitális átláthatóság!Budapest
X. kerületének egyik legnyugodtabb mellékutcájában, kiváló közlekedési és
infrastrukturális adottságok mellett készül ez a korszerű, kétszintes ikerház.Az
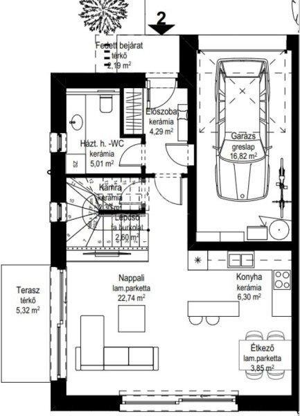
építkezés teljes folyamata átláthatóan nyomon követhető!Főbb adatokHasznos
alapterület: 122 m˛Telekméret: 231 m˛ saját kerttelSzintek száma: földszint +
emeletHálószobák: 3 külön nyíló szobaFürdőszobák: összesen 3 (2 az emeleten, 1 a
földszinten)Nappali: 33 m˛-es amerikai konyhás tér, közvetlen
teraszkapcsolattalParkolás: fedett garázs, nagyobb méretű autó számára is
ideálisMűszaki felszereltségPOROTHERM 30 N+F téglafalak, monolit vasbeton
födémszerkezet15 cm homlokzati EPS hőszigetelés + 20 cm
födémszigetelésHőszivattyúval működő mennyezeti fűtés és hűtés3 rétegű
hőszigetelt nyílászárók és biztonsági bejárati ajtóLaminált parketta és kerámia
burkolatok kombinációjaTerrán Zenit Max Carbon tetőcserépKiemelt extrákKomplett
okosotthon rendszerMotoros alumínium redőnyökKamera- és riasztórendszer
előkészítésVideó kaputelefonElektromos kapu és autótöltési lehetőségAutomata
kertöntözőWPC kerítés, rejtett világítás, kültéri lámpatestekLégtechnikai
rendszer kiépítveDigitális projektkövetés ? PlanRadarA vásárló:Élőben követheti
az építkezés előrehaladását telefononKéthetente részletes fotódokumentációt
kapAz átadáskor digitálisan megkap minden szükséges hivatalos dokumentumot
(garanciák, tervrajzok, jegyzőkönyvek)Finanszírozási lehetőségek tárházaHitelből
is megvásárolhatóDíjmentes hitelügyintézés minden hazai bank feléElérhető
aktuális állami támogatásokVárható átadás: 2026. III. negyedévEz az ingatlan
ideális választás mindazok számára, akik modern, biztonságos és kényelmes
otthont szeretnének. Ne hagyja ki ezt a kivételes lehetőséget!ID: 390189
...TOVÁBBI, TÖBBEZRES INGATLAN KÍNÁLAT: www.gdn-ingatlan.hu - GDN azonosító:
390189
környezet ? Magas minőségű kivitelezés ? Teljes digitális átláthatóság!Budapest
X. kerületének egyik legnyugodtabb mellékutcájában, kiváló közlekedési és
infrastrukturális adottságok mellett készül ez a korszerű, kétszintes ikerház.Az
építkezés teljes folyamata átláthatóan nyomon követhető!Főbb adatokHasznos
alapterület: 122 m˛Telekméret: 231 m˛ saját kerttelSzintek száma: földszint +
emeletHálószobák: 3 külön nyíló szobaFürdőszobák: összesen 3 (2 az emeleten, 1 a
földszinten)Nappali: 33 m˛-es amerikai konyhás tér, közvetlen
teraszkapcsolattalParkolás: fedett garázs, nagyobb méretű autó számára is
ideálisMűszaki felszereltségPOROTHERM 30 N+F téglafalak, monolit vasbeton
födémszerkezet15 cm homlokzati EPS hőszigetelés + 20 cm
födémszigetelésHőszivattyúval működő mennyezeti fűtés és hűtés3 rétegű
hőszigetelt nyílászárók és biztonsági bejárati ajtóLaminált parketta és kerámia
burkolatok kombinációjaTerrán Zenit Max Carbon tetőcserépKiemelt extrákKomplett
okosotthon rendszerMotoros alumínium redőnyökKamera- és riasztórendszer
előkészítésVideó kaputelefonElektromos kapu és autótöltési lehetőségAutomata
kertöntözőWPC kerítés, rejtett világítás, kültéri lámpatestekLégtechnikai
rendszer kiépítveDigitális projektkövetés ? PlanRadarA vásárló:Élőben követheti
az építkezés előrehaladását telefononKéthetente részletes fotódokumentációt
kapAz átadáskor digitálisan megkap minden szükséges hivatalos dokumentumot
(garanciák, tervrajzok, jegyzőkönyvek)Finanszírozási lehetőségek tárházaHitelből
is megvásárolhatóDíjmentes hitelügyintézés minden hazai bank feléElérhető
aktuális állami támogatásokVárható átadás: 2026. III. negyedévEz az ingatlan
ideális választás mindazok számára, akik modern, biztonságos és kényelmes
otthont szeretnének. Ne hagyja ki ezt a kivételes lehetőséget!ID: 390189
...TOVÁBBI, TÖBBEZRES INGATLAN KÍNÁLAT: www.gdn-ingatlan.hu - GDN azonosító:
390189
Részletek...
Adatlap
| Ár: | 159.900.000 Ft |
| Település: | X. kerület |
| A hirdető: | Ingatlaniroda ajánlatából |
| Értékesítés típusa: | Eladó |
| Használtság: | Új építésű |
| Utca: | Szőlőtelep utca |
| Telek nagysága (m2) : | 231 |
| Épület hasznos területe (m2) : | 130 |
| Szobák száma: | 4 |
| Anyaga: | Tégla |
| A hirdető kérése: | Ingatlanközvetítő vagyok - keresse fel Irodánkat! |
| Feladás dátuma: | 2025.12.31 |
| Eddig megtekintették 19 alkalommal | |
A hirdető adatai
Kapcsolat a hirdetővel...
Családi házak rovaton belül a(z) "Eladó ikerház Budapest, X. kerület, Szőlőtelep utca" című hirdetést látja. (fent)




























