
Eladó családi ház Sülysáp, Határ út
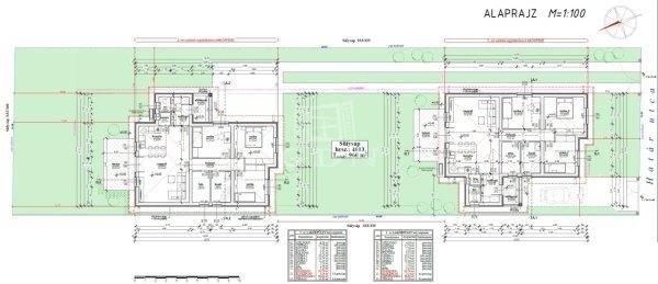
Sülysápon a Határ úton 960 m2-es telken, 93,76 m2-es három szoba + amerikai
konyhás nappalival rendelkező, energiahatékony családi házak eladók!Az építkezés
December 11.-én megkezdődött a beton sávalap, a zsalukövezés és a szerlőbeton
kialakításra került.A Határ út Sülysáp Kóka felőli utolsó utcája, mégis közel
van a központhoz. A telekről csodálataos panoráma nyílik a mögötte elhelyezkedő
szántóra és az erdőre.Az első ingatlan 438 m2-es kizárólagos használatú
telekrésszel kerül kialakításra. Vételára: 69.900.000.- Ft.A hátsó ingatlan egy
3 méter széles a telek jobb oldalán kialakított úton lesz megközelíthető, 522
m2 telekrésszel fog rendelkezni., vételára: 74.900.000.- Ft.A tartószerkezeti
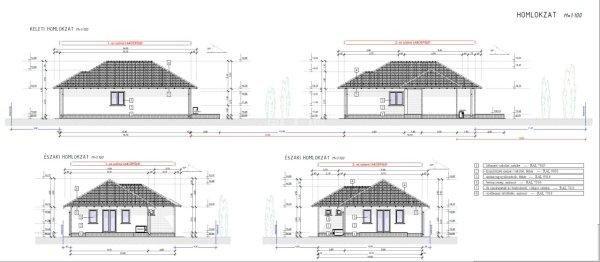
falak Porotherm P30N+F téglából, betonkoszorúval, fa födémes tetőszerkezettel
készülnek. A lábazat 10 cm polisztirol lépésálló, a homlokzatok 15cm-es EPS, a
vízszintes födém 25 cm ásványgyapot szigeteléssel lesz ellátva.Három rétegű
üvegekkel szerelt, hat légkamrás műanyag thermo nyílászárók kerülnek
beépítésre.A minimális energiaigényt a megfelelő szigetelésen kívül a megújuló
energiát használó gépészet is biztosítja. A fűtést levegő-víz hőszivattyús
rendszer fogja végezni.Burkolatok , szaniterek, belső ajtók, csaptelepek
választhatóak a következő értékhatárig:-Hidegburkolat: 3000
Ft.-/m2-Melegburkolat: 3000 Ft.-/m2-Beltéri ajtók: 30.000.Ft.-/db-Fürdőkád:
40.000.- Ft.--Csaptelepek: 15000.- Ft.-/dbMagasabb árú választás is lehetséges,
a különbség finanszírozásával.A kivitelező korábban az utcában épített 6
ingatlant melyeket már birtokba adtuk, komoly érdeklődés esetén szívesen
megmutatjuk őket referenciaként.Központi elhelyezkedésének köszönhetően a
közelben megtalálhatóak:-óvoda 400m-Móra Ferenc általános iskola 700m-Tesco
800m-Vasútállomás 550m-Polgármesteri hivatal 750m-Sülysáp 1-es Posta
750m-Sülysáp Városi Piac 1kmCsok plusz igényelhető!Tervezett átadás 2026 második
negyedév.Érdeklődő ügyfeleinknek a tervdokumetációt és a műszaki tartalmat
készséggel rendelkezésre bocsájtjuk.INGYENES hitel tanácsadás, CSOK Plusz
ügyintézés!BANKFÜGGETLEN hitelcentrumunk az összes elérhető bank és hitelintézet
ajánlatát versenyezteti az Ön kedvéért, ráadásul DÍJMENTESEN.- Egyedi,
bankfiókban nem elérhető kamat- és díjkedvezmények- Hitelképesség vizsgálat-
Idő, energia és pénz megtakarítás- Teljes hivatali ügyintézésAmennyiben
hirdetésem felkeltette az érdeklődését vagy egyéb információra van szüksége
hívjon bizalommal! ...TOVÁBBI, TÖBBEZRES INGATLAN KÍNÁLAT: www.gdn-ingatlan.hu -
GDN azonosító: 390206
konyhás nappalival rendelkező, energiahatékony családi házak eladók!Az építkezés
December 11.-én megkezdődött a beton sávalap, a zsalukövezés és a szerlőbeton
kialakításra került.A Határ út Sülysáp Kóka felőli utolsó utcája, mégis közel
van a központhoz. A telekről csodálataos panoráma nyílik a mögötte elhelyezkedő
szántóra és az erdőre.Az első ingatlan 438 m2-es kizárólagos használatú
telekrésszel kerül kialakításra. Vételára: 69.900.000.- Ft.A hátsó ingatlan egy
3 méter széles a telek jobb oldalán kialakított úton lesz megközelíthető, 522
m2 telekrésszel fog rendelkezni., vételára: 74.900.000.- Ft.A tartószerkezeti
falak Porotherm P30N+F téglából, betonkoszorúval, fa födémes tetőszerkezettel
készülnek. A lábazat 10 cm polisztirol lépésálló, a homlokzatok 15cm-es EPS, a
vízszintes födém 25 cm ásványgyapot szigeteléssel lesz ellátva.Három rétegű
üvegekkel szerelt, hat légkamrás műanyag thermo nyílászárók kerülnek
beépítésre.A minimális energiaigényt a megfelelő szigetelésen kívül a megújuló
energiát használó gépészet is biztosítja. A fűtést levegő-víz hőszivattyús
rendszer fogja végezni.Burkolatok , szaniterek, belső ajtók, csaptelepek
választhatóak a következő értékhatárig:-Hidegburkolat: 3000
Ft.-/m2-Melegburkolat: 3000 Ft.-/m2-Beltéri ajtók: 30.000.Ft.-/db-Fürdőkád:
40.000.- Ft.--Csaptelepek: 15000.- Ft.-/dbMagasabb árú választás is lehetséges,
a különbség finanszírozásával.A kivitelező korábban az utcában épített 6
ingatlant melyeket már birtokba adtuk, komoly érdeklődés esetén szívesen
megmutatjuk őket referenciaként.Központi elhelyezkedésének köszönhetően a
közelben megtalálhatóak:-óvoda 400m-Móra Ferenc általános iskola 700m-Tesco
800m-Vasútállomás 550m-Polgármesteri hivatal 750m-Sülysáp 1-es Posta
750m-Sülysáp Városi Piac 1kmCsok plusz igényelhető!Tervezett átadás 2026 második
negyedév.Érdeklődő ügyfeleinknek a tervdokumetációt és a műszaki tartalmat
készséggel rendelkezésre bocsájtjuk.INGYENES hitel tanácsadás, CSOK Plusz
ügyintézés!BANKFÜGGETLEN hitelcentrumunk az összes elérhető bank és hitelintézet
ajánlatát versenyezteti az Ön kedvéért, ráadásul DÍJMENTESEN.- Egyedi,
bankfiókban nem elérhető kamat- és díjkedvezmények- Hitelképesség vizsgálat-
Idő, energia és pénz megtakarítás- Teljes hivatali ügyintézésAmennyiben
hirdetésem felkeltette az érdeklődését vagy egyéb információra van szüksége
hívjon bizalommal! ...TOVÁBBI, TÖBBEZRES INGATLAN KÍNÁLAT: www.gdn-ingatlan.hu -
GDN azonosító: 390206
Részletek...
Adatlap
| Ár: | 69.900.000 Ft |
| Település: | Sülysáp |
| A hirdető: | Ingatlaniroda ajánlatából |
| Értékesítés típusa: | Eladó |
| Használtság: | Új építésű |
| Utca: | Határ út |
| Telek nagysága (m2) : | 522 |
| Épület hasznos területe (m2) : | 94 |
| Szobák száma: | 4 |
| Anyaga: | Tégla |
| A hirdető kérése: | Ingatlanközvetítő vagyok - keresse fel Irodánkat! |
| Feladás dátuma: | 2025.12.31 |
| Eddig megtekintették 16 alkalommal | |
A hirdető adatai
Kapcsolat a hirdetővel...
Családi házak rovaton belül a(z) "Eladó családi ház Sülysáp, Határ út" című hirdetést látja. (fent)




























