
Ballószög, 75 m2, 55000000 HUF, 3 szoba [2870_1331]
Eladó új-építésű ház BallószögAz ár kulcsrakész állapotban történő átadással
értendő és a telek árát is tartalmazza!Eladásra kínálunk egy napelemmel
felszerelt 75 m2-es családi ház projektet Ballószög új-építésű részén 541 m2-es
közművesített telken. Mire elég a házra felszerelt napelem? A teljes ház egész
évben történő felfűtéséhez 21-22°C-on tartva. A további felszabadult energiát a
rendszer visszatölti az áramhálózatba, melynek okán további 40-60%-os áramszámla
csökkenés, vagy akár teljes energiamentesség eredményezhető.Az elkészülési idő
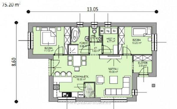
garantált 10 hónap!A családi ház nettó alapterülete 75 m2, amely tartalmaz:? 3
szobát (amerikai konyha-nappali-étkező + 2 hálószoba);? 1 fürdőszobát;? 1 WC-t;?
kamrát;? háztartási helyiséget;? és egy előszobát.Műszaki tartalom:? Teherhordó
falazat: Wienerberger Profi 30 K klíma tégla? Homlokzati hőszigetelés: 15 cm
homlokzati hőszigetelés? Tetőhéjazat: Bramac vagy Terrán tetőcserép? Külső
nyílászárók: 3 réteg üvegezésű 6 légkamrás Marshall Gealan külső nyílászárók?
Válaszfal: Isover Akusto hangszigetelt válaszfalak? Gépészet:(a) Napelem** + gáz
fűtés Ariston CLAS ONE 24 kW vagy Bosch Condens 3000 24 kW kondenzációs gázkazán
(padlófűtéssel)(b) Napelem** + infra fűtés (padlófűtéssel)? Hidegburkolat
választható: 8.500 Ft / m2 (bruttó)? Melegburkolat választható: 6.500 Ft / m2
(bruttó)? Szaniterek választható: (kád, zuhanykabin, csaptelep stb.)
600.000Ft-ig*Az ár kulcsrakész állapotban történő átadással értendő, konyhabútor
és lámpatestek nélkül!**A napelem mennyisége az épület hasznos területének
függvénye!Használja ki Ön is a Babaváró hitel nyújtotta lehetőségeket! Keressen
ingyenes tanácsadásért hogy megtudjuk pontosan milyen lehetőségei vannak az
otthon teremtésre!Ha a neten nem találja álmai otthonát, ne aggódjon, mi
megtaláljuk Önnek! Amennyiben finanszírozásra is szüksége van a vásárláshoz,
vagy ÁLLAMI TÁMOGATÁST is szeretne kapni, esetleg CSOK-ot vagy BABAVÁRÓ-t
igényelne, ne aggódjon, BANKCENTRUMUNK 30 bank ajánlatából kiválasztja Önnek a
LEGJOBB megoldást! Ami megoldható azt mi megoldjuk!Hívjon bizalommal!Horváth
JózsefprojektmenedzserKMUJ809/16
értendő és a telek árát is tartalmazza!Eladásra kínálunk egy napelemmel
felszerelt 75 m2-es családi ház projektet Ballószög új-építésű részén 541 m2-es
közművesített telken. Mire elég a házra felszerelt napelem? A teljes ház egész
évben történő felfűtéséhez 21-22°C-on tartva. A további felszabadult energiát a
rendszer visszatölti az áramhálózatba, melynek okán további 40-60%-os áramszámla
csökkenés, vagy akár teljes energiamentesség eredményezhető.Az elkészülési idő
garantált 10 hónap!A családi ház nettó alapterülete 75 m2, amely tartalmaz:? 3
szobát (amerikai konyha-nappali-étkező + 2 hálószoba);? 1 fürdőszobát;? 1 WC-t;?
kamrát;? háztartási helyiséget;? és egy előszobát.Műszaki tartalom:? Teherhordó
falazat: Wienerberger Profi 30 K klíma tégla? Homlokzati hőszigetelés: 15 cm
homlokzati hőszigetelés? Tetőhéjazat: Bramac vagy Terrán tetőcserép? Külső
nyílászárók: 3 réteg üvegezésű 6 légkamrás Marshall Gealan külső nyílászárók?
Válaszfal: Isover Akusto hangszigetelt válaszfalak? Gépészet:(a) Napelem** + gáz
fűtés Ariston CLAS ONE 24 kW vagy Bosch Condens 3000 24 kW kondenzációs gázkazán
(padlófűtéssel)(b) Napelem** + infra fűtés (padlófűtéssel)? Hidegburkolat
választható: 8.500 Ft / m2 (bruttó)? Melegburkolat választható: 6.500 Ft / m2
(bruttó)? Szaniterek választható: (kád, zuhanykabin, csaptelep stb.)
600.000Ft-ig*Az ár kulcsrakész állapotban történő átadással értendő, konyhabútor
és lámpatestek nélkül!**A napelem mennyisége az épület hasznos területének
függvénye!Használja ki Ön is a Babaváró hitel nyújtotta lehetőségeket! Keressen
ingyenes tanácsadásért hogy megtudjuk pontosan milyen lehetőségei vannak az
otthon teremtésre!Ha a neten nem találja álmai otthonát, ne aggódjon, mi
megtaláljuk Önnek! Amennyiben finanszírozásra is szüksége van a vásárláshoz,
vagy ÁLLAMI TÁMOGATÁST is szeretne kapni, esetleg CSOK-ot vagy BABAVÁRÓ-t
igényelne, ne aggódjon, BANKCENTRUMUNK 30 bank ajánlatából kiválasztja Önnek a
LEGJOBB megoldást! Ami megoldható azt mi megoldjuk!Hívjon bizalommal!Horváth
JózsefprojektmenedzserKMUJ809/16
Részletek...
Adatlap
| Ár: | 55.000.000 Ft |
| Település: | Ballószög |
| A hirdető: | Ingatlaniroda ajánlatából |
| Értékesítés típusa: | Eladó |
| Használtság: | Új építésű |
| Utca: | Ballószög |
| Telek nagysága (m2) : | 541 |
| Épület hasznos területe (m2) : | 75 |
| Szobák száma: | 3 |
| Anyaga: | Egyéb anyagból készült épület |
| A hirdető kérése: | Ingatlanközvetítő vagyok - keresse fel Irodánkat! |
| Feladás dátuma: | 2026.03.01 |
| Eddig megtekintették 32 alkalommal | |
A hirdető adatai
Kapcsolat a hirdetővel...
Családi házak rovaton belül a(z) "Ballószög, 75 m2, 55000000 HUF, 3 szoba [2870_1331]" című hirdetést látja. (fent)
















![Ballószög, 76 m2, 55000000 HUF, 3 szoba [2870_1336] Ballószög, 76 m2, 55000000 HUF, 3 szoba [2870_1336]](/hirdetesek/ads_new_xml2/15/155961/thmb_balloszog-76-m2-55_01764547362.jpg)
![Ballószög, 69 m2, 57200000 HUF, 3 szoba [2870_1365] Ballószög, 69 m2, 57200000 HUF, 3 szoba [2870_1365]](/hirdetesek/ads_new_xml2/15/155967/thmb_balloszog-69-m2-57_01764547364.jpg)
![Ballószög, 85 m2, 69900000 HUF, 3 szoba [2870_1504] Ballószög, 85 m2, 69900000 HUF, 3 szoba [2870_1504]](/hirdetesek/ads_new_xml2/15/156013/thmb_balloszog-85-m2-47_01764547375.jpg)
![Ballószög, 65 m2, 39900000 HUF, 3 szoba [2870_1419] Ballószög, 65 m2, 39900000 HUF, 3 szoba [2870_1419]](/hirdetesek/ads_new_xml2/15/155989/thmb_balloszog-65-m2-39_01764547370.jpg)
![Ballószög, 85 m2, 65000000 HUF, 3 szoba [2870_1428] Ballószög, 85 m2, 65000000 HUF, 3 szoba [2870_1428]](/hirdetesek/ads_new_xml2/15/155997/thmb_balloszog-85-m2-52_01764547371.jpg)
![Ballószög, 75 m2, 55000000 HUF, 3 szoba [2870_1331] Ballószög, 75 m2, 55000000 HUF, 3 szoba [2870_1331]](/hirdetesek/ads_new_xml2/15/155958/thmb_balloszog-75-m2-55_01764547361.jpg)
![Ballószög, 75 m2, 55000000 HUF, 3 szoba [2870_1331] Ballószög, 75 m2, 55000000 HUF, 3 szoba [2870_1331]](/hirdetesek/ads_new_xml2/15/155958/thmb_balloszog-75-m2-55_11764547361.jpg)
![Ballószög, 75 m2, 55000000 HUF, 3 szoba [2870_1331] Ballószög, 75 m2, 55000000 HUF, 3 szoba [2870_1331]](/hirdetesek/ads_new_xml2/15/155958/thmb_balloszog-75-m2-55_21764547361.jpg)
![Ballószög, 75 m2, 55000000 HUF, 3 szoba [2870_1331] Ballószög, 75 m2, 55000000 HUF, 3 szoba [2870_1331]](/hirdetesek/ads_new_xml2/15/155958/thmb_balloszog-75-m2-55_31764547361.jpg)


