
Kerekegyháza, 91 m2, 51990000 HUF, 5 szoba [2870_1460]
Kerekegyházán új építésű ház eladó! 54.9 M helyett Február 10-ig 51.990
FtKecskeméttől 15 kilométerre, a város kiemelten jól megközelíthető helyén
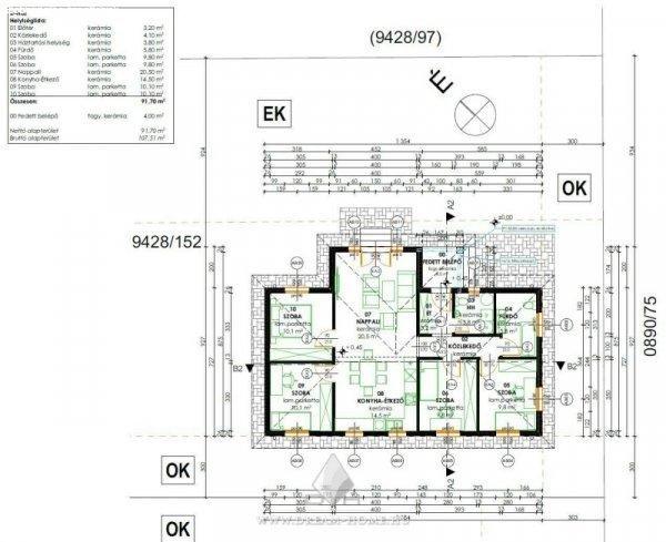
kínálok eladásra egy prémium minőségi tartalommal megépített, 91 négyzetméter
hasznos alapterülettel rendelkező négyszobás családi házat. Buszmegálló a telek
előtt, a központ, iskola, boltok sétálva megközelítve maximum 10 percet vesz
igénybe.A 860 négyzetméteres telken kiváló lehetőség adódik a kerti szabadidős
tevékenységekhez is.A ház fekvése benapozottság szempontjából tökéletes, a
lenyugvó nap a tágas (35 négyzetméteres) nappali-konyha-étkezőt világítja meg, a
hajnali napsugarak a hálóban keltik a lakókat.A ház kialakításakor különös
figyelemmel voltunk arra, hogy akár a háromgyermekes CSOK-ra is alkalmas legyen.
3 gyerekszoba + szülői háló, és a világos, tágas nappali az egész család számára
biztosítja az Otthon fogalmát úgy, hogy mindenkinek meglegyen igény szerint a
saját privát szférája.A hirdetés gondolatébresztő, kulcsátadás 2023. augusztus.A
fenti ár tartalmazza az adott négyzetméterben a kivitelezési költséget, az
összközművesített telek árát (háromfázisú villanyt, csatornát, a 100 m mélyre
fúrott kútat, a gáz lekötést , és természetesen a csatornázást).Akár a
hirdetésben szereplő alaprajzzal, de természetesen az Ön által megálmodott,
szabadon tervezett kialakítással is megépíthető a technológiánkkal egy kiváló
energetikával és minimális rezsiköltséggel rendelkező Otthon ? a Családja
részére.További információkért kérem hívjon egy személyes
prezentációért.Irodánkban hitelügyintézéssel várjuk, az Ön számára legkedvezőbb,
személyreszabott ajánlattal ? 30 bank ajánlátából választjuk ki a
legmegfelelőbbet. CSOK, Babaváró ügyintézés.Lévay Márton+36703190804KMUM1156
FtKecskeméttől 15 kilométerre, a város kiemelten jól megközelíthető helyén
kínálok eladásra egy prémium minőségi tartalommal megépített, 91 négyzetméter
hasznos alapterülettel rendelkező négyszobás családi házat. Buszmegálló a telek
előtt, a központ, iskola, boltok sétálva megközelítve maximum 10 percet vesz
igénybe.A 860 négyzetméteres telken kiváló lehetőség adódik a kerti szabadidős
tevékenységekhez is.A ház fekvése benapozottság szempontjából tökéletes, a
lenyugvó nap a tágas (35 négyzetméteres) nappali-konyha-étkezőt világítja meg, a
hajnali napsugarak a hálóban keltik a lakókat.A ház kialakításakor különös
figyelemmel voltunk arra, hogy akár a háromgyermekes CSOK-ra is alkalmas legyen.
3 gyerekszoba + szülői háló, és a világos, tágas nappali az egész család számára
biztosítja az Otthon fogalmát úgy, hogy mindenkinek meglegyen igény szerint a
saját privát szférája.A hirdetés gondolatébresztő, kulcsátadás 2023. augusztus.A
fenti ár tartalmazza az adott négyzetméterben a kivitelezési költséget, az
összközművesített telek árát (háromfázisú villanyt, csatornát, a 100 m mélyre
fúrott kútat, a gáz lekötést , és természetesen a csatornázást).Akár a
hirdetésben szereplő alaprajzzal, de természetesen az Ön által megálmodott,
szabadon tervezett kialakítással is megépíthető a technológiánkkal egy kiváló
energetikával és minimális rezsiköltséggel rendelkező Otthon ? a Családja
részére.További információkért kérem hívjon egy személyes
prezentációért.Irodánkban hitelügyintézéssel várjuk, az Ön számára legkedvezőbb,
személyreszabott ajánlattal ? 30 bank ajánlátából választjuk ki a
legmegfelelőbbet. CSOK, Babaváró ügyintézés.Lévay Márton+36703190804KMUM1156
Részletek...
Adatlap
| Ár: | 51.990.000 Ft |
| Település: | Kerekegyháza |
| A hirdető: | Ingatlaniroda ajánlatából |
| Értékesítés típusa: | Eladó |
| Használtság: | Új építésű |
| Utca: | Kerekegyháza |
| Telek nagysága (m2) : | 860 |
| Épület hasznos területe (m2) : | 91 |
| Szobák száma: | 5 |
| Fűtés: | Egyéb fűtéses |
| Anyaga: | Egyéb anyagból készült épület |
| A hirdető kérése: | Ingatlanközvetítő vagyok - keresse fel Irodánkat! |
| Feladás dátuma: | 2026.03.01 |
| Eddig megtekintették 33 alkalommal | |
A hirdető adatai
Kapcsolat a hirdetővel...
Családi házak rovaton belül a(z) "Kerekegyháza, 91 m2, 51990000 HUF, 5 szoba [2870_1460]" című hirdetést látja. (fent)
















![Kerekegyháza, 91 m2, 52900000 HUF, 5 szoba [2870_1426] Kerekegyháza, 91 m2, 52900000 HUF, 5 szoba [2870_1426]](/hirdetesek/ads_new_xml2/15/155995/thmb_kerekegyhaza-91-m2_01764547371.jpg)
![Kerekegyháza, 85 m2, 47900000 HUF, 4 szoba [2870_1427] Kerekegyháza, 85 m2, 47900000 HUF, 4 szoba [2870_1427]](/hirdetesek/ads_new_xml2/15/155996/thmb_kerekegyhaza-85-m2_01764547371.jpg)
![Kerekegyháza, 85 m2, 53700000 HUF, 4 szoba [2870_1549] Kerekegyháza, 85 m2, 53700000 HUF, 4 szoba [2870_1549]](/hirdetesek/ads_new_xml2/15/156024/thmb_kerekegyhaza-85-m2_01764547378.jpg)
![Kecskemét, 91 m2, 58000000 HUF, 5 szoba [2870_1544] Kecskemét, 91 m2, 58000000 HUF, 5 szoba [2870_1544]](/hirdetesek/ads_new_xml2/15/156023/thmb_kecskemet-91-m2-58_01764547378.jpg)
![Kecskemét, 91 m2, 58000000 HUF, 5 szoba [2870_1557] Kecskemét, 91 m2, 58000000 HUF, 5 szoba [2870_1557]](/hirdetesek/ads_new_xml2/15/156025/thmb_kecskemet-91-m2-58_01764547378.jpg)
![Kerekegyháza, 91 m2, 51990000 HUF, 5 szoba [2870_1460] Kerekegyháza, 91 m2, 51990000 HUF, 5 szoba [2870_1460]](/hirdetesek/ads_new_xml2/15/156006/thmb_kerekegyhaza-91-m2_01764547374.jpg)
![Kerekegyháza, 91 m2, 51990000 HUF, 5 szoba [2870_1460] Kerekegyháza, 91 m2, 51990000 HUF, 5 szoba [2870_1460]](/hirdetesek/ads_new_xml2/15/156006/thmb_kerekegyhaza-91-m2_11764547374.jpg)


