
Eladó 95m2-es Ikerház, Gödöllő
Gödöllő blahai részén, csendes, nyugodt környezetben, nappali + 4 szobás
újépítésű ikerházfél referenciákkal rendelkező, megbízható építőtől
eladó!Műszaki paraméterek:- 30-as Porotherm tégla falazat + 10cm grafit
szigetelés,- beton cserépfedés,- födémen 20cm vastag kőzetgyapot,- 3 réteg
üvegezésű, 5 légkamrás hőszigetelt nyílászárókkal, redőny előkészítéssel,-
kondenzációs kazán vagy hőszivattyú (+3Mft), padlófűtéssel,- riasztó
előkészítés, - hűtő-fűtő klíma 250.000.-Ft-ig,- bejárati ajtó: 250.000.-Ft,-
beltéri ajtók: 70.000.-Ft/db,- kerámia burkolatok 5.500.-Ft/nm,- parketta
4.500.-Ft/nm,- mosdó 20.000.-Ft/db,- WC 30.000.-Ft/db,- csaptelepek
15.000.-Ft/db,- kád 50.000.-Ft,- zuhanyfolyóka 25.000.-Ft,- helyiségenként 1db
kiállás + kiállások 25.000.-Ft/db,- helyiségenként 1db kapcsoló + kapcsolók
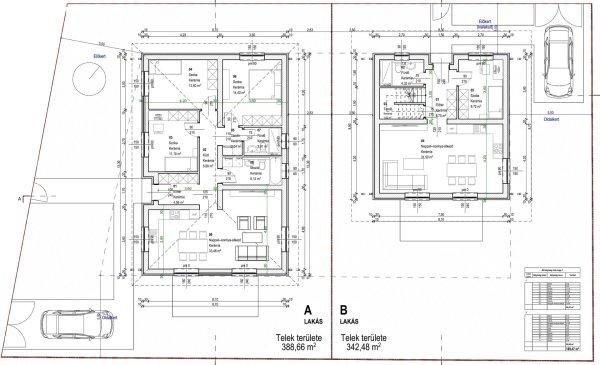
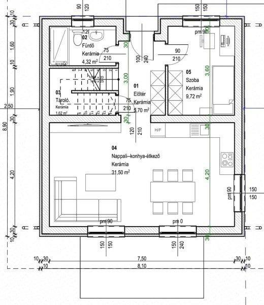
35.000.-Ft/db.Elosztás:- Földszint: előtér, nappali-konyha-étkező, kamra/tároló,
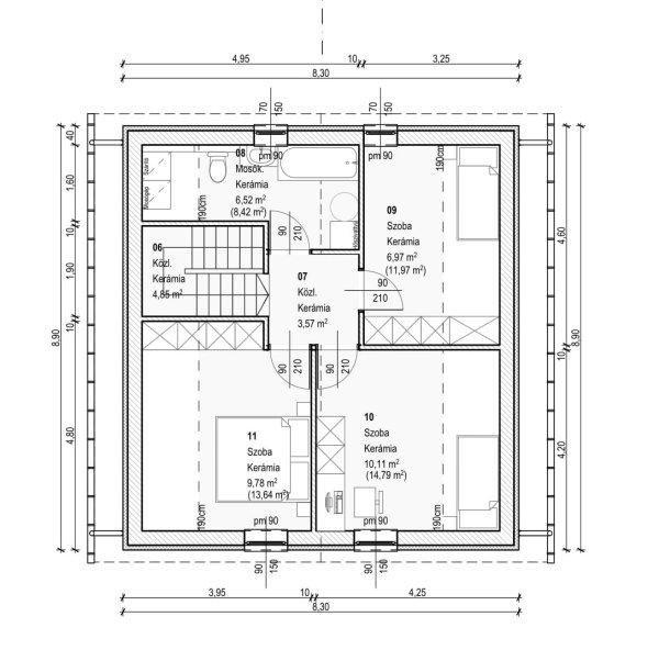
egy szoba, fürdőszoba + terasz.- Emelet: 3 szoba, közlekedő,
mosókonyha/fürdő.Telek:- 342,5nm-es telken helyezkedik el, parkoláshoz
kocsibeálló kerül kialakításra,- kaputól a bejárati ajtóig 1m széles,
térkövezett járda,- Kerítés díszkővel, fa vagy acél közökkel.Környék:- Csendes,
nyugodt környék, Tesco, Lidl, Aldi, éttermek, iskola, óvoda, buszmegálló percek
alatt könnyen elérhető.Az ingatlant megbízható kivitelező építi! Burkolatok,
belső ajtók a vevői igényei szerint még szabadon választhatók!Kérésre teljes
műszaki tartalmat, alaprajzot szívesen küldünk!Várható kulcsrakész átadás:
szerződéskötéstől 6 hónapIrányár: 155.000.000.-FtHivatkozási szám:
2518227.Megtekinthető telefonos időpont egyeztetés alapján:Sápi Balázs +36 20
772-2429 sapibalazs@godolloi.hu GÖDÖLLŐ INGATLANKÖZPONT - www.godolloi.hu:
Gödöllő és környéke legnagyobb ingatlan választéka /Gödöllő, Szada, Veresegyház,
Kistarcsa, Kerepes, Erdőkertes, Fót, Dunakeszi/ eladó-kiadó családi ház, telek,
lakás! Ingatlan építés és felújítás!
újépítésű ikerházfél referenciákkal rendelkező, megbízható építőtől
eladó!Műszaki paraméterek:- 30-as Porotherm tégla falazat + 10cm grafit
szigetelés,- beton cserépfedés,- födémen 20cm vastag kőzetgyapot,- 3 réteg
üvegezésű, 5 légkamrás hőszigetelt nyílászárókkal, redőny előkészítéssel,-
kondenzációs kazán vagy hőszivattyú (+3Mft), padlófűtéssel,- riasztó
előkészítés, - hűtő-fűtő klíma 250.000.-Ft-ig,- bejárati ajtó: 250.000.-Ft,-
beltéri ajtók: 70.000.-Ft/db,- kerámia burkolatok 5.500.-Ft/nm,- parketta
4.500.-Ft/nm,- mosdó 20.000.-Ft/db,- WC 30.000.-Ft/db,- csaptelepek
15.000.-Ft/db,- kád 50.000.-Ft,- zuhanyfolyóka 25.000.-Ft,- helyiségenként 1db
kiállás + kiállások 25.000.-Ft/db,- helyiségenként 1db kapcsoló + kapcsolók
35.000.-Ft/db.Elosztás:- Földszint: előtér, nappali-konyha-étkező, kamra/tároló,
egy szoba, fürdőszoba + terasz.- Emelet: 3 szoba, közlekedő,
mosókonyha/fürdő.Telek:- 342,5nm-es telken helyezkedik el, parkoláshoz
kocsibeálló kerül kialakításra,- kaputól a bejárati ajtóig 1m széles,
térkövezett járda,- Kerítés díszkővel, fa vagy acél közökkel.Környék:- Csendes,
nyugodt környék, Tesco, Lidl, Aldi, éttermek, iskola, óvoda, buszmegálló percek
alatt könnyen elérhető.Az ingatlant megbízható kivitelező építi! Burkolatok,
belső ajtók a vevői igényei szerint még szabadon választhatók!Kérésre teljes
műszaki tartalmat, alaprajzot szívesen küldünk!Várható kulcsrakész átadás:
szerződéskötéstől 6 hónapIrányár: 155.000.000.-FtHivatkozási szám:
2518227.Megtekinthető telefonos időpont egyeztetés alapján:Sápi Balázs +36 20
772-2429 sapibalazs@godolloi.hu GÖDÖLLŐ INGATLANKÖZPONT - www.godolloi.hu:
Gödöllő és környéke legnagyobb ingatlan választéka /Gödöllő, Szada, Veresegyház,
Kistarcsa, Kerepes, Erdőkertes, Fót, Dunakeszi/ eladó-kiadó családi ház, telek,
lakás! Ingatlan építés és felújítás!
Részletek...
Adatlap
| Ár: | 115.000.000 Ft |
| Település: | Gödöllő |
| A hirdető: | Ingatlaniroda ajánlatából |
| Értékesítés típusa: | Eladó |
| Telek nagysága (m2) : | 342 |
| Épület hasznos területe (m2) : | 95 |
| Szobák száma: | 5 |
| Komfort: | Összkomfortos |
| Fűtés: | Egyéb fűtéses |
| Ingatlan állapota: | Normál állapotú |
| Anyaga: | Tégla |
| A hirdető kérése: | Ingatlanközvetítő vagyok - keresse fel Irodánkat! |
| Feladás dátuma: | 2025.12.01 |
| Eddig megtekintették 6 alkalommal | |
A hirdető adatai
Kapcsolat a hirdetővel...
Családi házak rovaton belül a(z) "Eladó 95m2-es Ikerház, Gödöllő" című hirdetést látja. (fent)




























