
Újépítésű családi ház eladó Tabon
A Lido Home siófoki ingatlanirodája eladásra kínálja ezt az újépítésű 3
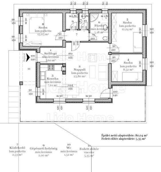
hálószobás családi házat Tab csendes részén.Tervezett átadás: 2025 év vége, 2026
év eleje. Egy 1000 m2-es telken 2 ház épül, egymástól jól, kerítéssel
elkülönítve.A jelen hirdetésben szereplő ingatlan nagyobb telekkel kerül
kialakításra . A burkolatok és szaniterek szabadon választhatóak megállapodás
szerint.A 600 m2-es telken egy 80 m2-es 3 hálószobás ház épül.A fűtés
elektromosra lett tervezve, de van gáz is a telken. Hűtő-fűtő klíma és
padlőfűtés kerül beépítésre.A kert ideális alkalmas kertészkedésre is, de
méretének köszönhetően kiépíthető úgy is, hogy ne kelljen vele napi szinten
foglalkozni. Természetkedvelőknek pedig az utcából indul túraútvonal is.A
folyamatosan fejlődő település szélére eső ingatlan megadja az otthon nyugalmát,
nincs nagy forgalom, viszont pár percre megtalálható minden fontos szolgáltatás:
bolt, iskola, orvosi rendelő, posta, bank, uszoda, étterem, cukrászda.Fürdőzést
kedvelőknek pedig kb. 20 perc Zamárdi és a szabadstrand, a Tamási Termálfürdő
pedig csupán fél óra.A képeken az előrehaladottabb készültségi fokozatú ingatlan
is szerepel, mint referncia.Amennyiben a LIDO HOME által kínált Tabi ház, vagy
bármely a kínálatunkban található egyéb INGATLAN felkeltette az érdeklődését,
hívjon a megadott telefonszámon.Vásárolna, de nincs rá keret?Kollégám díjmentes,
bank semleges hitel ügyintézéssel áll rendelkezésére.LIDO HOME- Ingatlanok egy
életen át!
hálószobás családi házat Tab csendes részén.Tervezett átadás: 2025 év vége, 2026
év eleje. Egy 1000 m2-es telken 2 ház épül, egymástól jól, kerítéssel
elkülönítve.A jelen hirdetésben szereplő ingatlan nagyobb telekkel kerül
kialakításra . A burkolatok és szaniterek szabadon választhatóak megállapodás
szerint.A 600 m2-es telken egy 80 m2-es 3 hálószobás ház épül.A fűtés
elektromosra lett tervezve, de van gáz is a telken. Hűtő-fűtő klíma és
padlőfűtés kerül beépítésre.A kert ideális alkalmas kertészkedésre is, de
méretének köszönhetően kiépíthető úgy is, hogy ne kelljen vele napi szinten
foglalkozni. Természetkedvelőknek pedig az utcából indul túraútvonal is.A
folyamatosan fejlődő település szélére eső ingatlan megadja az otthon nyugalmát,
nincs nagy forgalom, viszont pár percre megtalálható minden fontos szolgáltatás:
bolt, iskola, orvosi rendelő, posta, bank, uszoda, étterem, cukrászda.Fürdőzést
kedvelőknek pedig kb. 20 perc Zamárdi és a szabadstrand, a Tamási Termálfürdő
pedig csupán fél óra.A képeken az előrehaladottabb készültségi fokozatú ingatlan
is szerepel, mint referncia.Amennyiben a LIDO HOME által kínált Tabi ház, vagy
bármely a kínálatunkban található egyéb INGATLAN felkeltette az érdeklődését,
hívjon a megadott telefonszámon.Vásárolna, de nincs rá keret?Kollégám díjmentes,
bank semleges hitel ügyintézéssel áll rendelkezésére.LIDO HOME- Ingatlanok egy
életen át!
Részletek...
Adatlap
| Ár: | 65.000.000 Ft |
| Település: | Tab |
| A hirdető: | Ingatlaniroda ajánlatából |
| Értékesítés típusa: | Eladó |
| Használtság: | Új építésű |
| Telek nagysága (m2) : | 600 |
| Épület hasznos területe (m2) : | 80.00 |
| Szobák száma: | 4 |
| Feladás dátuma: | 2026.01.07 |
| Eddig megtekintették 22 alkalommal | |
A hirdető adatai
Kapcsolat a hirdetővel...
Családi házak rovaton belül a(z) "Újépítésű családi ház eladó Tabon" című hirdetést látja. (fent)




























