
Eladó családi ház Budapest, XVI. kerület, Gárda utca
Új építésű családi ház eladó Sashalom kedvelt részén, a Gárda utca 60. szám
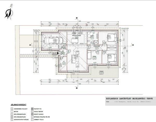
alatt!Budapest XVI. kerületében, egy 588 m˛-es, külön helyrajzi számon
nyilvántartott telken kínáljuk megvételre ezt a modern kivitelezésű, nettó 98,63
m˛-es lakótérrel, 20,52 m˛-es garázzsal és 25,64 m˛-es terasszal rendelkező új
építésű családi házat.Az ingatlan 30-as Porotherm falazóelemből, fa
födémszerkezettel épül, a homlokzaton 15 cm grafitos EPS, a padlóban 12 cm
lépésálló, a vízszintes födémen pedig 30 cm kőzetgyapot szigetelés készül. A
külső nyílászárók 3 rétegű üvegezéssel, kívülről fóliázva, elektromos alumínium
redőnnyel és szúnyoghálóval felszerelve kerülnek beépítésre.A fűtésről és a
használati melegvízről 12 kW-os split rendszerű hőszivattyú gondoskodik 200
literes HMV tartállyal, a hűtést pedig 4 darab fan-coil biztosítja. A villamos
hálózat 3×16 A, továbbá H-tarifa 3×16 A is kiépítésre kerül. Az ingatlan
összesen 130 darab választható elektromos kiállással készül. A felszereltség
része az elektromos kapu, az elektromos garázsajtó, a riasztórendszer, valamint
a kamerarendszer előkészítése is.A garázs igény szerint akár szobává alakítható,
vagy a tartószerkezet lehetőségei miatt e-gerendás betonfödém kiépítésével akár
második szint is kialakítható.Az udvaron térkőből autóbeálló, járda, valamint az
ingatlan körül is teljes térkövezett járda készül.Választható műszaki
tartalom-Beltéri ajtók: 100.000 Ft/db-ig-Hidegburkolatok: 10.000
Ft/m˛-ig-Melegburkolatok: 8.000 Ft/m˛-ig-Garázs burkolata: 5.000
Ft/m˛-ig-Fürdőkád: 70.000 Ft-ig-Épített zuhanyEz a ház ideális választás
mindazoknak, akik modern, energiatakarékos otthont keresnek nyugodt
környezetben.A kivitelező számos referenciával rendelkezik, melyeket komoly
érdeklődés esetén szívesen megmutatunk.INGYENES hitel tanácsadás, CSOK Plusz
ügyintézés!BANKFÜGGETLEN hitelcentrumunk az összes elérhető bank és hitelintézet
ajánlatát versenyezteti az Ön kedvéért, ráadásul DÍJMENTESEN.- Egyedi,
bankfiókban nem elérhető kamat- és díjkedvezmények- Hitelképesség vizsgálat-
Idő, energia és pénz megtakarítás- Teljes hivatali ügyintézésAmennyiben
hirdetésem felkeltette az érdeklődését vagy egyéb információra van szüksége
hívjon bizalommal! ...TOVÁBBI, TÖBBEZRES INGATLAN KÍNÁLAT: www.gdn-ingatlan.hu -
GDN azonosító: 390355
alatt!Budapest XVI. kerületében, egy 588 m˛-es, külön helyrajzi számon
nyilvántartott telken kínáljuk megvételre ezt a modern kivitelezésű, nettó 98,63
m˛-es lakótérrel, 20,52 m˛-es garázzsal és 25,64 m˛-es terasszal rendelkező új
építésű családi házat.Az ingatlan 30-as Porotherm falazóelemből, fa
födémszerkezettel épül, a homlokzaton 15 cm grafitos EPS, a padlóban 12 cm
lépésálló, a vízszintes födémen pedig 30 cm kőzetgyapot szigetelés készül. A
külső nyílászárók 3 rétegű üvegezéssel, kívülről fóliázva, elektromos alumínium
redőnnyel és szúnyoghálóval felszerelve kerülnek beépítésre.A fűtésről és a
használati melegvízről 12 kW-os split rendszerű hőszivattyú gondoskodik 200
literes HMV tartállyal, a hűtést pedig 4 darab fan-coil biztosítja. A villamos
hálózat 3×16 A, továbbá H-tarifa 3×16 A is kiépítésre kerül. Az ingatlan
összesen 130 darab választható elektromos kiállással készül. A felszereltség
része az elektromos kapu, az elektromos garázsajtó, a riasztórendszer, valamint
a kamerarendszer előkészítése is.A garázs igény szerint akár szobává alakítható,
vagy a tartószerkezet lehetőségei miatt e-gerendás betonfödém kiépítésével akár
második szint is kialakítható.Az udvaron térkőből autóbeálló, járda, valamint az
ingatlan körül is teljes térkövezett járda készül.Választható műszaki
tartalom-Beltéri ajtók: 100.000 Ft/db-ig-Hidegburkolatok: 10.000
Ft/m˛-ig-Melegburkolatok: 8.000 Ft/m˛-ig-Garázs burkolata: 5.000
Ft/m˛-ig-Fürdőkád: 70.000 Ft-ig-Épített zuhanyEz a ház ideális választás
mindazoknak, akik modern, energiatakarékos otthont keresnek nyugodt
környezetben.A kivitelező számos referenciával rendelkezik, melyeket komoly
érdeklődés esetén szívesen megmutatunk.INGYENES hitel tanácsadás, CSOK Plusz
ügyintézés!BANKFÜGGETLEN hitelcentrumunk az összes elérhető bank és hitelintézet
ajánlatát versenyezteti az Ön kedvéért, ráadásul DÍJMENTESEN.- Egyedi,
bankfiókban nem elérhető kamat- és díjkedvezmények- Hitelképesség vizsgálat-
Idő, energia és pénz megtakarítás- Teljes hivatali ügyintézésAmennyiben
hirdetésem felkeltette az érdeklődését vagy egyéb információra van szüksége
hívjon bizalommal! ...TOVÁBBI, TÖBBEZRES INGATLAN KÍNÁLAT: www.gdn-ingatlan.hu -
GDN azonosító: 390355
Részletek...
Adatlap
| Ár: | 239.000.000 Ft |
| Település: | XVI. kerület |
| A hirdető: | Ingatlaniroda ajánlatából |
| Értékesítés típusa: | Eladó |
| Használtság: | Új építésű |
| Utca: | Gárda utca |
| Telek nagysága (m2) : | 588 |
| Épület hasznos területe (m2) : | 123 |
| Szobák száma: | 3 |
| Anyaga: | Tégla |
| A hirdető kérése: | Ingatlanközvetítő vagyok - keresse fel Irodánkat! |
| Feladás dátuma: | 2026.05.07 |
| Eddig megtekintették 49 alkalommal | |
A hirdető adatai
Kapcsolat a hirdetővel...
Családi házak rovaton belül a(z) "Eladó családi ház Budapest, XVI. kerület, Gárda utca" című hirdetést látja. (fent)




























