
Eladó családi ház Budapest, XXII. kerület, FELÚJÍTOTT CSAL
CSAK AZ IRODÁNK KÍNÁLATÁBAN! XXII. kerületben, Budafokon kínálunk eladásra egy
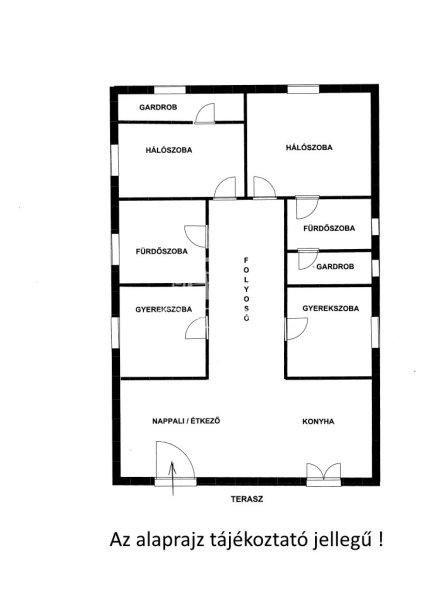
FELÚJÍTÁS ALATT ÁLLÓ, nagy nappali + 4 szobás, 2 fürdőszobás, étkező-konyhás 214
m˛-es lakóterű magasföldszinti CSALÁDI HÁZAT, melynek az alsó szintje plusz 110
m2, amely egy 647 m˛-es telken helyezkedik el.A házba belépve egy tágas
nappaliba érkezünk, innen tovább haladva található egy étkezős - konyha,
beépített modern konyhabútorral. Széles folyosóról nyílnak a gyerek szobák, a
nagy kádas fürdőszoba, és két nagy méretű hálószoba saját gardrób helyiségekkel.
Az egyik hálószobához tartozik még egy zuhanyozós fürdőszoba WC-vel és egy
gardrob szoba.A másik hálószobához is tartozik külön gardrob szoba.A ház alatti
alsó szint 110 m2, ahol beépített konyha, kamra, kis szoba, zuhanyzós
fürdőszoba WC-vel is kialakításra került, plusz egyéb tárolásra alkalmas terület
is maradt.LÁSD AZ ALSÓ SZINT ALAPRAJZÁT !A ház ideális nagycsaládosoknak, de két
generációnak is kényelmes tereket biztosít, a 214 m˛-es lakótér, és az alsó
szint helyiségei. LÁSD A LAKÓTÉR /magasföldszint/ HELYISÉGEINEK ELRENDEZÉSÉT AZ
ALAPRAJZON !MŰSZAKI JELLEMZŐK: - Az épület az 1960-1970-es években épült vegyes
falazattal. - 2024-2025-ben teljes körű felújításon esett át.- ennek részeként
megtörtént a tetőcsere, vasbeton födém került kialakításra- a teljes gépészet és
fűtésrendszer megújult - a nyílászárók cseréje is megtörtént, háromrétegű, hő-
és hangszigetelő műanyag ablakok, új bejárati ajtó került beépítésre - a ház
külső falaira 15 cm-es dryvit hőszigetelés került - a fűtés hőszivattyúval
történik, minden helyiségben padlófűtéssel.PARKOLÁS: A kertben több autó számára
térkövezett felszíni beálló biztosított.EXTRÁK: A házban 5 db hűtő-fűtő klíma
található.KÖRNYEZET: Az ingatlan csendes, kertvárosias környezetben található,
kiváló tömegközlekedéssel és közeli bevásárlási lehetőségekkel (ALDI, Campona,
Tesco). A közelben óvoda, két tannyelvű iskola és gimnázium is működik..
Autóbusszal 15?20 perc alatt elérhető a 4-es metró kelenföldi végállomása.
Budapest belvárosa pedig sétatávolságban lévő buszjáratokkal fél óra alatt
megközelíthető.Az ingatlan ELŐRE EGYEZTETETT IDŐPONTBAN tekinthető meg ? akár
hétvégén is.KÉSZPÉNZES ÉRDEKLŐDŐK JELENTKEZÉSÉT VÁROM !FORDULJON HOZZÁM
BIZALOMMAL, VÁROM HÍVÁSÁT, ÉRDEKLŐDÉSÉT!(G.I.) ...TOVÁBBI, TÖBBEZRES INGATLAN
KÍNÁLAT: www.gdn-ingatlan.hu - GDN azonosító: 390458
FELÚJÍTÁS ALATT ÁLLÓ, nagy nappali + 4 szobás, 2 fürdőszobás, étkező-konyhás 214
m˛-es lakóterű magasföldszinti CSALÁDI HÁZAT, melynek az alsó szintje plusz 110
m2, amely egy 647 m˛-es telken helyezkedik el.A házba belépve egy tágas
nappaliba érkezünk, innen tovább haladva található egy étkezős - konyha,
beépített modern konyhabútorral. Széles folyosóról nyílnak a gyerek szobák, a
nagy kádas fürdőszoba, és két nagy méretű hálószoba saját gardrób helyiségekkel.
Az egyik hálószobához tartozik még egy zuhanyozós fürdőszoba WC-vel és egy
gardrob szoba.A másik hálószobához is tartozik külön gardrob szoba.A ház alatti
alsó szint 110 m2, ahol beépített konyha, kamra, kis szoba, zuhanyzós
fürdőszoba WC-vel is kialakításra került, plusz egyéb tárolásra alkalmas terület
is maradt.LÁSD AZ ALSÓ SZINT ALAPRAJZÁT !A ház ideális nagycsaládosoknak, de két
generációnak is kényelmes tereket biztosít, a 214 m˛-es lakótér, és az alsó
szint helyiségei. LÁSD A LAKÓTÉR /magasföldszint/ HELYISÉGEINEK ELRENDEZÉSÉT AZ
ALAPRAJZON !MŰSZAKI JELLEMZŐK: - Az épület az 1960-1970-es években épült vegyes
falazattal. - 2024-2025-ben teljes körű felújításon esett át.- ennek részeként
megtörtént a tetőcsere, vasbeton födém került kialakításra- a teljes gépészet és
fűtésrendszer megújult - a nyílászárók cseréje is megtörtént, háromrétegű, hő-
és hangszigetelő műanyag ablakok, új bejárati ajtó került beépítésre - a ház
külső falaira 15 cm-es dryvit hőszigetelés került - a fűtés hőszivattyúval
történik, minden helyiségben padlófűtéssel.PARKOLÁS: A kertben több autó számára
térkövezett felszíni beálló biztosított.EXTRÁK: A házban 5 db hűtő-fűtő klíma
található.KÖRNYEZET: Az ingatlan csendes, kertvárosias környezetben található,
kiváló tömegközlekedéssel és közeli bevásárlási lehetőségekkel (ALDI, Campona,
Tesco). A közelben óvoda, két tannyelvű iskola és gimnázium is működik..
Autóbusszal 15?20 perc alatt elérhető a 4-es metró kelenföldi végállomása.
Budapest belvárosa pedig sétatávolságban lévő buszjáratokkal fél óra alatt
megközelíthető.Az ingatlan ELŐRE EGYEZTETETT IDŐPONTBAN tekinthető meg ? akár
hétvégén is.KÉSZPÉNZES ÉRDEKLŐDŐK JELENTKEZÉSÉT VÁROM !FORDULJON HOZZÁM
BIZALOMMAL, VÁROM HÍVÁSÁT, ÉRDEKLŐDÉSÉT!(G.I.) ...TOVÁBBI, TÖBBEZRES INGATLAN
KÍNÁLAT: www.gdn-ingatlan.hu - GDN azonosító: 390458
Részletek...
Adatlap
| Ár: | 149.000.000 Ft |
| Település: | XXII. kerület |
| A hirdető: | Ingatlaniroda ajánlatából |
| Értékesítés típusa: | Eladó |
| Használtság: | Használt |
| Utca: | FELÚJÍTOTT CSALÁDI HÁZ BUDAFOKON! |
| Telek nagysága (m2) : | 647 |
| Épület hasznos területe (m2) : | 214 |
| Szobák száma: | 5 |
| Félszobák száma: | 2 |
| Ingatlan állapota: | Felújított |
| Anyaga: | Egyéb anyagból készült épület |
| A hirdető kérése: | Ingatlanközvetítő vagyok - keresse fel Irodánkat! |
| Feladás dátuma: | 2026.05.07 |
| Eddig megtekintették 47 alkalommal | |
A hirdető adatai
Kapcsolat a hirdetővel...
Családi házak rovaton belül a(z) "Eladó családi ház Budapest, XXII. kerület, FELÚJÍTOTT CSAL" című hirdetést látja. (fent)




























