
Új építésű önálló ház | - Szeged
Kaas Ingatlan Azonosító: 3650Szeged-Petőfitelep részén most induló projekt egy
telken két különálló magánház leköthető.Keresi a tágas, modern otthont, ami
energiatakarékos és a legújabb technológiákkal felszerelt?Ne várjon tovább ?
most van lehetősége saját igényei szerint alakítani!Ne maradjon le róla, kérjen
időpontot még ma!Stílus, tér és jövőbe mutató kényelem egyben!Két szintes,
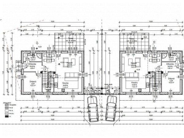
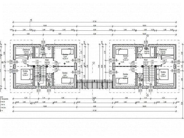
prémium szerkezetkész családi ház eladó!Lakótér: 113,9 m˛Szintek száma: 2Szobák
száma: 5Alsó szint: amerikai konyhás nappali, dolgozó szoba, fürdőszoba,
tárolóFelső szint: 3 hálószoba, wc, fürdőszobaTelek: 403 m˛Terasz: 15
m˛KocsibeállóPadlófűtés ? minden helyiségben kellemes melegHőszivattyús fűtés
rendszer ? a fenntartható jövő jegyébenÁllapot: emelt szintű szerkezetkész ? a
belső kialakítás még az Ön igényeihez igazítható!A feltüntetett ár emelt
szerkezetkész állapotra értendő: 108 300 000 Ft.Igény és megegyezés szerint a
kivitelező a kulcsrakész állapotra történő befejezést is vállalja.Cégünk az
ügyfeleink részére ingyenesen vállalja, a megegyezés sikeres lebonyolítását,
jogi tanácsadást, illetve teljes körű CSOK és hitel ügyintézést!A kínálatában
található összes ingatlannal kapcsolatban felvilágosítást tudunk nyújtani! Kérje
ingyenes tájékoztatásunkat telefonon, vagy személyesen irodánkban a Szeged,
Vitéz utca 32 szám alatt!Szolgáltatásaink vevőink részére díjmentesek!Amennyiben
felkeltettem érdeklődését, kérem, hívjon bizalommal!Szőkéné Biró KatalinIngatlan
referensTel: E-mail: Kaas Otthon Ingatlaniroda | Alapterület (m˛): 114 m˛
alapterületű | Szobák száma: 5 szobás | Telek mérete (m˛): 433 m˛ telekméret |
Épületek száma: 1 épületből áll | Ingatlan hány szintes: 2 szintes ingatlan |
Belmagasság (cm): 260 cm belmagasságú | Alapozás: sávos beton alap | Falazat:
téglafalazatú | Homlokzat burkolata: nemes vakolatos | Ingatlan állapota:
újépítésű | Küllem, stílus: modern | Fürdőszoba, WC: több fürdőszobás, külön
fürdőszoba, wc | Terasz, kert, udvar: saját udvar, saját kert, erkély, balkon,
loggia | Komfort: duplakomfortos | Fűtés, hőtermelők: hőszivattyús kazán |
Parkolás: parkoló udvar | Van a közelben: ABC közelben | Tömegközlekedés:
buszmegálló közelben | Kilátás: utcára néző | Lokáció: kertvárosban | Felevehető
támogatások: CSOK kedv. hitel, CSOK vissza nem tér. | Az ingatlan a KAAS
kínálatában a KAAS-3650 azonosító számon található meg.
telken két különálló magánház leköthető.Keresi a tágas, modern otthont, ami
energiatakarékos és a legújabb technológiákkal felszerelt?Ne várjon tovább ?
most van lehetősége saját igényei szerint alakítani!Ne maradjon le róla, kérjen
időpontot még ma!Stílus, tér és jövőbe mutató kényelem egyben!Két szintes,
prémium szerkezetkész családi ház eladó!Lakótér: 113,9 m˛Szintek száma: 2Szobák
száma: 5Alsó szint: amerikai konyhás nappali, dolgozó szoba, fürdőszoba,
tárolóFelső szint: 3 hálószoba, wc, fürdőszobaTelek: 403 m˛Terasz: 15
m˛KocsibeállóPadlófűtés ? minden helyiségben kellemes melegHőszivattyús fűtés
rendszer ? a fenntartható jövő jegyébenÁllapot: emelt szintű szerkezetkész ? a
belső kialakítás még az Ön igényeihez igazítható!A feltüntetett ár emelt
szerkezetkész állapotra értendő: 108 300 000 Ft.Igény és megegyezés szerint a
kivitelező a kulcsrakész állapotra történő befejezést is vállalja.Cégünk az
ügyfeleink részére ingyenesen vállalja, a megegyezés sikeres lebonyolítását,
jogi tanácsadást, illetve teljes körű CSOK és hitel ügyintézést!A kínálatában
található összes ingatlannal kapcsolatban felvilágosítást tudunk nyújtani! Kérje
ingyenes tájékoztatásunkat telefonon, vagy személyesen irodánkban a Szeged,
Vitéz utca 32 szám alatt!Szolgáltatásaink vevőink részére díjmentesek!Amennyiben
felkeltettem érdeklődését, kérem, hívjon bizalommal!Szőkéné Biró KatalinIngatlan
referensTel: E-mail: Kaas Otthon Ingatlaniroda | Alapterület (m˛): 114 m˛
alapterületű | Szobák száma: 5 szobás | Telek mérete (m˛): 433 m˛ telekméret |
Épületek száma: 1 épületből áll | Ingatlan hány szintes: 2 szintes ingatlan |
Belmagasság (cm): 260 cm belmagasságú | Alapozás: sávos beton alap | Falazat:
téglafalazatú | Homlokzat burkolata: nemes vakolatos | Ingatlan állapota:
újépítésű | Küllem, stílus: modern | Fürdőszoba, WC: több fürdőszobás, külön
fürdőszoba, wc | Terasz, kert, udvar: saját udvar, saját kert, erkély, balkon,
loggia | Komfort: duplakomfortos | Fűtés, hőtermelők: hőszivattyús kazán |
Parkolás: parkoló udvar | Van a közelben: ABC közelben | Tömegközlekedés:
buszmegálló közelben | Kilátás: utcára néző | Lokáció: kertvárosban | Felevehető
támogatások: CSOK kedv. hitel, CSOK vissza nem tér. | Az ingatlan a KAAS
kínálatában a KAAS-3650 azonosító számon található meg.
Részletek...
Adatlap
| Ár: | 108.300.000 Ft |
| Település: | Szeged |
| A hirdető: | Ingatlaniroda ajánlatából |
| Értékesítés típusa: | Eladó |
| Használtság: | Használt |
| Telek nagysága (m2) : | 433 |
| Épület hasznos területe (m2) : | 114.00 |
| Szobák száma: | 5 |
| Feladás dátuma: | 2026.01.07 |
| Eddig megtekintették 24 alkalommal | |
A hirdető adatai
Kapcsolat a hirdetővel...
Családi házak rovaton belül a(z) "Új építésű önálló ház | - Szeged" című hirdetést látja. (fent)




























